Welcome back! We activated a special $50 coupon for you valid for 24 hours
Get

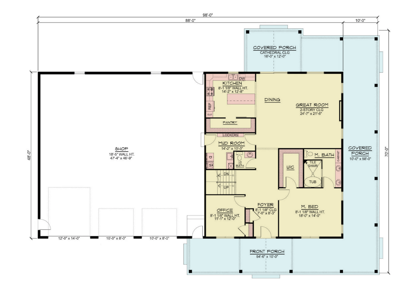
House Plans with RV Garage

RV garage plans have become essential for anyone who owns a recreational vehicle and wants to protect their investment. These specialized garage plans provide the height, width, and depth necessary to accommodate everything from travel trailers to massive motorhome units. An RV garage typically features at least one garage bay that is taller, wider, and deeper than a typical bay.

Parking an RV in a sheltered space limits upkeep and maintenance while reducing depreciation value.

RV garage plans come in a variety of architectural styles and sizes. These designs go way beyond basic parking – they create storage and maintenance areas that regular garages can't handle.

Why Regular Garages Don't Always Suffice

Regular garage doors top out around 8 feet, but most RV units need 12-14 feet of clearance. Standard garages also lack the depth required for recreational vehicle parking – some motorhome units stretch over 40 feet in length. Weather protection becomes crucial for these expensive vehicles.

Proper garage space keeps your motor home protected from sun damage, hail, and snow that can destroy paint, seals, and equipment. RV owners quickly realize that outdoor storage costs more in repairs than building proper protection.

Different Configurations For Your RV Garage

Plans come in various sizes to accommodate your needs. Basic designs handle travel trailers and smaller units, while larger versions work for Class A coaches and toy haulers. Many include extra space above the garage or for workshop areas.

Ft plans typically range from 14x40 feet for compact units up to 16x50 feet for serious enthusiasts. Height requirements vary from 12 feet for travel trailers up to 16 feet for large coaches. Don't forget room for accessing doors and storage compartments around your vehicle. Some RV garage plans offer a drive-thru bay for convenient access.

RV Garage Storage and Maintenance Features

Smart designs include features that make maintenance and storage much easier. Electrical outlets positioned at RV height eliminate extension cord hassles. Floor drains help with washing and cleaning tasks. Some plans include half bath facilities for convenience during vehicle preparation.

Solutions around the vehicle matter more than people realize. You need adequately-sized zones to access all sides of your RV, plus room for awnings, slide-outs, and equipment when extended. Many designs include built-in areas for camping gear, tools, and seasonal items.

Living Area Above Your Garage

Many RV garage plans include additional spaces like workshops or apartments. RV garage plans with living area above make excellent sense for many property owners. The extra space can function as a room for guests, generate rental income, offering a half-bath and kitchenette. Bedrooms and other areas above the structure maximize your property's potential.

These smart upper-level designs often include multiple bedrooms, full kitchens, and complete bathrooms. The extra room provides flexibility – use it as guest quarters, a rental property, or a workshop.

Planning Your Investment

Consider long-term needs when selecting plans. Will you upgrade to a larger motor home later? Do you need storage for multiple vehicles or equipment? The right designs should accommodate your current RV, as well as provide room for expansion.

Access remains crucial in any design. Ensure your layout allows easy access to all RV systems, storage compartments, and service points. Quality plans include adequate space for cleaning, repairs, and seasonal preparation work.

At Archival Designs, we offer comprehensive RV garage plans that can be customized for any vehicle size and living requirements. Whether you want basic storage or a complete setup with living area above, we can design the perfect solution to protect your investment.

71 house plans

FAQ

What size should an RV garage be?

Size depends on your vehicle dimensions plus the necessary access space. The minimum width is typically 14 feet, but 16 feet allows for better maneuvering. The length should be your motor home's length plus 4-6 feet for positioning. Height needs at least 2 feet clearance above your RV – measure with everything extended.

Do RV garages add value to your home?

Yes, additions typically increase property value, especially in areas with a high concentration of RV owners. They appeal to buyers who own RV units or plan to purchase them. The combination of vehicle protection and potential workshop space makes these very attractive.

Can you build living space above an RV garage?

Absolutely. Many plans include living space above the garage area. The high ceilings required for RV clearance provide excellent space for additional rooms which work perfectly as guest quarters, rental units, or primary residence areas.

Our client image
Our client image
Our client image
Our client image
Our client image
Why Choose Archival Designs
Them
Cost to Build

Free

$30+
Shipping
Free
on physical blueprints
$20+
Price Guarantee
Only Price Match
Purchase

Direct


from the Architect
Middleman
Search by Plan Name