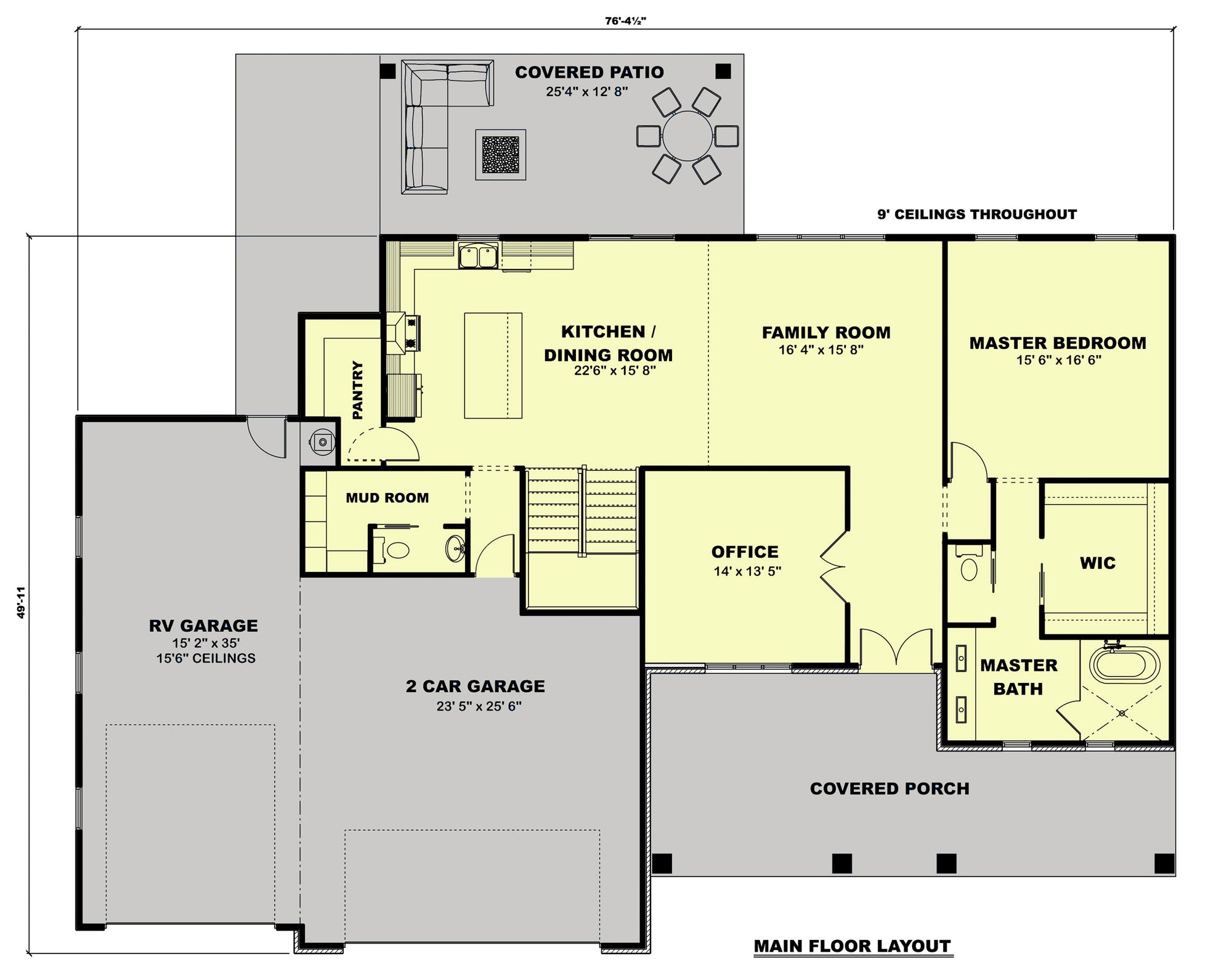
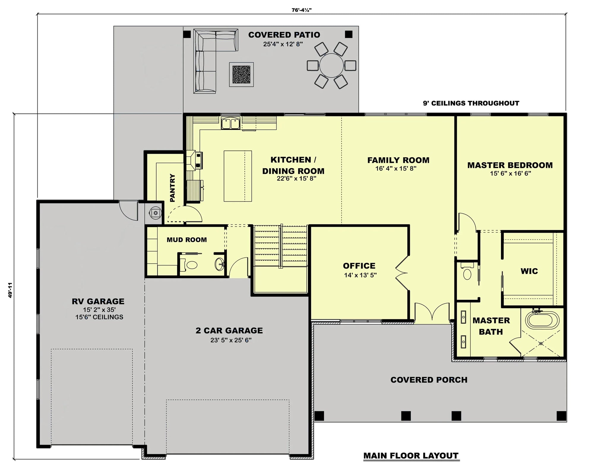
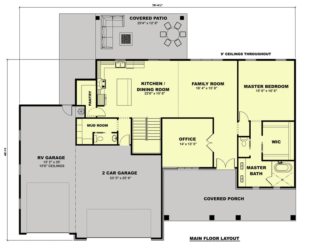
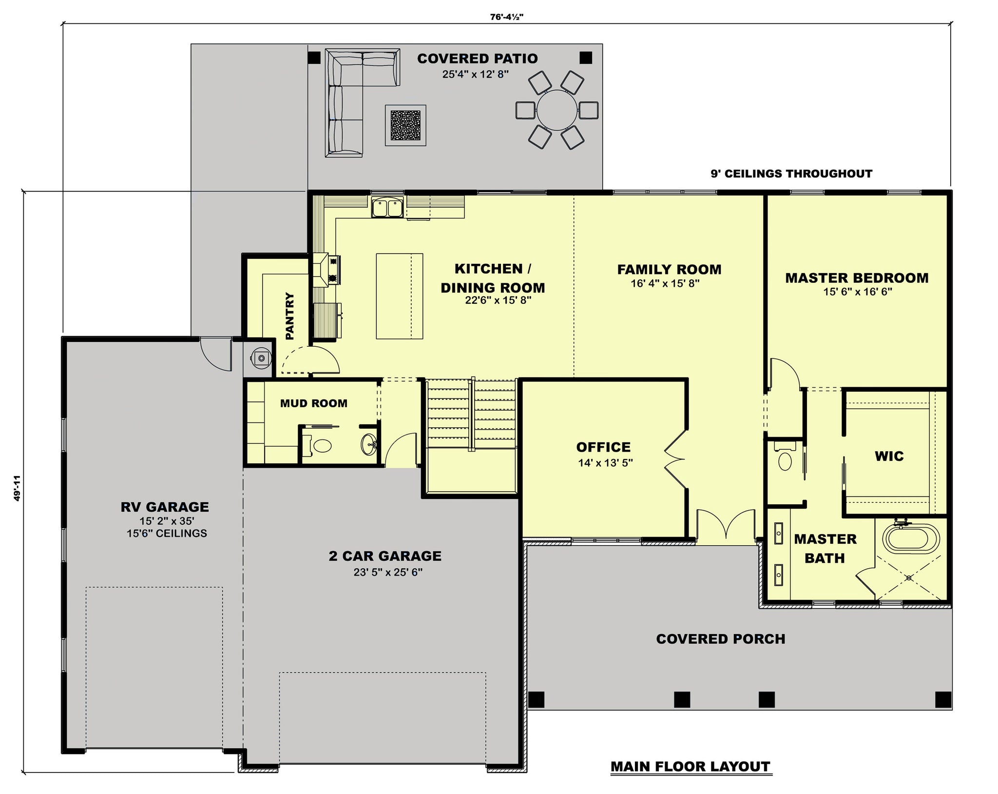
This stunning 4-bedroom, 3.5-bathroom two-story home offers 3,190 square feet of versatile living space designed for modern family life. The first floor features an open keeping/family room that flows seamlessly into a spacious kitchen with island and walk-in pantry. A guest suite, home office/study, flex room, mudroom, and covered front porch enhance the functionality and charm of the main level, while the rear patio provides a perfect space for outdoor entertaining.
Upstairs, the second-floor master suite offers privacy and luxury with a large walk-in closet and spa-inspired bath. Additional bedrooms share a centrally located bathroom, and the second-floor laundry adds convenient efficiency for family life. A dedicated game room provides endless entertainment possibilities. With a 3-car front-load garage, split-bedroom layout, 9-foot ceilings on both floors, and durable 2x4 wall and truss roof construction with mixed 8:12 and 12:12 pitches, this home beautifully combines elegance, practicality, and comfort for growing families.








