Welcome back! We activated a special $50 coupon for you valid for 24 hours
Get

Garage Apartment Plans with Living Quarters

Apartment Garage With Living Quarters Plans

Looking to expand your garage with apartment plans? Our extensive collection of detached garage plans features a range of choices, from car and RV storage to workshops, lofts, and even garage plans with apartments. The size of your garage with apartment can significantly impact design options, parking capacity, and the type of living accommodations available. Browse our garage home plans to find one that fits your needs and elevate your space today.

Introduction

Garage apartment plans have become a popular solution for homeowners seeking to add extra space and living quarters to their property. These versatile designs, often referred to as garage apartments or carriage houses, combine the practicality of a detached garage with the comfort of a fully functional living space. Whether you need a private suite for parents or folks, a stylish guest apartment, or simply want to maximize your property’s storage and living potential, garage apartment plans offer a flexible answer. With a wide variety of floor plans and designs available, you can easily find a garage apartment that fits your needs—be it for accommodating guests, creating a home office, or adding a rental unit for extra income. By choosing the right apartment plans, you not only add valuable living quarters to your home but also enhance its overall appeal and functionality.

Key Features of Garages with Living Quarters

Garages with living quarters, also called ADUs or garage apartments, offer a cozy, self-contained space that’s usually smaller than the primary house but conveniently located on the same lot. These versatile garages are designed to accommodate a variety of vehicles—such as cars, boats, or recreational vehicles—making them practical and flexible for diverse storage and parking needs. Here are some of the distinct features that make garage home plans uniquely functional.

Additional Dwelling Units 

Garage apartment plans feature an ADU that can be attached to a house or a garage or built as a standalone structure. They typically have a kitchen, living area, and other amenities to make them function seamlessly as an extra unit.

Separate Entrances

Garage plans with apartment as an additional living space have a separate entry from the main property offering privacy for the occupants. This is ideal for guests, in-laws, relatives or other family members who need their own space.

Utility Connections

Garage apartment plans need to be connected to utilities like electricity, water and sewage. They may also need independent HVAC systems for temperature control.

Open Floor Plans

Since the square footage of garage apartment plans may be limited, an open floor plan creates a sense of spaciousness and allows for flexible use of the living area.

Smart Storage Options

Efficient storage solutions are necessary for garage plans with apartment commodities, so they include elements like built-in cabinets, closets, and vertical storage to maximize the available space.

Cost-Effectiveness

Many modern garage apartment plans have a smaller footprint, use eco-friendly materials, and require fewer resources to build and maintain. However, it's important to take into account additional costs such as plumbing, electricity, insulation, and interior decorating when estimating the total expense of a garage with an apartment.

Benefits of Garage Apartment Plans

Updating up your garage with apartment plans can help you unlock the potential of your property. These clever designs offer extra living space, rental income opportunities, and ultimate convenience – all while keeping everything right on your own lot.

Property Appreciation

Expanding a garage with living quarters can enhance the overall value of your home. This addition makes your home more attractive as an investment option. 

Efficient Use of Space

Garage apartment floor plans maximize the use of space and allow homeowners to make the most of their existing property by extending their living quarters. This is useful in urban settings where space is in demand.

Versatility

Garage apartment plans can also double up as a home office or a creative studio. You can use the additional dwelling unit to create a quiet, focused work environment.

Hosting Family and Friends

Accommodating guests becomes much easier if you have an ADU, such as garages with living quarters. This offers guests/in-laws/parents privacy and comfort and also makes a practical solution for multi-generational living

Additional Rental Income 

Many homeowners convert their garages into apartments to add a steady revenue stream. Be it long-term tenants or short-term vacation rentals, a separate living quarter can significantly offset living costs.

Different Types of Garage Home Plans 

With a variety of garage plans with apartment units, each design brings a unique twist to maximizing space and functionality. The type of garage apartment plan you choose—such as the foundation type or architectural style—can significantly impact structural decisions, layout options, and the overall aesthetic of your project. Looking for a 2 car garage with living quarters? Browse our 2 car garage plans for a variety of stylish and functional designs that fit your needs. Discover customizable two-car garage plans that combine practical storage with comfortable living spaces above. Whether you need extra living quarters or a smart rental option, you can browse a wide range of customizable garage home designs at Archival Designs.

Attached Units

Most garage apartment plans feature the unit attached to the side or back of the existing garage, offering direct access to both the car parking area and the main house. This setup is ideal for extended family living, making it easy to stay connected while enjoying your own space.

Detached Garage Apartments

As the name suggests, these are detached garage units that are built away from the main living area, providing added privacy and autonomy. They can be placed anywhere on the property, giving you flexibility.

Above-Garage Apartments

Popular plans for a garage with an apartment include building a “granny flat” directly above the garage area using the vertical space. These houses have a separate entrance, one or more bedrooms, a kitchen, and a bathroom. 

Studio Garage Apartments

For a compact yet functional option, these plans for a garage with an apartment feature a single, open floor plan with all the elements of a studio apartment. 

Carriage House Plans

You can channel some old-world charm with a Carriage House Plan, where the living quarters are perched on the upper level while the main floor is reserved for parking.

Living Quarters and Amenities

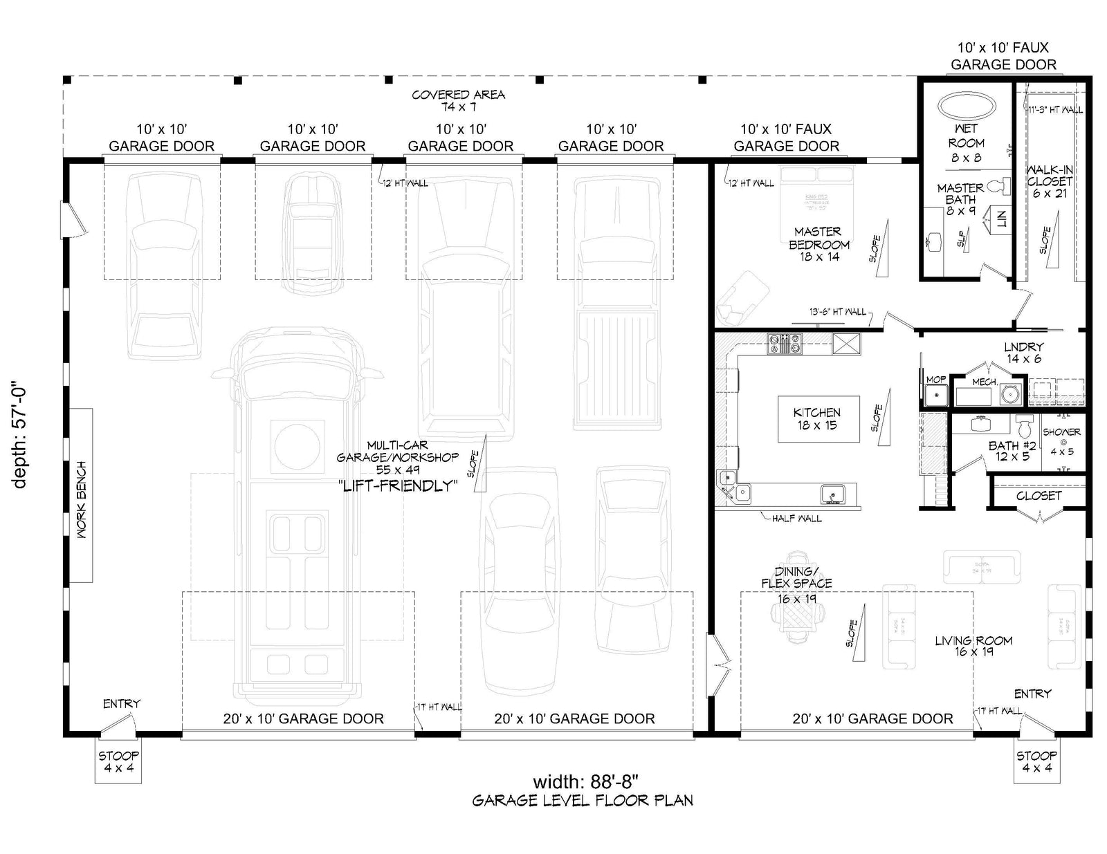
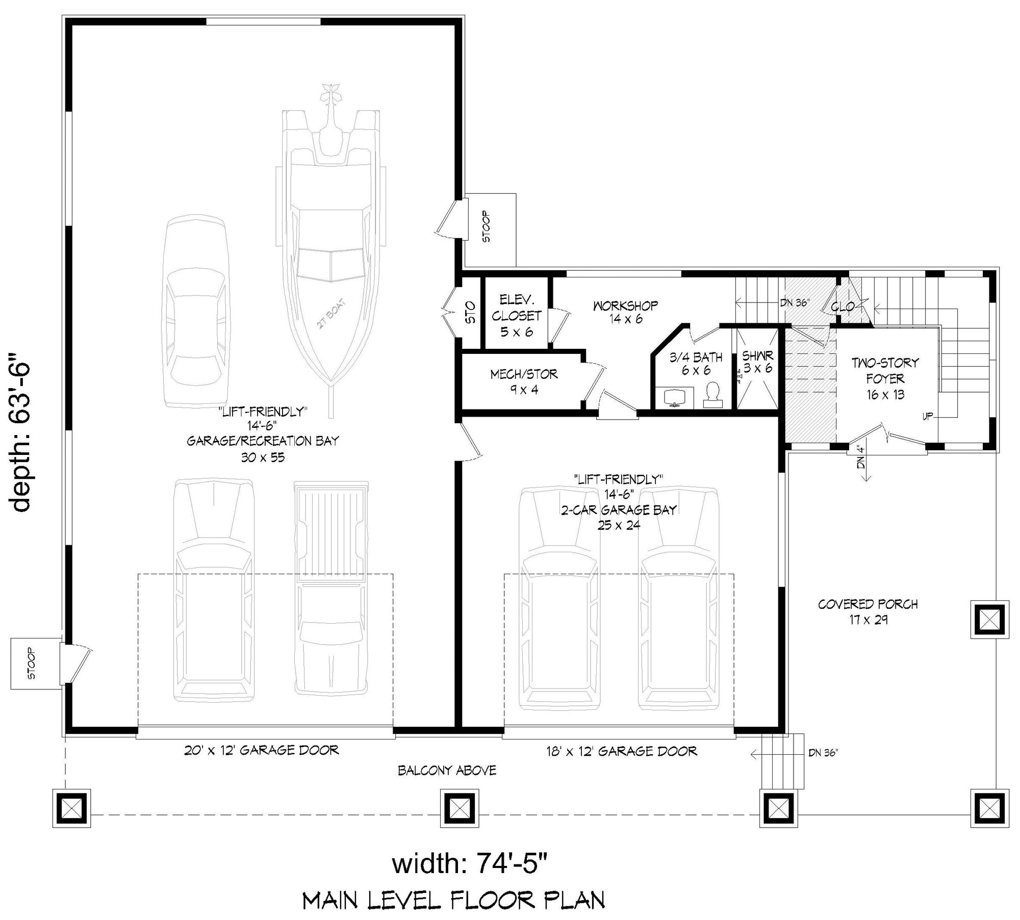
The living quarters in garage apartment plans are thoughtfully designed to provide both comfort and convenience. Most garage apartments feature an open floor plan that seamlessly connects the kitchen, dining area, and main living space, creating a welcoming environment for daily living or entertaining. Bedrooms are often equipped with a walk-in closet for ample storage, while modern kitchens may include a functional island for extra prep space and casual dining. Many apartment plans also offer desirable features like a front porch for relaxing outdoors, a dedicated storage room, or a laundry closet to make life easier. This flexibility allows you to tailor the living spaces to your specific needs—whether you’re looking to accommodate a renter, provide a cozy retreat for family members, or simply add extra space to your property. With a range of amenities and smart design features, garage apartment plans make it easy to create a secure, comfortable, and versatile living environment.

Floor Plans and Blueprints

When it comes to garage apartment plans, homeowners have access to a diverse selection of floor plans and blueprints that cater to a variety of needs and property sizes. These apartment plans can be easily customized to fit your lot, and many offer the option to add special features like a shop area, mother-in-law suite, or additional storage. With integrated plumbing and fully equipped kitchens, each plan is designed to provide a complete, ready-to-build living space. Exploring your options is simple—just check the floor plans and blueprints online, where you can click through a wide array of designs and discover the possibilities for your new living quarters. Whether you’re interested in a compact studio or a spacious apartment with multiple rooms, garage apartment plans offer the flexibility to accommodate your vision. By choosing the right design, you can add valuable extra space and functionality to your property, making it a smart investment for today and the future.

121 house plans

FAQ

What Is a Garage Apartment?

A garage apartment is a self-contained living unit built either attached to or above a garage. It typically includes its own entrance, kitchen, bathroom, and living space, providing a versatile solution for additional living quarters. Ideal for extended family, guests, or rental income, a garage apartment maximizes property usage while offering privacy and convenience.

What Is Another Name for a Garage Apartment?

Another name for a garage apartment is an Accessory Dwelling Unit (ADU). This term is commonly used to describe a secondary, self-contained living space that’s either attached to or located above a garage.

Do I Need to Check for Covenants and Building Codes Before Building a Garage Apartment?

Yes, it’s crucial to check for covenants and building codes before constructing garage plans with apartments. These regulations can affect everything from the size and design of your garage apartment to its placement on your property. Ensuring compliance with local zoning laws and building codes will help you avoid potential legal issues and ensure your project runs smoothly.

How Long Does It Take to Build a Garage with Living Quarters?

The timeline for building a garage with living quarters can vary based on the complexity of the garage home design and local construction conditions. Generally, with well-prepared plans for a garage with apartment units, the construction process can take anywhere from 3 to 6 months. Factors such as permits, weather, and contractor availability can influence the overall duration.

Our client image
Our client image
Our client image
Our client image
Our client image
Why Choose Archival Designs
Them
Cost to Build

Free

$30+
Shipping
Free
on physical blueprints
$20+
Price Guarantee
Only Price Match
Purchase

Direct


from the Architect
Middleman
Search by Plan Name