Welcome back! We activated a special $50 coupon for you valid for 24 hours
Get

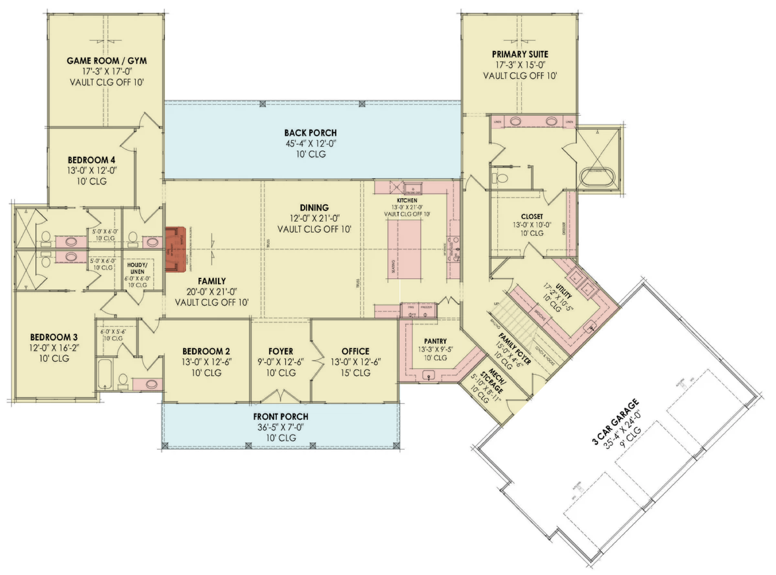
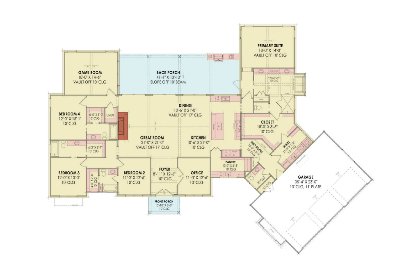
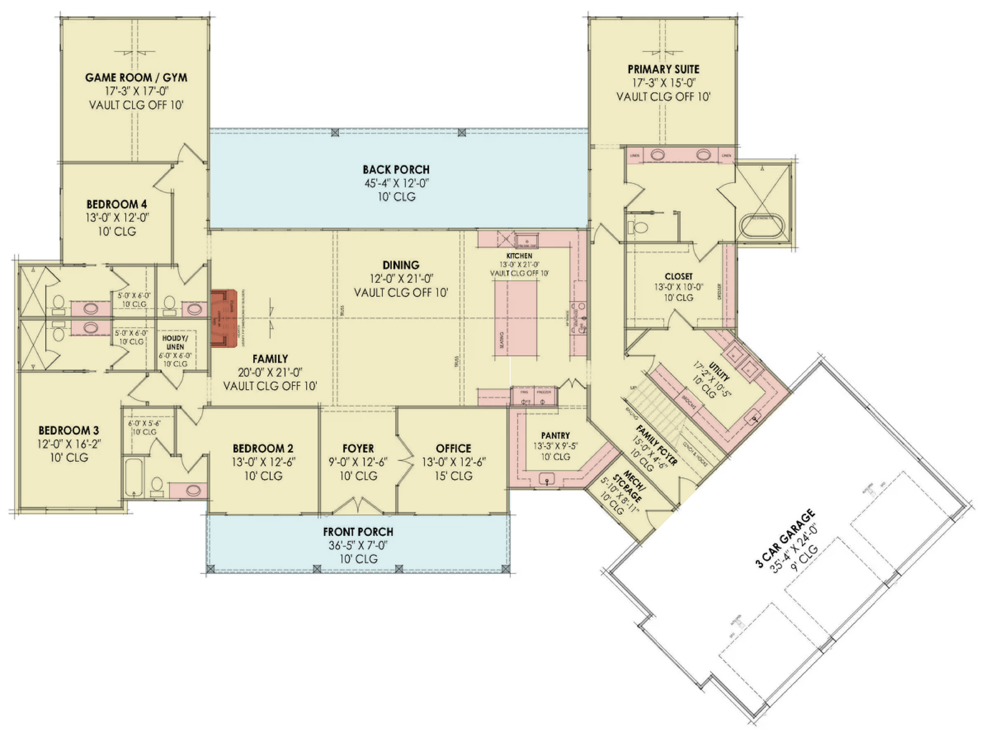
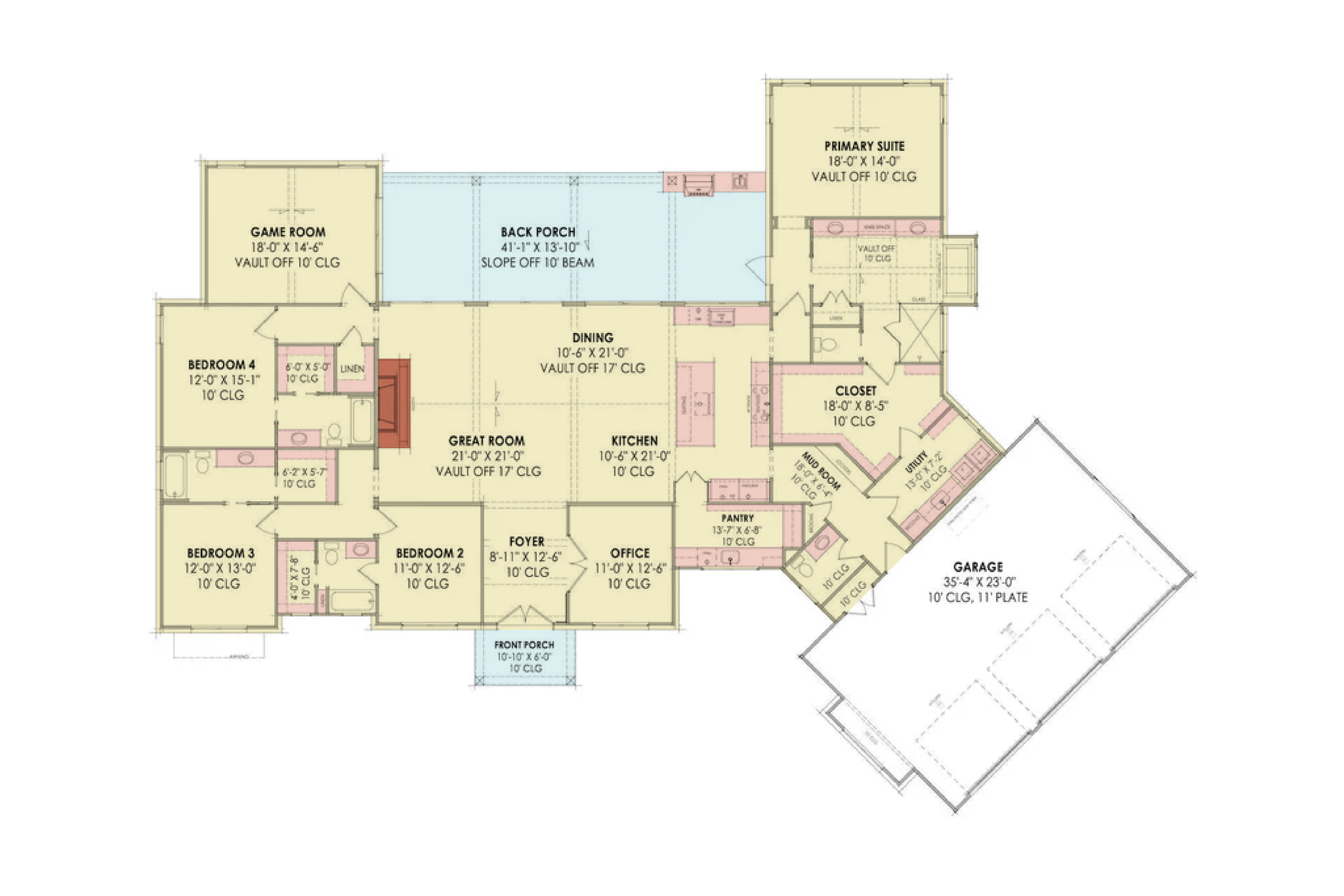
Hill Country House Plans

63 house plans

Why Choose Archival Designs
Them
Cost to Build

Free

$30+
Shipping
Free
on physical blueprints
$20+
Price Guarantee
Only Price Match
Purchase

Direct


from the Architect
Middleman
Search by Plan Name