


The Luxury Home Plan Lays draped over your lush property. Awakened by what is an acute replica of a Luxury Castle Home plan. Notice is given to the beautiful exterior wing walls; and firm circular towers.
Upon entering the Pontarion II Luxury House Plan you are greeted by a magnificent two-story foyer. The floating staircase flows seamlessly into the oval dining area. From this location in the Home Plan, you are visualizing a Grand Room, standing firmly as two full stories
This House Style allows for a rare jewel. This lies to the left of the Foyer as a sunken Library.
The library is two-story
Crafted with the castle home plan in mind, with ornate walls
An exclusive amount of space
This Exclusive House Plan sweeps into the kitchen. This substantial corner Kitchen is a top Chefs Dream. Even as an average cook, who preps and prepares for the family, they too will find themselves at ease. Today's modern family spends a significant amount of time in the Kitchen and its surroundings, Family, and Breakfast areas. Within this family triangle, there is ample space for the family Command Center.
Kitchen boasts 2 large islands for prep & cooking
Plenty of room for family & friends to congregate
Able to see & hear what is taking place in adjacent rooms
Ample Floating Cabinets coming from the Ceilings
Large Pantry
Back steps for family and back door Friends
Small office for Computer activities
Access to Covered Veranda
The family room contains a warm fireplace for those chilling mornings
Your Master Suite for this Castle House Plan lays in the exhibition just beyond the Library. Keeping in mind we are still touring this Luxury Home Plan's first floor. The Master Suite features a Sitting Area delivering a handcrafted fireplace.
A generous size trey ceiling over the Master Bedroom
It contains a small foyer entering into the Master En-Suite.
Oversized tub for soaking with a bay window full of sunlight
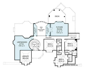
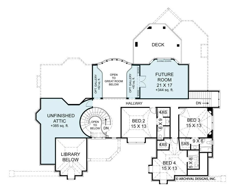
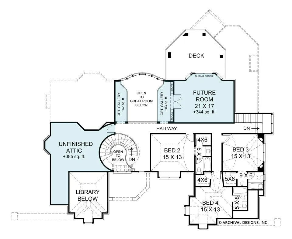
Ascending the Grand Staircase to the second floor of this Exclusive House Plan, you flow out into the hallway that leads to Bedrooms two through four. This Home Plan calls for all three bedrooms to be generous in size.
Private Baths
Walk-In Closets
In addition, this House Plan offers a Future Room for your imagination.
Private entrance to an outside deck
As you finish your tour of the Pontarion II, you are introduced to a Home Style that offers a full-size Daylight Basement. The Castle Home Plan allows for a complete Future second Master Suite or In-Law Suite. In addition, there are many extras….
Future Recreation Room
Future Gym & Sauna
The Pontarion II Castle House plan raises the bar for Home Designs. Archival Designs, Inc. is honored to have created this best selling Castle Home Plan for our clients. Its popularity is unmatched compared to other pre-designed Home Plans in our portfolio.





PDF (Single Build)
A complete set of working drawings delivered in digital PDF format. This option comes with a license to build ONE home and includes a copyright release for printing unlimited sets of plans and making modifications.
CAD + PDF (Single Build)
A complete set of working drawings delivered in digital DWG and PDF formats. AutoCAD files are used by design professionals to make significant modifications or engineering calculations to the plan. This option comes with a license to build ONE home and includes a copyright release for printing unlimited sets of plans and making modifications.
5 or 8 Prints (Single Build)
Five or eight printed sets of working drawings shipped to you. This option comes with a license to build ONE home.
5 Prints + PDF (Single Build)
Five printed sets of working drawings shipped to you, plus a digital version in PDF format. This option comes with a license to build ONE home and includes a copyright release for printing unlimited sets of plans and making modifications.
PDF (Multi Build)
A complete set of working drawings delivered in digital PDF format. This option comes with a license to build an UNLIMITED number of homes and includes a copyright release for printing unlimited sets of plans and making modifications. This option may not be available for all house plans, or may require a specific format to be purchased. Please call 770-831-6363 for more information.
CAD + PDF (Multi Build)
A complete set of working drawings delivered in digital DWG and PDF formats. AutoCAD files are used by design professionals to make significant modifications or engineering calculations to the plan. This option comes with a license to build an UNLIMITED number of homes and includes a copyright release for printing unlimited sets of plans and making modifications. This option may not be available for all house plans, or may require a specific format to be purchased. Please call 770-831-6363 for more information.
Choose a building foundation for your home. The foundation provides stability to a home's structure from the ground up.
Slab - This concrete foundation is reinforced with steel rods and suitable for flat ground.
Crawl Space - This foundation is raised off the ground with low walls resting on footings, providing space for wiring, plumbing, and storage.
Basement - This foundation is entirely or partially below ground and offers storage or living areas.
Walkout Basement - This foundation is typically suited for rear-sloping lots and provides storage or living areas. Walkout basements have doors that provide access to the outside.




The construction drawings will include detailed, dimensioned floor plans, exterior elevations, roof plan, foundation plan, basic electrical layout, cross-section(s), foundation plan, and other general specifications. Some plans will include interior cabinet layouts.
View Sample Plan
Archival Designs brings you over 40 years of experience in the house plan design business. We offer the best value for your money by offering the highest quality home designs.
We offer a 10% military & first responder discount, as well as builder discounts for life! Archival Designs guarantees the lowest prices anywhere online. Learn more about our Best Price Guarantee.
All house plans sold by Archival Designs have been designed to comply with the International Residential Code (IRC) and to the local codes in the area where the designer resides or where the house was built.
All house plans are designed to meet or exceed the national building standards required by the International Residential Code (IRC). Due to differences in climate and geography throughout North America, every city, local municipality and county has unique building codes and regulations that must be followed to obtain a building permit. Prior to purchasing a set of house plans, we recommend that you meet with your local building officials in order to determine the building requirements for your area. It is the responsibility of the purchaser(s) and/or builder to ensure that the structure is constructed to meet the codes of their local area.
Important Note:
House plans do not come stamped or signed by an architect or engineer. Additionally, house plans typically will not include structural engineering notes/calculations. Please check with your local building officials to determine if a stamp is required. If required, the building department will only accept a stamp from a licensed professional in the state where the home will be built.
Depending on your city, county, and state building requirements, house plans may need to be reviewed by a local licensed architect or engineer for structural details and code standards before construction begins. This is particularly true in coastal areas and those facing seismic events, extreme winds, and heavy snow. If you are building in any of these areas, a licensed structural engineer will likely be needed to provide the necessary calculations and additional drawings. We authorize the use of our plans conditioned on your obligation and agreement to strictly comply with all local building codes, ordinances, regulations, and requirements, including permits and inspections at the time of and during construction. We recommend checking with your local building department for the most current requirements. The purchaser(s) and/or builder are responsible for additional expenses incurred through meeting municipality requirements or other requirements for construction.
Our foundation plans have been designed for universal conditions and may need to be adjusted to fit your specific site conditions. The foundation should be modified by a local structural engineer to comply with soil testing laboratory findings and local building requirements.
Our house plans will include schematic electrical drawings; however, circuiting or wire sizing will not be included. Your electrical subcontractor will typically provide these drawings.
HVAC and plumbing drawings are not included. Your mechanical and plumbing subcontractors will determine the best layout for your site. Local HVAC codes, climatic requirements and commonly used systems vary throughout the country. The direction of how water flow will enter the home vary from case to case. For this reason, it is impossible to provide universal plans.

The Luxury Home Plan Lays draped over your lush property. Awakened by what is an acute replica of a Luxury Castle Home plan. Notice is given to the beautiful exterior wing walls; and firm circular towers.
Upon entering the Pontarion II Luxury House Plan you are greeted by a magnificent two-story foyer. The floating staircase flows seamlessly into the oval dining area. From this location in the Home Plan, you are visualizing a Grand Room, standing firmly as two full stories
This House Style allows for a rare jewel. This lies to the left of the Foyer as a sunken Library.
The library is two-story
Crafted with the castle home plan in mind, with ornate walls
An exclusive amount of space
This Exclusive House Plan sweeps into the kitchen. This substantial corner Kitchen is a top Chefs Dream. Even as an average cook, who preps and prepares for the family, they too will find themselves at ease. Today's modern family spends a significant amount of time in the Kitchen and its surroundings, Family, and Breakfast areas. Within this family triangle, there is ample space for the family Command Center.
Kitchen boasts 2 large islands for prep & cooking
Plenty of room for family & friends to congregate
Able to see & hear what is taking place in adjacent rooms
Ample Floating Cabinets coming from the Ceilings
Large Pantry
Back steps for family and back door Friends
Small office for Computer activities
Access to Covered Veranda
The family room contains a warm fireplace for those chilling mornings
Your Master Suite for this Castle House Plan lays in the exhibition just beyond the Library. Keeping in mind we are still touring this Luxury Home Plan's first floor. The Master Suite features a Sitting Area delivering a handcrafted fireplace.
A generous size trey ceiling over the Master Bedroom
It contains a small foyer entering into the Master En-Suite.
Oversized tub for soaking with a bay window full of sunlight
Ascending the Grand Staircase to the second floor of this Exclusive House Plan, you flow out into the hallway that leads to Bedrooms two through four. This Home Plan calls for all three bedrooms to be generous in size.
Private Baths
Walk-In Closets
In addition, this House Plan offers a Future Room for your imagination.
Private entrance to an outside deck
As you finish your tour of the Pontarion II, you are introduced to a Home Style that offers a full-size Daylight Basement. The Castle Home Plan allows for a complete Future second Master Suite or In-Law Suite. In addition, there are many extras….
Future Recreation Room
Future Gym & Sauna
The Pontarion II Castle House plan raises the bar for Home Designs. Archival Designs, Inc. is honored to have created this best selling Castle Home Plan for our clients. Its popularity is unmatched compared to other pre-designed Home Plans in our portfolio.


