A572-A



We might think we are nurturing our garden, but of course, it's our garden that is nurturing us.
- Jenny Uglow
Live the good life in this modern farmhouse plan. You've earned it! With its sprawling wraparound rear porch, functional multipurpose laundry/mudroom area, and abundant views to the backyard, this country house plan is a gardener's dream come true!
Designed around the idea of 'farm to table' in mind, this two-story home plan flaunts an oversized mudroom/laundry room. This functional multipurpose space with private entry from the covered rear porch is the perfect place to start seedlings for the garden, wash pets, and clean up after an afternoon of gardening. This brightly lit space offers spacious folding counters, abundant storage, a deep utility sink, an organized drop-off area for the family and direct access to the half bathroom from the backyard. No mess in the house, ever!
Spanning 1,999 square feet, this charming small house plan is graced by airy vaulted ceilings that add openness and volume from the state-of-the-art kitchen, great room, and the master bedroom. This home plan is a haven that will lift your spirits as you watch your garden grow through multiple modern sliding doors and immense windows on the rear of the home.
If you've always wanted a show-stopping kitchen this house will fulfill those needs. Cook your favorite recipes and surprise guests in this dramatic and surprisingly large kitchen design. Entertaining is easy with plentiful storage along three walls, smart appliances, over 25 linear feet of counter space, and an oversized 4'-6" x 8'-0" kitchen island with built-in seating. For the basement foundation option, a small portion of the kitchen cabinets will be replaced by the entry to the stairs (as illustrated on the first-floor plan).
The comfortable master suite dazzles with its sophisticated bathroom that includes a free-standing soaking tub, a separate 3'-0" x 4'-6" glass shower, and a generous walk-in closet. The first-floor level is complete with a half bath off the mudroom and a 2-car garage with a workbench along with the extra storage under the stairs.
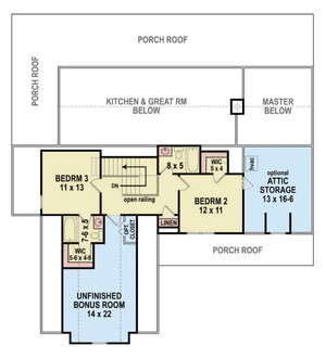
The upper level of this luxurious design offers two secondary bedrooms each with a walk-in closet and private bath. An unfinished bonus room above the garage can easily be utilized as a 4th bedroom, art room, or man cave. An optional attic space conveniently accessible from bedroom 2 can be utilized as unfinished storage or transformed into extra living square footage. The 'unfinished bonus room' and 'optional attic storage' shown on the plan are not included in the total heated/living square footage.
Photography Credit: Patrick Hood Photography| Construction Credit: KO Construction, LLC





PDF (Single Build)
A complete set of working drawings delivered in digital PDF format. This option comes with a license to build ONE home and includes a copyright release for printing unlimited sets of plans and making modifications.
CAD + PDF (Single Build)
A complete set of working drawings delivered in digital DWG and PDF formats. AutoCAD files are used by design professionals to make significant modifications or engineering calculations to the plan. This option comes with a license to build ONE home and includes a copyright release for printing unlimited sets of plans and making modifications.
5 or 8 Prints (Single Build)
Five or eight printed sets of working drawings shipped to you. This option comes with a license to build ONE home.
5 Prints + PDF (Single Build)
Five printed sets of working drawings shipped to you, plus a digital version in PDF format. This option comes with a license to build ONE home and includes a copyright release for printing unlimited sets of plans and making modifications.
PDF (Multi Build)
A complete set of working drawings delivered in digital PDF format. This option comes with a license to build an UNLIMITED number of homes and includes a copyright release for printing unlimited sets of plans and making modifications. This option may not be available for all house plans, or may require a specific format to be purchased. Please call 770-831-6363 for more information.
CAD + PDF (Multi Build)
A complete set of working drawings delivered in digital DWG and PDF formats. AutoCAD files are used by design professionals to make significant modifications or engineering calculations to the plan. This option comes with a license to build an UNLIMITED number of homes and includes a copyright release for printing unlimited sets of plans and making modifications. This option may not be available for all house plans, or may require a specific format to be purchased. Please call 770-831-6363 for more information.
Choose a building foundation for your home. The foundation provides stability to a home's structure from the ground up.
Slab - This concrete foundation is reinforced with steel rods and suitable for flat ground.
Crawl Space - This foundation is raised off the ground with low walls resting on footings, providing space for wiring, plumbing, and storage.
Basement - This foundation is entirely or partially below ground and offers storage or living areas.
Walkout Basement - This foundation is typically suited for rear-sloping lots and provides storage or living areas. Walkout basements have doors that provide access to the outside.




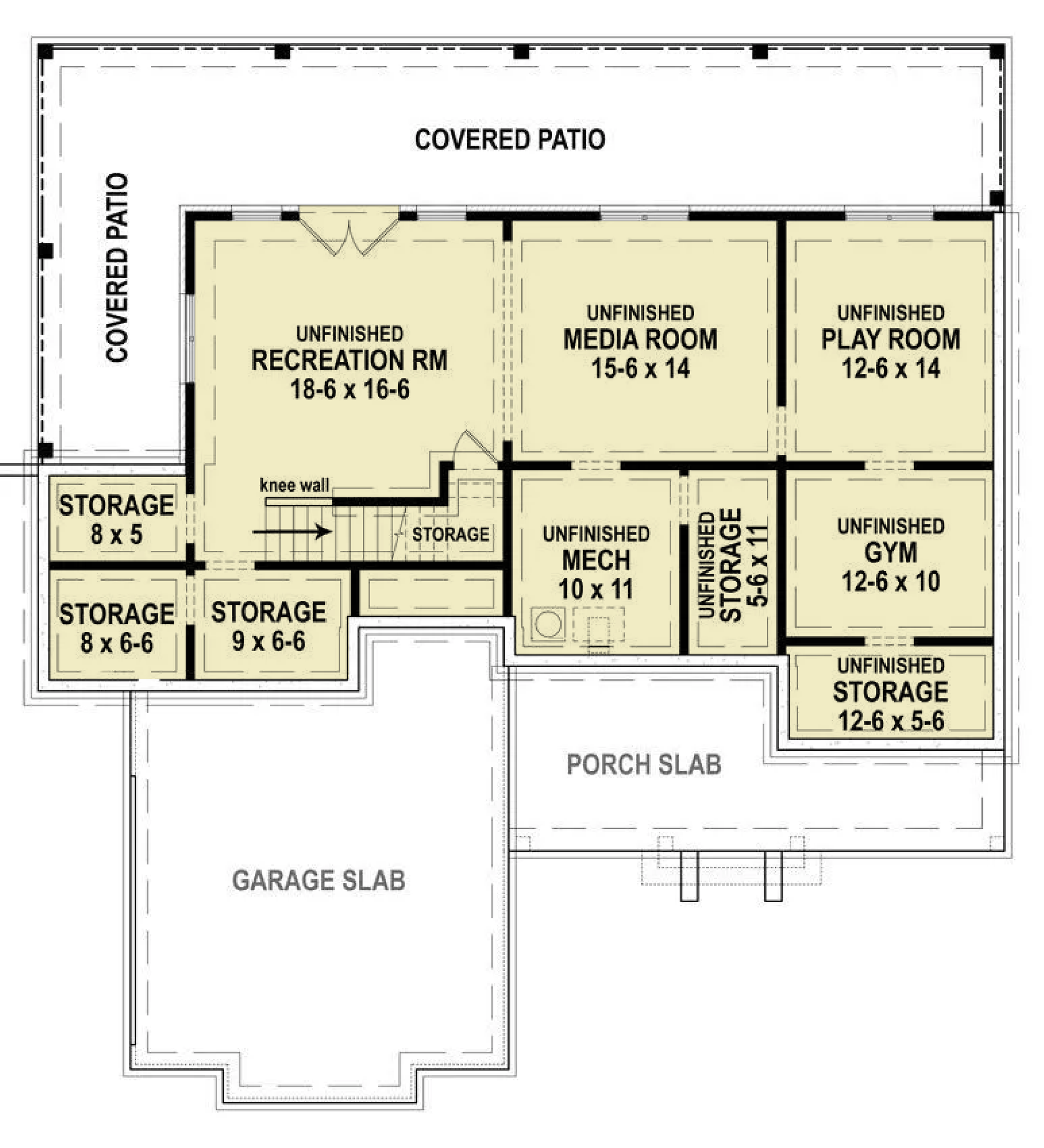
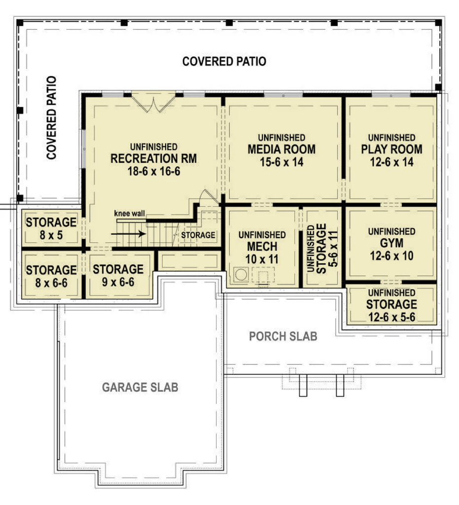
The construction drawings will include detailed, dimensioned floor plans, exterior elevations, roof plan, foundation plan, basic electrical layout, cross-section(s), foundation plan, and other general specifications. Some plans will include interior cabinet layouts.
View Sample Plan
Archival Designs brings you over 40 years of experience in the house plan design business. We offer the best value for your money by offering the highest quality home designs.
We offer a 10% military & first responder discount, as well as builder discounts for life! Archival Designs guarantees the lowest prices anywhere online. Learn more about our Best Price Guarantee.
All house plans sold by Archival Designs have been designed to comply with the International Residential Code (IRC) and to the local codes in the area where the designer resides or where the house was built.
All house plans are designed to meet or exceed the national building standards required by the International Residential Code (IRC). Due to differences in climate and geography throughout North America, every city, local municipality and county has unique building codes and regulations that must be followed to obtain a building permit. Prior to purchasing a set of house plans, we recommend that you meet with your local building officials in order to determine the building requirements for your area. It is the responsibility of the purchaser(s) and/or builder to ensure that the structure is constructed to meet the codes of their local area.
Important Note:
House plans do not come stamped or signed by an architect or engineer. Additionally, house plans typically will not include structural engineering notes/calculations. Please check with your local building officials to determine if a stamp is required. If required, the building department will only accept a stamp from a licensed professional in the state where the home will be built.
Depending on your city, county, and state building requirements, house plans may need to be reviewed by a local licensed architect or engineer for structural details and code standards before construction begins. This is particularly true in coastal areas and those facing seismic events, extreme winds, and heavy snow. If you are building in any of these areas, a licensed structural engineer will likely be needed to provide the necessary calculations and additional drawings. We authorize the use of our plans conditioned on your obligation and agreement to strictly comply with all local building codes, ordinances, regulations, and requirements, including permits and inspections at the time of and during construction. We recommend checking with your local building department for the most current requirements. The purchaser(s) and/or builder are responsible for additional expenses incurred through meeting municipality requirements or other requirements for construction.
Our foundation plans have been designed for universal conditions and may need to be adjusted to fit your specific site conditions. The foundation should be modified by a local structural engineer to comply with soil testing laboratory findings and local building requirements.
Our house plans will include schematic electrical drawings; however, circuiting or wire sizing will not be included. Your electrical subcontractor will typically provide these drawings.
HVAC and plumbing drawings are not included. Your mechanical and plumbing subcontractors will determine the best layout for your site. Local HVAC codes, climatic requirements and commonly used systems vary throughout the country. The direction of how water flow will enter the home vary from case to case. For this reason, it is impossible to provide universal plans.

We might think we are nurturing our garden, but of course, it's our garden that is nurturing us.
- Jenny Uglow
Live the good life in this modern farmhouse plan. You've earned it! With its sprawling wraparound rear porch, functional multipurpose laundry/mudroom area, and abundant views to the backyard, this country house plan is a gardener's dream come true!
Designed around the idea of 'farm to table' in mind, this two-story home plan flaunts an oversized mudroom/laundry room. This functional multipurpose space with private entry from the covered rear porch is the perfect place to start seedlings for the garden, wash pets, and clean up after an afternoon of gardening. This brightly lit space offers spacious folding counters, abundant storage, a deep utility sink, an organized drop-off area for the family and direct access to the half bathroom from the backyard. No mess in the house, ever!
Spanning 1,999 square feet, this charming small house plan is graced by airy vaulted ceilings that add openness and volume from the state-of-the-art kitchen, great room, and the master bedroom. This home plan is a haven that will lift your spirits as you watch your garden grow through multiple modern sliding doors and immense windows on the rear of the home.
If you've always wanted a show-stopping kitchen this house will fulfill those needs. Cook your favorite recipes and surprise guests in this dramatic and surprisingly large kitchen design. Entertaining is easy with plentiful storage along three walls, smart appliances, over 25 linear feet of counter space, and an oversized 4'-6" x 8'-0" kitchen island with built-in seating. For the basement foundation option, a small portion of the kitchen cabinets will be replaced by the entry to the stairs (as illustrated on the first-floor plan).
The comfortable master suite dazzles with its sophisticated bathroom that includes a free-standing soaking tub, a separate 3'-0" x 4'-6" glass shower, and a generous walk-in closet. The first-floor level is complete with a half bath off the mudroom and a 2-car garage with a workbench along with the extra storage under the stairs.
The upper level of this luxurious design offers two secondary bedrooms each with a walk-in closet and private bath. An unfinished bonus room above the garage can easily be utilized as a 4th bedroom, art room, or man cave. An optional attic space conveniently accessible from bedroom 2 can be utilized as unfinished storage or transformed into extra living square footage. The 'unfinished bonus room' and 'optional attic storage' shown on the plan are not included in the total heated/living square footage.
Photography Credit: Patrick Hood Photography| Construction Credit: KO Construction, LLC


