A213-A



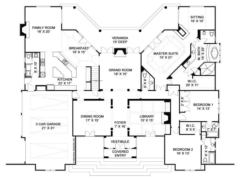
The Haistens House Plan will be a stunning addition to any gated community. A sight that will take you back in time; with the Home's multiple chimneys, pitched roofing and double door entry ways. This home has a multitude of inviting Colonial characteristics embellished with many modern extras, thus making it a plush & upscale Historic Ranch Home Plan.
Imagine the Colonial Ranch Home of your dreams, placed strategically among the greens, within a grand Country Club, or new development. Your new Home will enable you to set your Historic Home Plan apart from other home plans, with its commanding presence. This Colonial Ranch Style Home invites you inward onto a covered Entryway. Through Double doors you are ushered into the Vestibule which opens into the pristine Foyer, beneath a magnificently carved ceiling design. The elegant entrance is flanked by a formal Dining Room on the left; then appearing is an extravagant beamed ceiling within the Study to your right, complete with a large warming Fireplace.
From this vantage point in the Haistens Home Plan, you are acutely aware of the sudden light washing inward from the back of the home's immense Veranda.
In our unbroken movement around, we find ourselves in the hub of this Colonial Ranch Estate House Plan. This hub is formed by the Family Room which is garnished with a classical trey ceiling and a comforting Fireplace. Next to the Family Room is the Breakfast Area, which contains a snack counter. This Room gives gracious views and access to the Veranda. It is shaped so as to draw everyone inward to the heart of the rooms.
The conduit holding each room's attention is the Chef-inspired Kitchen which is the center stone of the classic ring of any Home. The Kitchen displays an oversized gourmet work Island. In any family the importance of socialization, while the cook prepares meals, is very meaningful.
From Here we are whisked into The Grand Room, as it calls out to family members and guests alike βΓΓΊwelcomeβΓΓΉ! The Room itself features 10- foot ceilings, and an ornate oversized Fireplace for ambiance. From either side of the Fireplace there are sets of French Doors giving a wide berth to the liveliness taking place outside on the Veranda.
Colossal in size, the Master Suite is able to offer many special amenities. The Home Style Design was made to allow the Master Suite itself to hold your bed comfortably, while adding a quiet and personal Sitting Area. The Master Suite is Bright and allows a perfect view of the activities taking place outside on the lawn or your expansive Veranda.





PDF (Single Build)
A complete set of working drawings delivered in digital PDF format. This option comes with a license to build ONE home and includes a copyright release for printing unlimited sets of plans and making modifications.
CAD + PDF (Single Build)
A complete set of working drawings delivered in digital DWG and PDF formats. AutoCAD files are used by design professionals to make significant modifications or engineering calculations to the plan. This option comes with a license to build ONE home and includes a copyright release for printing unlimited sets of plans and making modifications.
5 or 8 Prints (Single Build)
Five or eight printed sets of working drawings shipped to you. This option comes with a license to buildΒ ONEΒ home.
5Β PrintsΒ + PDF (Single Build)
Five printed sets of working drawings shipped to you, plus a digital version in PDF format. This option comes with a license to build ONE home and includes a copyright release for printing unlimited sets of plans and making modifications.
PDF (Multi Build)
A complete set of working drawings delivered in digital PDF format. This option comes with a license to build an UNLIMITED number of homes and includes a copyright release for printing unlimited sets of plans and making modifications. This option may not be available for all house plans, or may require a specific format to be purchased. Please call 770-831-6363 for more information.
CAD + PDF (Multi Build)
A complete set of working drawings delivered in digital DWG and PDF formats. AutoCAD files are used by design professionals to make significant modifications or engineering calculations to the plan. This option comes with a license to build an UNLIMITED number ofΒ homes and includes a copyright release for printing unlimited sets of plans and making modifications.Β This option may not be available for all house plans, or may require a specific format to be purchased. Please call 770-831-6363 for more information.
Choose a building foundation for your home. The foundation provides stability to a home's structure from the ground up.
Slab - This concrete foundation is reinforced with steel rods and suitable for flat ground.
Crawl Space - This foundation is raised off the ground with low walls resting on footings, providing space for wiring, plumbing, and storage.
Basement - This foundation is entirely or partially below ground and offers storage or living areas.
Walkout Basement - This foundation is typically suited for rear-sloping lots and provides storage or living areas. Walkout basements have doors that provide access to the outside.




The construction drawings will include detailed, dimensioned floor plans, exterior elevations, roof plan, foundation plan, basic electrical layout, cross-section(s), foundation plan, and other general specifications. Some plans will include interior cabinet layouts.
Β
View Sample PlanArchival Designs brings you over 40 years of experience in the house plan design business.Β We offer the best value for your money by offering the highest quality home designs.
We offer a 10% military & first responder discount, as well as builder discounts for life!Β Archival Designs guarantees the lowest prices anywhere online.Β Learn more about our Best Price Guarantee.
All house plans sold by Archival Designs have been designed to comply with the International Residential Code (IRC) and to the local codes in the area where the designer resides or where the house was built.
Β
All house plans are designed to meet or exceed the national building standards required by the International Residential Code (IRC). Due to differences in climate and geography throughout North America, every city, local municipality and county has unique building codes and regulations that must be followed to obtain a building permit. Prior to purchasing a set of house plans, we recommend that you meet with your local building officials in order to determine the building requirements for your area.Β It is the responsibility of the purchaser(s) and/or builder to ensure that the structure is constructed to meet the codes of their local area.Β Β
Important Note:
Β
House plans do not come stamped or signed by an architect or engineer.Β Additionally, house plans typically will not includeΒ structural engineering notes/calculations. Please check with your local building officials to determine if a stamp is required. If required, the building department will only accept a stamp from a licensed professional in the state where the home will be built.
Depending on your city, county, and state building requirements, house plans may need to be reviewed by a local licensed architect or engineer for structural details and code standards before construction begins. This is particularly true in coastal areas and those facing seismic events, extreme winds, and heavy snow. If you are building in any of these areas, a licensed structural engineer will likely be needed to provide the necessary calculations and additional drawings. We authorize the use of our plans conditioned on your obligation and agreement to strictly comply with all local building codes, ordinances, regulations, and requirements, including permits and inspections at the time of and during construction. We recommend checking with your local building department for the most current requirements.Β The purchaser(s) and/or builder are responsible for additional expenses incurred through meeting municipality requirements or other requirements for construction.
Β
Our foundation plans have been designed for universal conditions and may need to be adjusted to fit your specific site conditions. The foundation should be modified by a local structural engineer to comply with soil testing laboratory findings and local building requirements.
Β Β
Our house plans will include schematic electrical drawings; however, circuiting or wire sizing will not be included.Β Your electrical subcontractor will typically provide these drawings.Β
HVAC and plumbing drawings are not included. Your mechanical and plumbing subcontractors will determine the best layout for your site. Β Local HVAC codes, climatic requirements and commonly used systems vary throughout the country.Β The direction of how water flow will enter the home vary from case to case. For this reason, it is impossible to provide universal plans.Β

The Haistens House Plan will be a stunning addition to any gated community. A sight that will take you back in time; with the Home's multiple chimneys, pitched roofing and double door entry ways. This home has a multitude of inviting Colonial characteristics embellished with many modern extras, thus making it a plush & upscale Historic Ranch Home Plan.
Imagine the Colonial Ranch Home of your dreams, placed strategically among the greens, within a grand Country Club, or new development. Your new Home will enable you to set your Historic Home Plan apart from other home plans, with its commanding presence. This Colonial Ranch Style Home invites you inward onto a covered Entryway. Through Double doors you are ushered into the Vestibule which opens into the pristine Foyer, beneath a magnificently carved ceiling design. The elegant entrance is flanked by a formal Dining Room on the left; then appearing is an extravagant beamed ceiling within the Study to your right, complete with a large warming Fireplace.
From this vantage point in the Haistens Home Plan, you are acutely aware of the sudden light washing inward from the back of the home's immense Veranda.
In our unbroken movement around, we find ourselves in the hub of this Colonial Ranch Estate House Plan. This hub is formed by the Family Room which is garnished with a classical trey ceiling and a comforting Fireplace. Next to the Family Room is the Breakfast Area, which contains a snack counter. This Room gives gracious views and access to the Veranda. It is shaped so as to draw everyone inward to the heart of the rooms.
The conduit holding each room's attention is the Chef-inspired Kitchen which is the center stone of the classic ring of any Home. The Kitchen displays an oversized gourmet work Island. In any family the importance of socialization, while the cook prepares meals, is very meaningful.
From Here we are whisked into The Grand Room, as it calls out to family members and guests alike βΓΓΊwelcomeβΓΓΉ! The Room itself features 10- foot ceilings, and an ornate oversized Fireplace for ambiance. From either side of the Fireplace there are sets of French Doors giving a wide berth to the liveliness taking place outside on the Veranda.
Colossal in size, the Master Suite is able to offer many special amenities. The Home Style Design was made to allow the Master Suite itself to hold your bed comfortably, while adding a quiet and personal Sitting Area. The Master Suite is Bright and allows a perfect view of the activities taking place outside on the lawn or your expansive Veranda.


