A605-A



Live in Your Personal Castle with this Best Selling House Plan
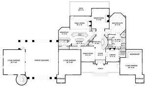
This magnificent Abby Glenn home plan sits as a sprawling estate. It's unique and luxurious two-story castle floor plan has the characteristics of a eloquent French chateau, but the cozy feeling of an intimate family home plan. At first notice the exterior design is breathtaking; it will intrigue you with its formidable design and presence, roof pitches and vast windows. This house plan is a style that will remain timeless, with its presence of the Porte Cochere accompanied by three different garages; one with its own private entry into a future in-law suite or student apartment.
The home plan opens up to a two-story foyer giving way to a center stair case. From here you have a clear and impressive view to the opposite end of the home. The halls are flanked by an opulent dining room and library. Uniquely, the library features a hidden room behind built-in bookcases, which could be used for valuables or safety.
Deep in this luxurious home plan there is a grand room, welcoming family room, and wide scale kitchen. There is great circulation and flow through the kitchen, allowing for conversation well into the breakfast and family rooms. Your eye will immediately take note of the abundance of floating cabinet space; leading you directly into an enormous pantry. As a refreshing idea, this castle home plan offers a stairway leading from the kitchen to the second floor, for children or backdoor guest. One can only fantasize the smells from this chef's kitchen, wafting up the stairs to draw everyone near. Privately tucked away to the east is the large master suite which features a large private bathroom, adorned with both his & hers walk-in closets.
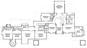
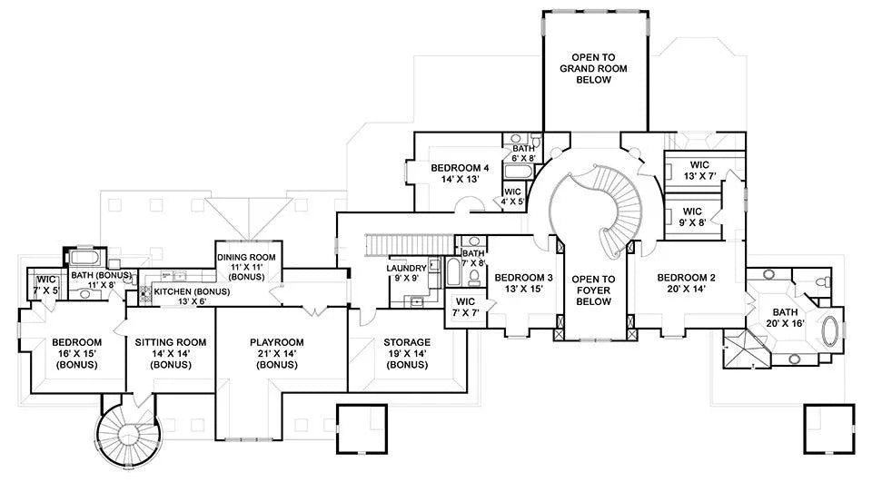
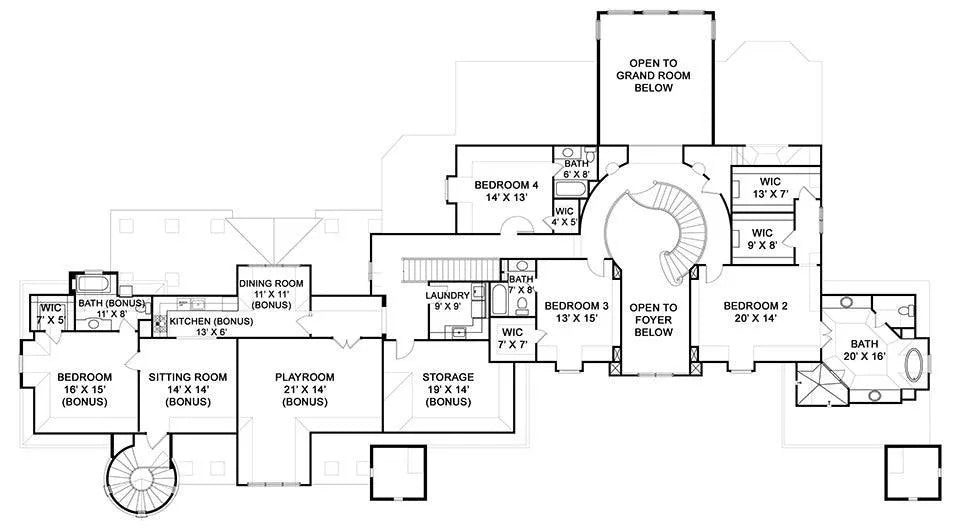
Taking the wide staircase onto the second floor landing, you are greeted with a breathtaking view over and onto the open Foyer and the Grand Room. There are two spacious bedrooms that can be found, with their own private baths. In addition you will find ample bonus space for a playroom, designed specifically for this house plan.
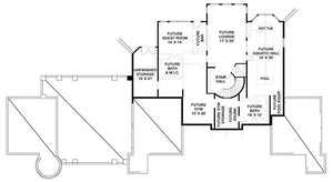
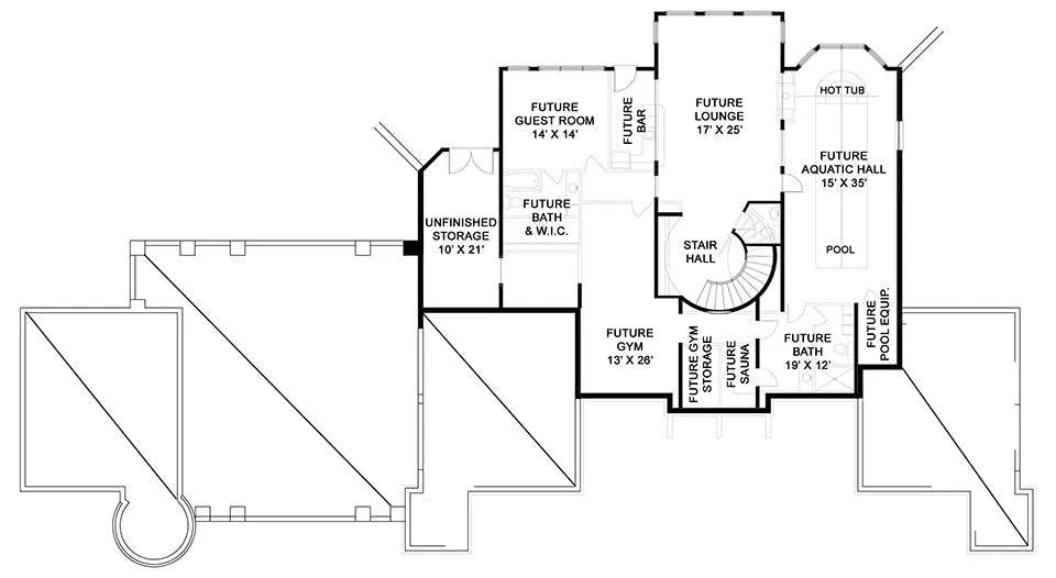
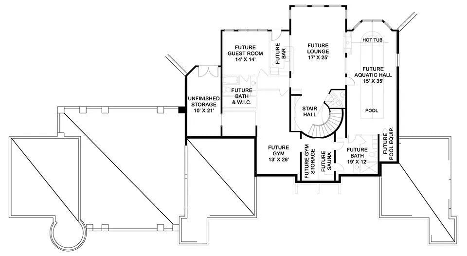
Agracious Second Master Suite with an adjacent en-suite as well as his & her walk in closets. The Castle Home Plan offers an unfinished in-law suite with a spacious bedroom, sitting room, kitchen, and small dining area. This can be addressed as your family feels the need for it.
During our 30 years of business, Archival Designs, Inc. has created dozens of award winning house plans the Abby Glen house plan is one of our success stories.





PDF (Single Build)
A complete set of working drawings delivered in digital PDF format. This option comes with a license to build ONE home and includes a copyright release for printing unlimited sets of plans and making modifications.
CAD + PDF (Single Build)
A complete set of working drawings delivered in digital DWG and PDF formats. AutoCAD files are used by design professionals to make significant modifications or engineering calculations to the plan. This option comes with a license to build ONE home and includes a copyright release for printing unlimited sets of plans and making modifications.
5 or 8 Prints (Single Build)
Five or eight printed sets of working drawings shipped to you. This option comes with a license to build ONE home.
5 Prints + PDF (Single Build)
Five printed sets of working drawings shipped to you, plus a digital version in PDF format. This option comes with a license to build ONE home and includes a copyright release for printing unlimited sets of plans and making modifications.
PDF (Multi Build)
A complete set of working drawings delivered in digital PDF format. This option comes with a license to build an UNLIMITED number of homes and includes a copyright release for printing unlimited sets of plans and making modifications. This option may not be available for all house plans, or may require a specific format to be purchased. Please call 770-831-6363 for more information.
CAD + PDF (Multi Build)
A complete set of working drawings delivered in digital DWG and PDF formats. AutoCAD files are used by design professionals to make significant modifications or engineering calculations to the plan. This option comes with a license to build an UNLIMITED number of homes and includes a copyright release for printing unlimited sets of plans and making modifications. This option may not be available for all house plans, or may require a specific format to be purchased. Please call 770-831-6363 for more information.
Choose a building foundation for your home. The foundation provides stability to a home's structure from the ground up.
Slab - This concrete foundation is reinforced with steel rods and suitable for flat ground.
Crawl Space - This foundation is raised off the ground with low walls resting on footings, providing space for wiring, plumbing, and storage.
Basement - This foundation is entirely or partially below ground and offers storage or living areas.
Walkout Basement - This foundation is typically suited for rear-sloping lots and provides storage or living areas. Walkout basements have doors that provide access to the outside.




The construction drawings will include detailed, dimensioned floor plans, exterior elevations, roof plan, foundation plan, basic electrical layout, cross-section(s), foundation plan, and other general specifications. Some plans will include interior cabinet layouts.
View Sample Plan
Archival Designs brings you over 40 years of experience in the house plan design business. We offer the best value for your money by offering the highest quality home designs.
We offer a 10% military & first responder discount, as well as builder discounts for life! Archival Designs guarantees the lowest prices anywhere online. Learn more about our Best Price Guarantee.
All house plans sold by Archival Designs have been designed to comply with the International Residential Code (IRC) and to the local codes in the area where the designer resides or where the house was built.
All house plans are designed to meet or exceed the national building standards required by the International Residential Code (IRC). Due to differences in climate and geography throughout North America, every city, local municipality and county has unique building codes and regulations that must be followed to obtain a building permit. Prior to purchasing a set of house plans, we recommend that you meet with your local building officials in order to determine the building requirements for your area. It is the responsibility of the purchaser(s) and/or builder to ensure that the structure is constructed to meet the codes of their local area.
Important Note:
House plans do not come stamped or signed by an architect or engineer. Additionally, house plans typically will not include structural engineering notes/calculations. Please check with your local building officials to determine if a stamp is required. If required, the building department will only accept a stamp from a licensed professional in the state where the home will be built.
Depending on your city, county, and state building requirements, house plans may need to be reviewed by a local licensed architect or engineer for structural details and code standards before construction begins. This is particularly true in coastal areas and those facing seismic events, extreme winds, and heavy snow. If you are building in any of these areas, a licensed structural engineer will likely be needed to provide the necessary calculations and additional drawings. We authorize the use of our plans conditioned on your obligation and agreement to strictly comply with all local building codes, ordinances, regulations, and requirements, including permits and inspections at the time of and during construction. We recommend checking with your local building department for the most current requirements. The purchaser(s) and/or builder are responsible for additional expenses incurred through meeting municipality requirements or other requirements for construction.
Our foundation plans have been designed for universal conditions and may need to be adjusted to fit your specific site conditions. The foundation should be modified by a local structural engineer to comply with soil testing laboratory findings and local building requirements.
Our house plans will include schematic electrical drawings; however, circuiting or wire sizing will not be included. Your electrical subcontractor will typically provide these drawings.
HVAC and plumbing drawings are not included. Your mechanical and plumbing subcontractors will determine the best layout for your site. Local HVAC codes, climatic requirements and commonly used systems vary throughout the country. The direction of how water flow will enter the home vary from case to case. For this reason, it is impossible to provide universal plans.

Live in Your Personal Castle with this Best Selling House Plan
This magnificent Abby Glenn home plan sits as a sprawling estate. It's unique and luxurious two-story castle floor plan has the characteristics of a eloquent French chateau, but the cozy feeling of an intimate family home plan. At first notice the exterior design is breathtaking; it will intrigue you with its formidable design and presence, roof pitches and vast windows. This house plan is a style that will remain timeless, with its presence of the Porte Cochere accompanied by three different garages; one with its own private entry into a future in-law suite or student apartment.
The home plan opens up to a two-story foyer giving way to a center stair case. From here you have a clear and impressive view to the opposite end of the home. The halls are flanked by an opulent dining room and library. Uniquely, the library features a hidden room behind built-in bookcases, which could be used for valuables or safety.
Deep in this luxurious home plan there is a grand room, welcoming family room, and wide scale kitchen. There is great circulation and flow through the kitchen, allowing for conversation well into the breakfast and family rooms. Your eye will immediately take note of the abundance of floating cabinet space; leading you directly into an enormous pantry. As a refreshing idea, this castle home plan offers a stairway leading from the kitchen to the second floor, for children or backdoor guest. One can only fantasize the smells from this chef's kitchen, wafting up the stairs to draw everyone near. Privately tucked away to the east is the large master suite which features a large private bathroom, adorned with both his & hers walk-in closets.
Taking the wide staircase onto the second floor landing, you are greeted with a breathtaking view over and onto the open Foyer and the Grand Room. There are two spacious bedrooms that can be found, with their own private baths. In addition you will find ample bonus space for a playroom, designed specifically for this house plan.
Agracious Second Master Suite with an adjacent en-suite as well as his & her walk in closets. The Castle Home Plan offers an unfinished in-law suite with a spacious bedroom, sitting room, kitchen, and small dining area. This can be addressed as your family feels the need for it.
During our 30 years of business, Archival Designs, Inc. has created dozens of award winning house plans the Abby Glen house plan is one of our success stories.


