Welcome back! We activated a special $50 coupon for you valid for 24 hours
Get

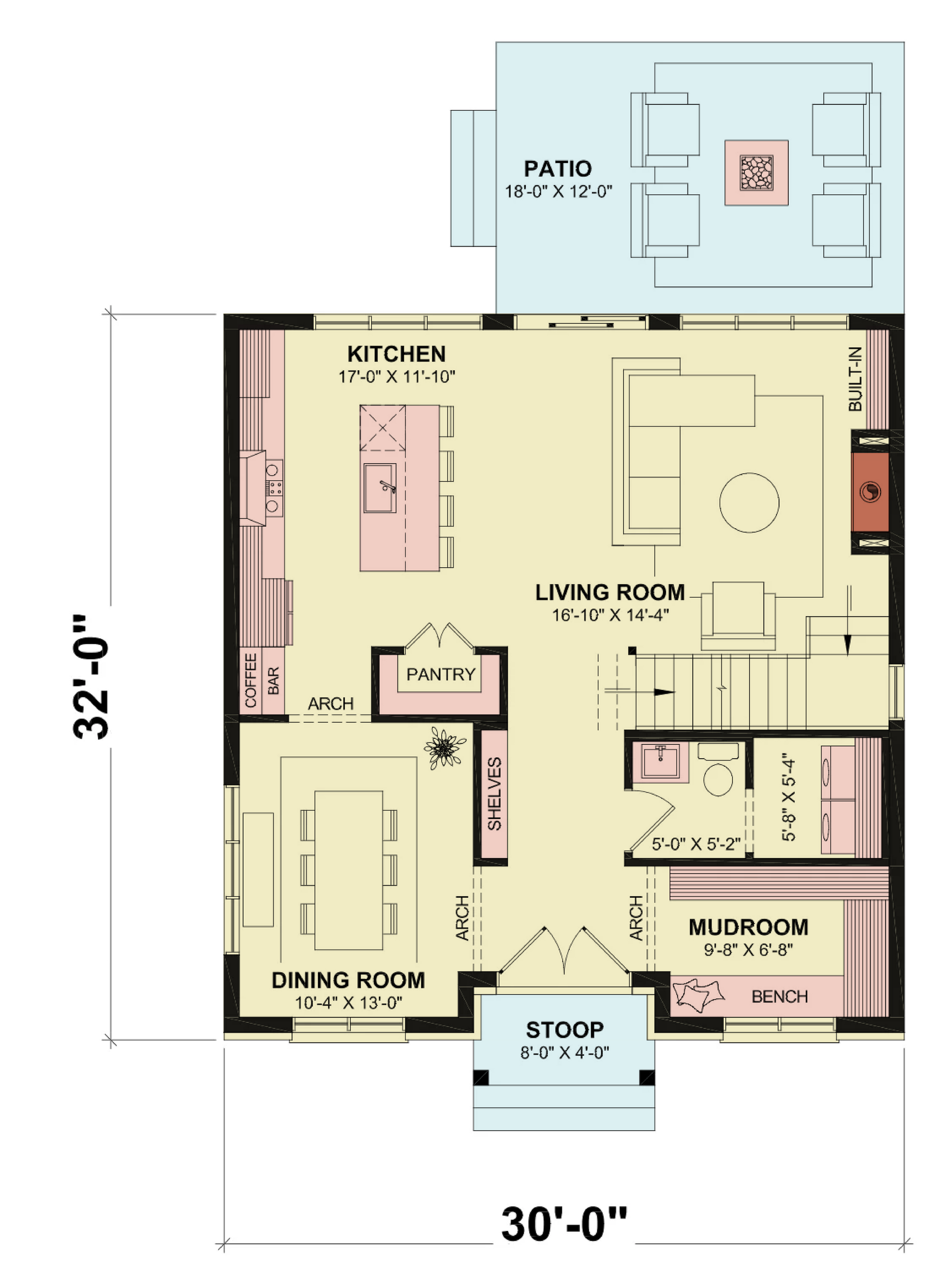
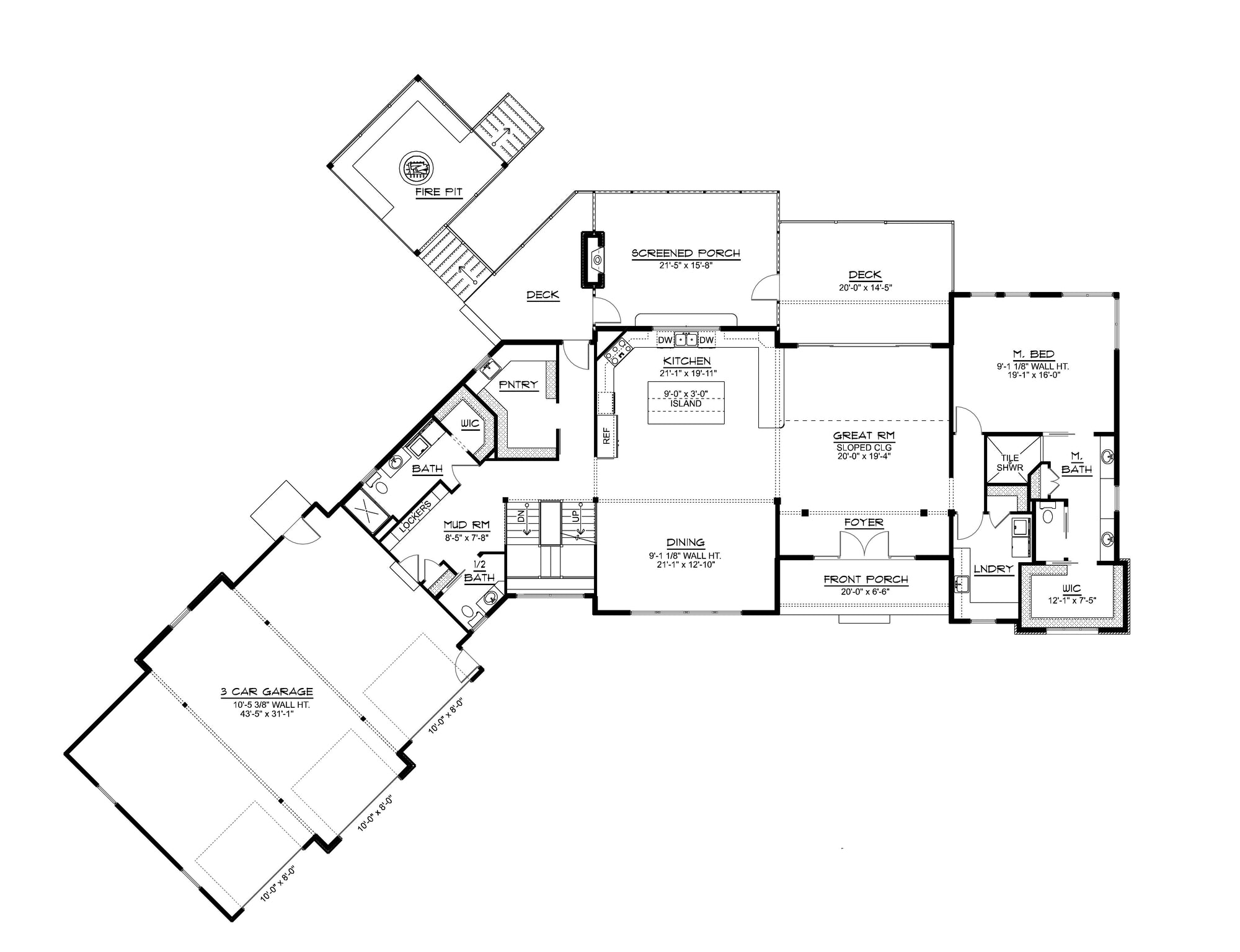
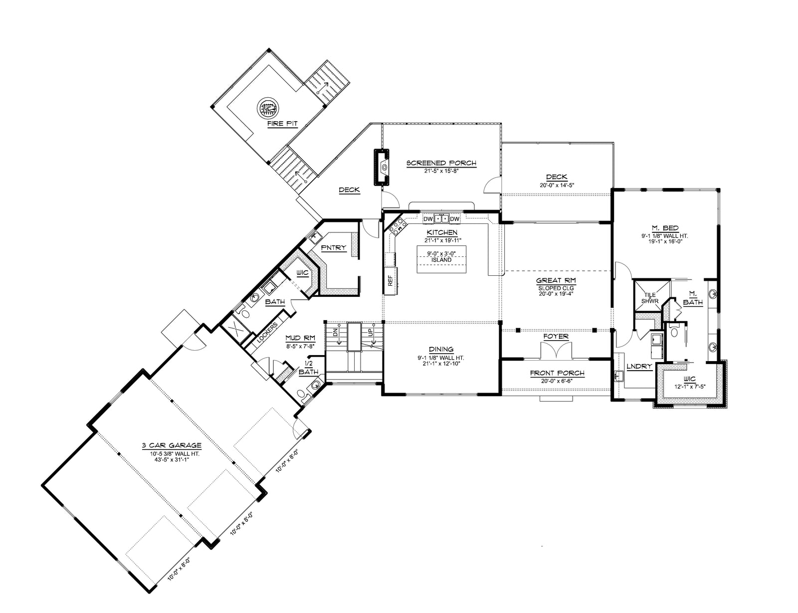
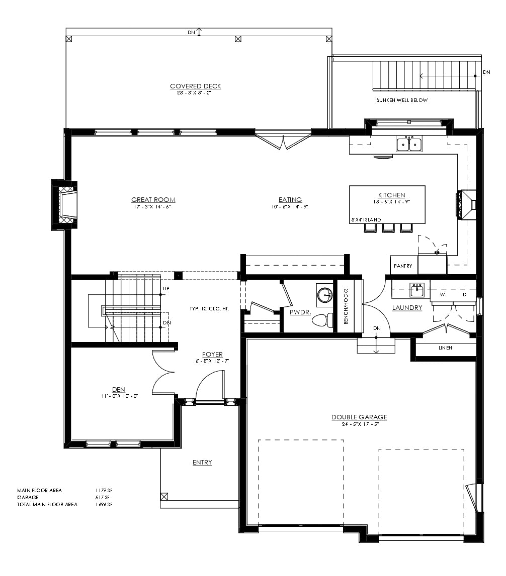
Farmhouse Plans with Walkout Basement

125 house plans

Our client image
Our client image
Our client image
Our client image
Our client image
Why Choose Archival Designs
Them
Cost to Build

Free

$30+
Shipping
Free
on physical blueprints
$20+
Price Guarantee
Only Price Match
Purchase

Direct


from the Architect
Middleman
Search by Plan Name