Welcome back! We activated a special $50 coupon for you valid for 24 hours
Get

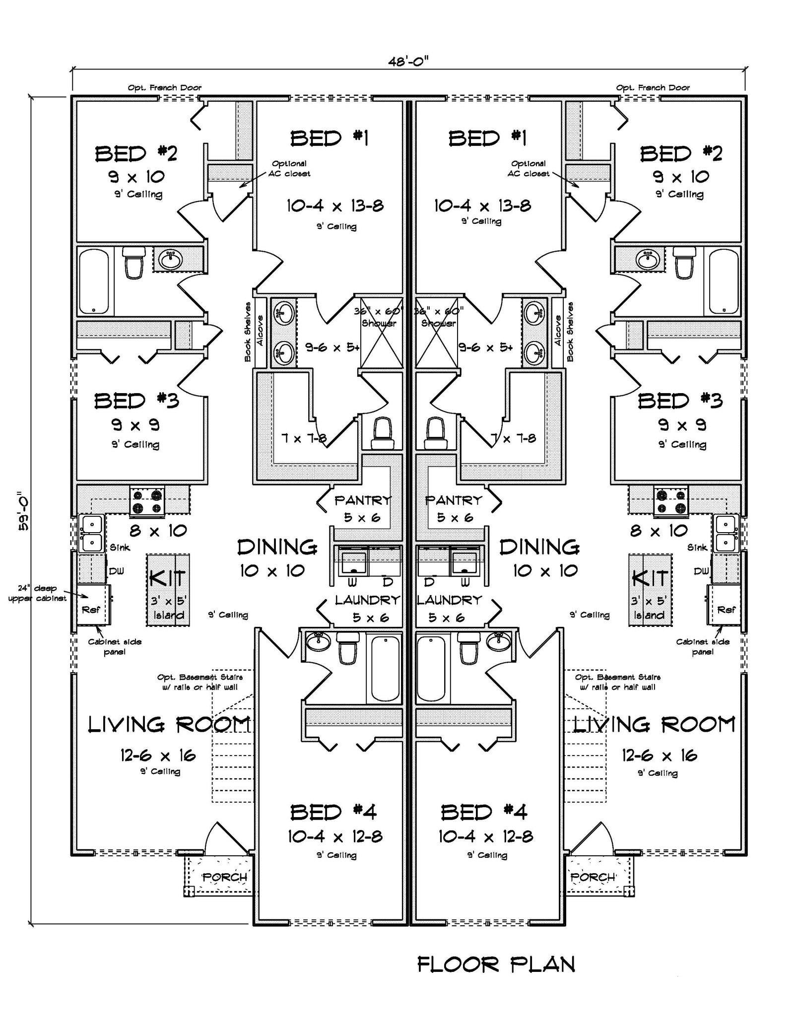
Duplex House Plans

Duplex house plans are extremely versatile. They can incorporate almost any style, from Mediterranean to Traditional to  Modern. With open floor plans and designed to take advantage of available views, this collection of duplexes is sure to please. Archival Designs offers you the option to modify house plans, letting your ideas influence one of our many beautiful house plans to create the home of your dreams. Looking for more space? Explore our two-story house plans and floor plans, perfect for larger families or those seeking a more spacious layout.

Features of Duplex House Plans

A duplex is a single building divided into two separate living units, each with its own entrance and amenities. Here are some common features of duplex floor plans:

Two independent living units

Each unit is a separate home with its own entrance and living areas. 

Separate entry

Each house has its own separate entry, its own kitchen, bathroom and living space.

Common walls

Units share one or more common walls which helps save on construction costs.

Outdoor spaces

Some designs incorporate shared or individual spaces such as garages or patios.

Mirror image

Side-by-side duplexes are often mirror image units. However, there can be house designs for duplexes with unique floor plans that wrap around each other to create different layouts. 

Types of duplex house plans

One-up, One-down duplexes

Stacked duplexes or one-up, one-down duplexes comprise two dwelling units arranged on top of one another each with an entry from the street. This type of duplex has the appearance of a small-to-medium single-unit house. 

Side-by-Side duplexes

In this type of duplex building plan, units are adjacent to each other and share a common wall, providing more privacy and individual outdoor spaces.

Cottage duplex plan

cottage home duplex plan blends the design elements of a cottage with the functionality of a duplex. 

Luxury duplexes

Luxury houses like duplexes feature high-end designs with state-of-the-art amenities, larger spaces, and upscale finishes. 

Ranch style duplexes

These types of duplex design plans feature a ranch-style look with each home in the unit having separate bedrooms, full baths, and open layouts. Separate entrances are on the opposite sides of the building for privacy. 

Benefits of Duplex Floor Plans

Cost efficiency

The cost of building a duplex is often lower than that of a single family home. This makes the duplex an ideal choice if you are a first time homeowner or building your equity.

House hacking

Many homeowners occupy one unit and rent out the other to generate income and offset the mortgage expenses. 

Multigenerational living

Duplexes often provide close and independent  living quarters for extended family members or parents promoting togetherness while maintaining space.

Flexibility

Homeowners can always convert the duplex into a single family home when the need arises.

AirBnB Potential

If your duplex is near a vacation spot or a tourist location, you could convert one unit into an Airbnb rental. This allows you to charge premium rates and earn additional income.

Investment Potential

The property value of duplexes finds appreciation because of the rental income potential, making them a sound investment option.

 

74 house plans

FAQ

What is a duplex house plan?

A duplex house plan features a single building comprising two individual living units, each with its own entrance and amenities.

What are the advantages of duplex home plans?

The advantages of duplex home plans include the potential for rental income, cost-sharing, multi-generational living, and flexibility.

Are duplexes a good investment?

Duplexes are a good investment due to rental income potential and future appreciation in costs

What are some factors to consider when choosing a duplex blueprint?

Factors like your lifestyle, lot size and shape, budget, number of bedrooms/bathrooms and amenities like garage, patio and other features can help you decide the right duplex home plan.

Our client image
Our client image
Our client image
Our client image
Our client image
Why Choose Archival Designs
Them
Cost to Build

Free

$30+
Shipping
Free
on physical blueprints
$20+
Price Guarantee
Only Price Match
Purchase

Direct


from the Architect
Middleman
Search by Plan Name