


The Laurel craftsman house plan offers a charming ranch floor plan with outstanding curb appeal and can be the first or last home you will ever build. The wide-open floor plan is a home buyer's answer when looking for smaller square footage with plenty of room to grow.
You will enter through a covered porch with large, decorative stately pillars. Your guests will be greeted by a full open view of vaulted wood ceilings, from the entryway with a clear view into the back of the Home. All of the beams are exposed. Warmth seeps around you.
Once inside the beckoning Foyer, the Craftsman Style Ranch Home takes on a unique twist. Ahead you will find the Gallery, which draws you to the right. You step into the extensively large Designer Kitchen, which:
Boasts a commanding multi-purpose free-standing island
A. abundance of floating cabinets coming from the ceiling
A wide view of the front of your landscaped property
Directly across from the immense Kitchen, are the Great Room and the Casual Dining area opening up to draw family and guest near. This Craftsman Ranch Home Style is especially laid out for family entertaining. Each of the rooms mentioned has access to a covered Porch & a Grilling Terrace with the option of a calming Firepit.
There is a strategically placed butler's pantry, for ease in serving your guests.
Making our way on around the Laurel House Plan, we find a jumbo all-inclusive Laundry Room adjacent to the Mud Room. Each need of the family has been addressed:
Large Sink
Folding Table
Entrance from Garage
Family Lockers
From here we find some of the exclusive jewels to this Craftsman Ranch Home, such as….
A specific Porch for Backdoor Friends
A large yard storage area adjacent to the Garage
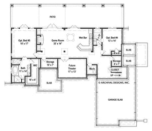
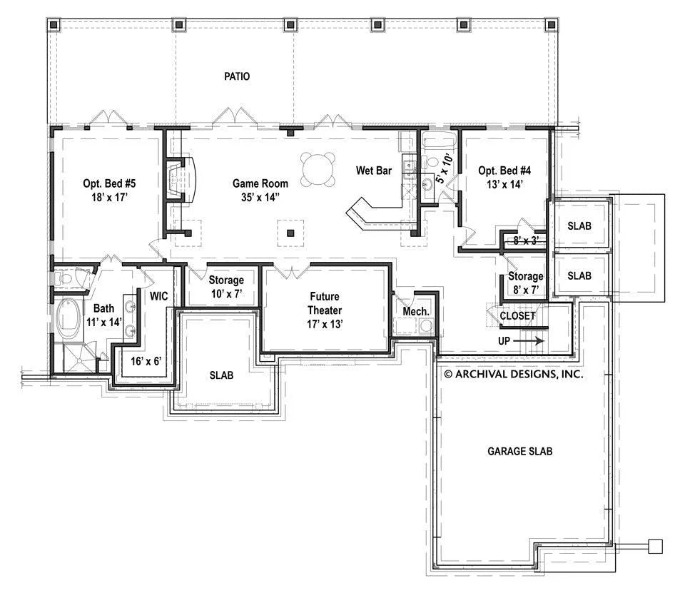
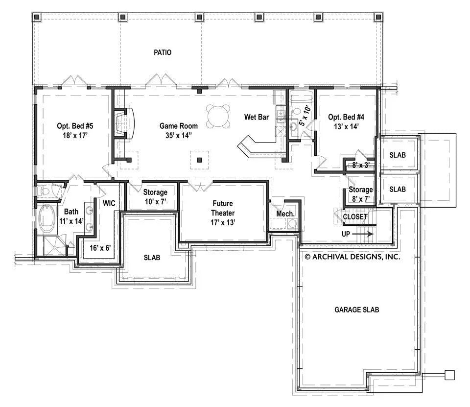
One can see the two additional Bedrooms, which would be perfect for children, in-laws, and guests. Most rooms have access to all of the outdoor views and activities that could take place on the Grilling Terrace.
The Craftsman Ranch leads us around to the left of the home where situated for privacy the elegant Master Bedroom comes into sight. This luxurious Master Suite has elegant trey ceilings. It gives personal access to the adjacent Patio. The En-Suite is full of grandeur:
Modern one-of-a-kind Shower
Oversized Soaking Tub
His & Her Vanities
Floor to ceiling built-in Cabinets
Long walls within the closet providing space for exercise or a packing island
The last treat in this lovely Craftsman Ranch Home is the option for a Future Apartment for in-laws, teenagers, or boomerang children. However, left unfinished it is an excellent area for storage.





PDF (Single Build)
A complete set of working drawings delivered in digital PDF format. This option comes with a license to build ONE home and includes a copyright release for printing unlimited sets of plans and making modifications.
CAD + PDF (Single Build)
A complete set of working drawings delivered in digital DWG and PDF formats. AutoCAD files are used by design professionals to make significant modifications or engineering calculations to the plan. This option comes with a license to build ONE home and includes a copyright release for printing unlimited sets of plans and making modifications.
5 or 8 Prints (Single Build)
Five or eight printed sets of working drawings shipped to you. This option comes with a license to build ONE home.
5 Prints + PDF (Single Build)
Five printed sets of working drawings shipped to you, plus a digital version in PDF format. This option comes with a license to build ONE home and includes a copyright release for printing unlimited sets of plans and making modifications.
PDF (Multi Build)
A complete set of working drawings delivered in digital PDF format. This option comes with a license to build an UNLIMITED number of homes and includes a copyright release for printing unlimited sets of plans and making modifications. This option may not be available for all house plans, or may require a specific format to be purchased. Please call 770-831-6363 for more information.
CAD + PDF (Multi Build)
A complete set of working drawings delivered in digital DWG and PDF formats. AutoCAD files are used by design professionals to make significant modifications or engineering calculations to the plan. This option comes with a license to build an UNLIMITED number of homes and includes a copyright release for printing unlimited sets of plans and making modifications. This option may not be available for all house plans, or may require a specific format to be purchased. Please call 770-831-6363 for more information.
Choose a building foundation for your home. The foundation provides stability to a home's structure from the ground up.
Slab - This concrete foundation is reinforced with steel rods and suitable for flat ground.
Crawl Space - This foundation is raised off the ground with low walls resting on footings, providing space for wiring, plumbing, and storage.
Basement - This foundation is entirely or partially below ground and offers storage or living areas.
Walkout Basement - This foundation is typically suited for rear-sloping lots and provides storage or living areas. Walkout basements have doors that provide access to the outside.




The construction drawings will include detailed, dimensioned floor plans, exterior elevations, roof plan, foundation plan, basic electrical layout, cross-section(s), foundation plan, and other general specifications. Some plans will include interior cabinet layouts.
View Sample Plan
Archival Designs brings you over 40 years of experience in the house plan design business. We offer the best value for your money by offering the highest quality home designs.
We offer a 10% military & first responder discount, as well as builder discounts for life! Archival Designs guarantees the lowest prices anywhere online. Learn more about our Best Price Guarantee.
All house plans sold by Archival Designs have been designed to comply with the International Residential Code (IRC) and to the local codes in the area where the designer resides or where the house was built.
All house plans are designed to meet or exceed the national building standards required by the International Residential Code (IRC). Due to differences in climate and geography throughout North America, every city, local municipality and county has unique building codes and regulations that must be followed to obtain a building permit. Prior to purchasing a set of house plans, we recommend that you meet with your local building officials in order to determine the building requirements for your area. It is the responsibility of the purchaser(s) and/or builder to ensure that the structure is constructed to meet the codes of their local area.
Important Note:
House plans do not come stamped or signed by an architect or engineer. Additionally, house plans typically will not include structural engineering notes/calculations. Please check with your local building officials to determine if a stamp is required. If required, the building department will only accept a stamp from a licensed professional in the state where the home will be built.
Depending on your city, county, and state building requirements, house plans may need to be reviewed by a local licensed architect or engineer for structural details and code standards before construction begins. This is particularly true in coastal areas and those facing seismic events, extreme winds, and heavy snow. If you are building in any of these areas, a licensed structural engineer will likely be needed to provide the necessary calculations and additional drawings. We authorize the use of our plans conditioned on your obligation and agreement to strictly comply with all local building codes, ordinances, regulations, and requirements, including permits and inspections at the time of and during construction. We recommend checking with your local building department for the most current requirements. The purchaser(s) and/or builder are responsible for additional expenses incurred through meeting municipality requirements or other requirements for construction.
Our foundation plans have been designed for universal conditions and may need to be adjusted to fit your specific site conditions. The foundation should be modified by a local structural engineer to comply with soil testing laboratory findings and local building requirements.
Our house plans will include schematic electrical drawings; however, circuiting or wire sizing will not be included. Your electrical subcontractor will typically provide these drawings.
HVAC and plumbing drawings are not included. Your mechanical and plumbing subcontractors will determine the best layout for your site. Local HVAC codes, climatic requirements and commonly used systems vary throughout the country. The direction of how water flow will enter the home vary from case to case. For this reason, it is impossible to provide universal plans.

The Laurel craftsman house plan offers a charming ranch floor plan with outstanding curb appeal and can be the first or last home you will ever build. The wide-open floor plan is a home buyer's answer when looking for smaller square footage with plenty of room to grow.
You will enter through a covered porch with large, decorative stately pillars. Your guests will be greeted by a full open view of vaulted wood ceilings, from the entryway with a clear view into the back of the Home. All of the beams are exposed. Warmth seeps around you.
Once inside the beckoning Foyer, the Craftsman Style Ranch Home takes on a unique twist. Ahead you will find the Gallery, which draws you to the right. You step into the extensively large Designer Kitchen, which:
Boasts a commanding multi-purpose free-standing island
A. abundance of floating cabinets coming from the ceiling
A wide view of the front of your landscaped property
Directly across from the immense Kitchen, are the Great Room and the Casual Dining area opening up to draw family and guest near. This Craftsman Ranch Home Style is especially laid out for family entertaining. Each of the rooms mentioned has access to a covered Porch & a Grilling Terrace with the option of a calming Firepit.
There is a strategically placed butler's pantry, for ease in serving your guests.
Making our way on around the Laurel House Plan, we find a jumbo all-inclusive Laundry Room adjacent to the Mud Room. Each need of the family has been addressed:
Large Sink
Folding Table
Entrance from Garage
Family Lockers
From here we find some of the exclusive jewels to this Craftsman Ranch Home, such as….
A specific Porch for Backdoor Friends
A large yard storage area adjacent to the Garage
One can see the two additional Bedrooms, which would be perfect for children, in-laws, and guests. Most rooms have access to all of the outdoor views and activities that could take place on the Grilling Terrace.
The Craftsman Ranch leads us around to the left of the home where situated for privacy the elegant Master Bedroom comes into sight. This luxurious Master Suite has elegant trey ceilings. It gives personal access to the adjacent Patio. The En-Suite is full of grandeur:
Modern one-of-a-kind Shower
Oversized Soaking Tub
His & Her Vanities
Floor to ceiling built-in Cabinets
Long walls within the closet providing space for exercise or a packing island
The last treat in this lovely Craftsman Ranch Home is the option for a Future Apartment for in-laws, teenagers, or boomerang children. However, left unfinished it is an excellent area for storage.


