Welcome back! We activated a special $50 coupon for you valid for 24 hours
Get

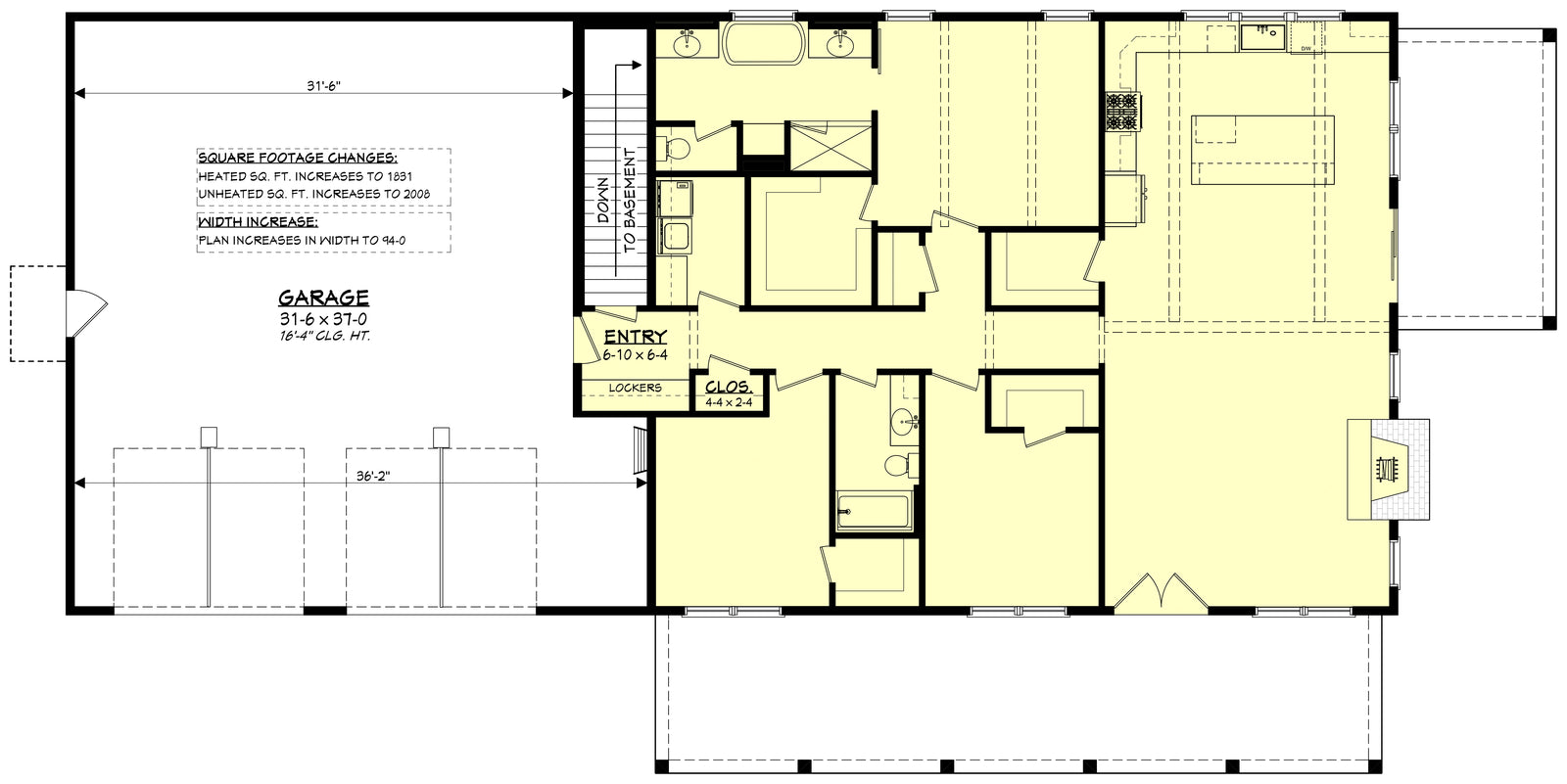
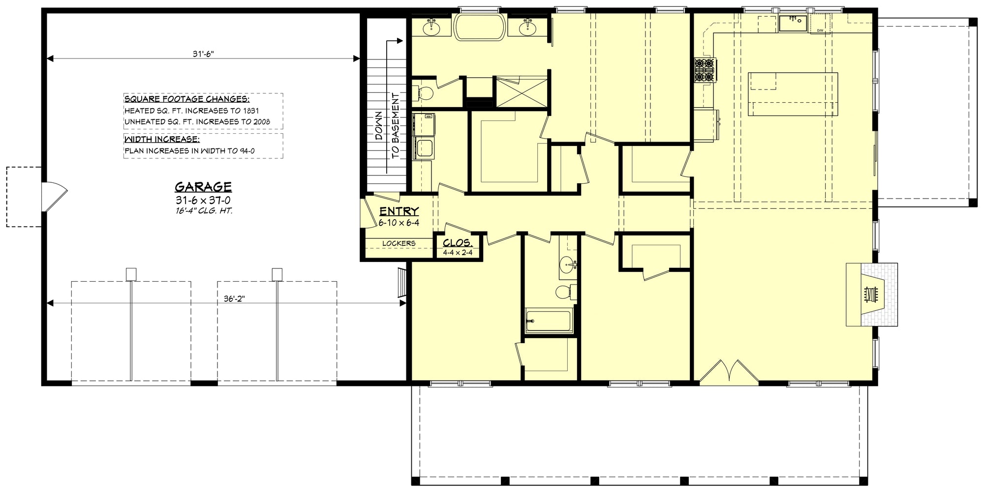
Single Slope Barndominium Plans

Check out more stunning designs and layouts in our collection of barndominium home plans.

8 house plans

Our client image
Our client image
Our client image
Our client image
Our client image
Why Choose Archival Designs
Them
Cost to Build

Free

$30+
Shipping
Free
on physical blueprints
$20+
Price Guarantee
Only Price Match
Purchase

Direct


from the Architect
Middleman
Search by Plan Name