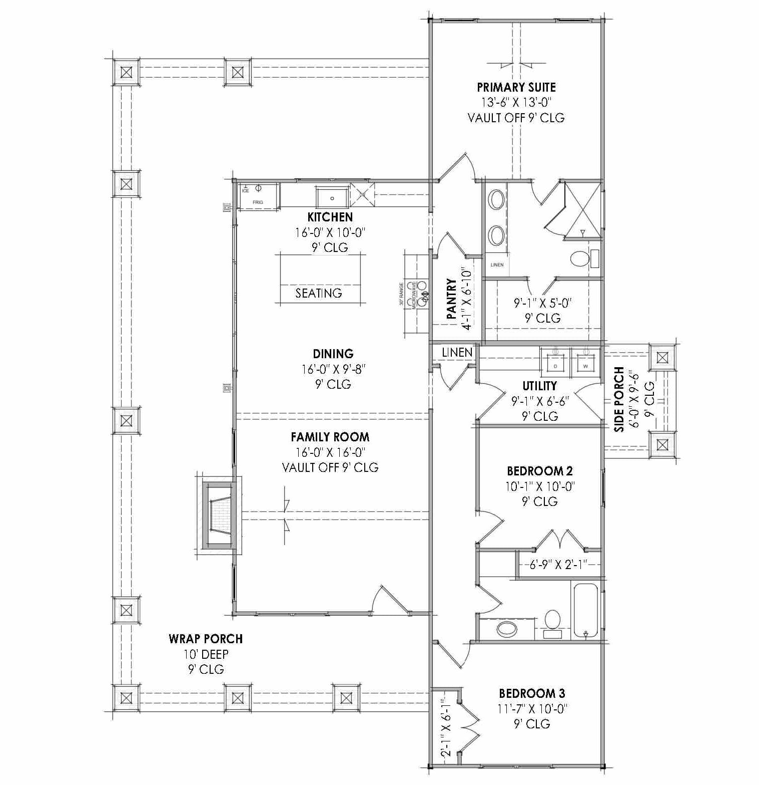
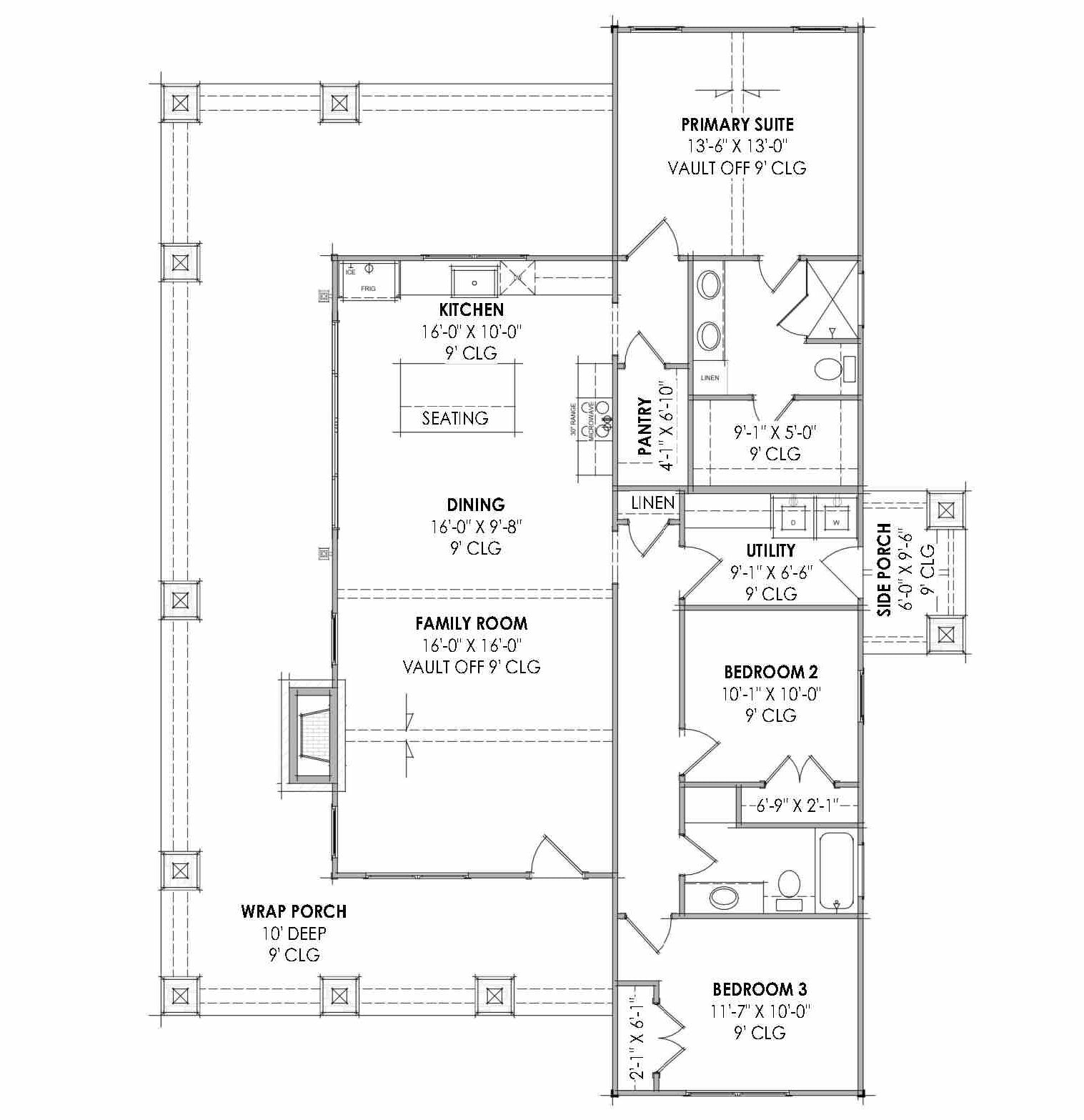
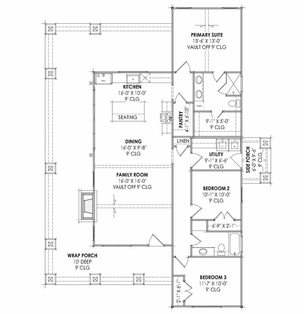
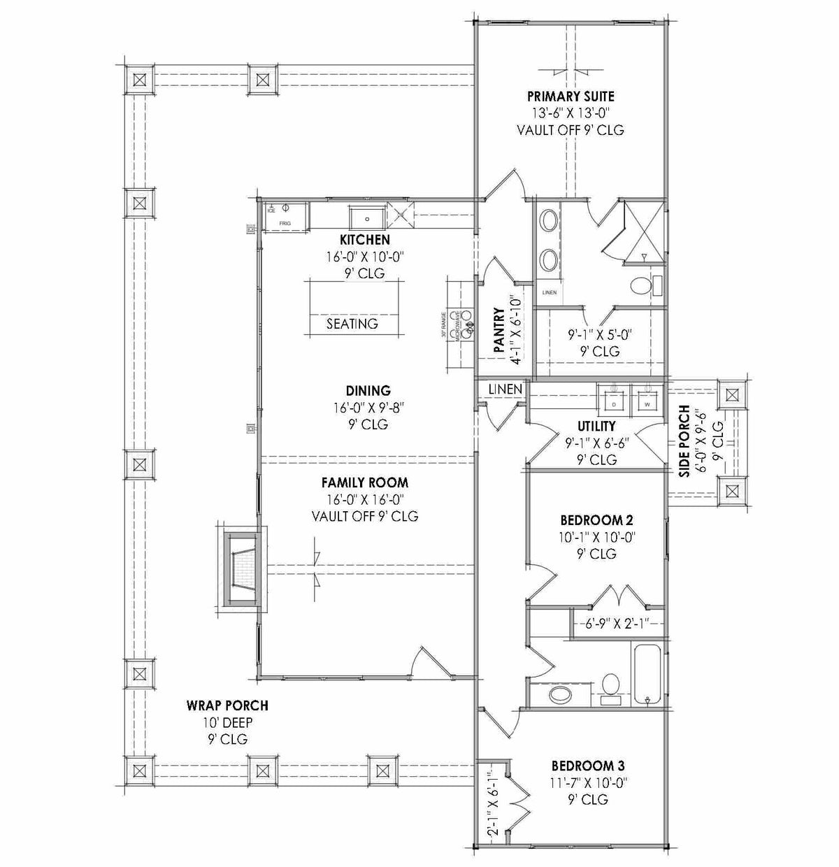
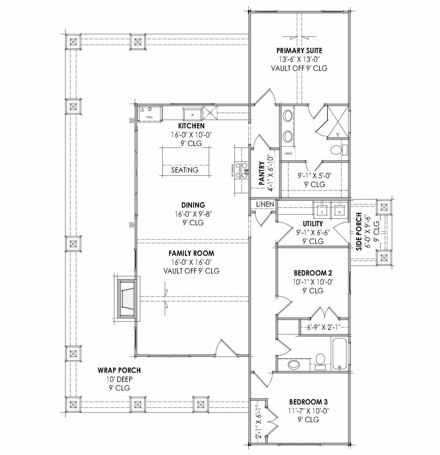
Designed to embody warmth, simplicity, and timeless comfort, this 1,512 square foot country house plan delivers an inviting blend of classic rural charm and efficient modern living. Thoughtfully scaled and beautifully proportioned, the home offers three bedrooms and two full bathrooms within a well-organized single-story layout that emphasizes livability, connection to the outdoors, and enduring appeal. With its expansive porches, vaulted interior spaces, and open-concept flow, this plan is ideal for homeowners seeking a relaxed lifestyle without sacrificing architectural character.
From the moment you approach the home, the wraparound front porch sets the tone. Stretching generously across the façade and continuing along the side, this porch becomes an outdoor living space in its own right—perfect for rocking chairs, morning coffee, or evening conversations as the sun sets. The porch roof and classic proportions reinforce the home’s country roots while creating a welcoming transition from outdoors to in. Built on a slab foundation and framed with efficient 2x4 construction, the design balances traditional aesthetics with practical building methods.
Inside, the home opens into a bright and airy living environment anchored by an open floor plan that seamlessly connects the keeping/family room, dining area, and kitchen. Vaulted and volume ceilings enhance the sense of space, allowing natural light to move freely throughout the interior and creating a feeling far larger than the home’s footprint suggests. A centrally located fireplace provides a visual focal point and adds warmth and ambiance, making the living area equally suited for quiet evenings or lively gatherings.
The kitchen is designed for both daily function and casual entertaining. A well-positioned eating bar and walk-in pantry provide convenience and storage, while the open connection to the breakfast area keeps the cook engaged with family and guests. Whether hosting weekend brunch or preparing a weeknight meal, the layout supports ease of movement and effortless interaction. Adjacent dining and living spaces allow flexibility in furniture placement and lifestyle needs.
Privacy is carefully considered throughout the plan. The first-floor master suite serves as a peaceful retreat, complete with a private sitting area that adds a touch of luxury and versatility. The en-suite bath features a double vanity, walk-in closet, and private bath arrangement that feels both spacious and serene. Two additional bedrooms are positioned to offer comfort for family members or guests, sharing a well-appointed full bath that maintains the home’s cohesive design language.
Everyday practicality is woven into the plan through features like a dedicated first-floor laundry room and a centrally located utility space that keeps household tasks organized and efficient. These details ensure the home functions as beautifully as it looks, supporting long-term comfort and ease of living.
This country house plan is especially well suited for rural or semi-rural settings, where the wraparound porch and open interior layout can fully engage with surrounding landscapes. Whether overlooking open fields, wooded property, or a quiet neighborhood, the home’s design encourages indoor-outdoor living and a slower, more intentional pace of life.
Perfect for families, empty nesters, or those building a forever home, this design solves the challenge of downsizing without sacrificing comfort or style. It offers the charm of traditional country architecture paired with modern spatial planning, making it a timeless choice for homeowners who value authenticity, warmth, and livable design.







