I7391-A



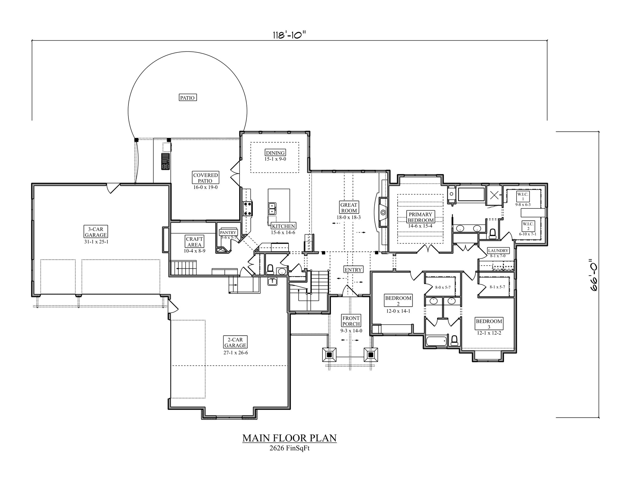
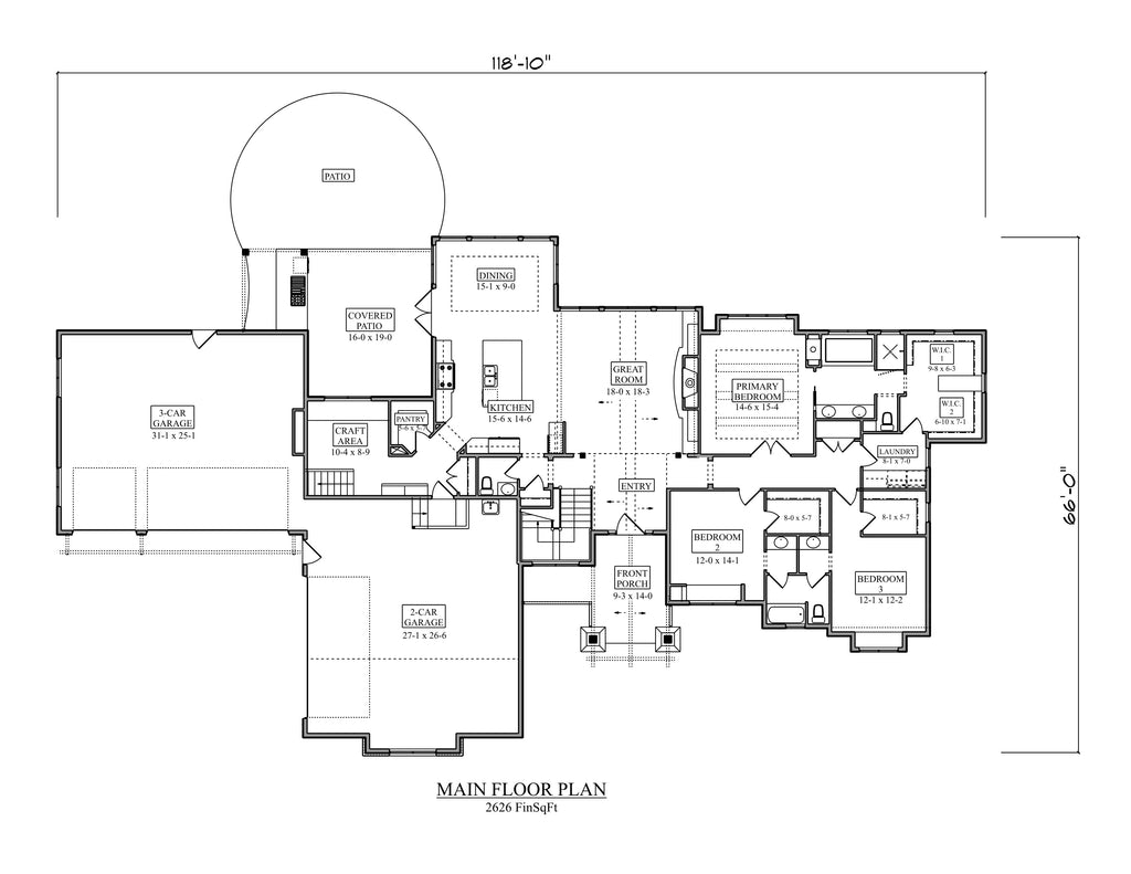
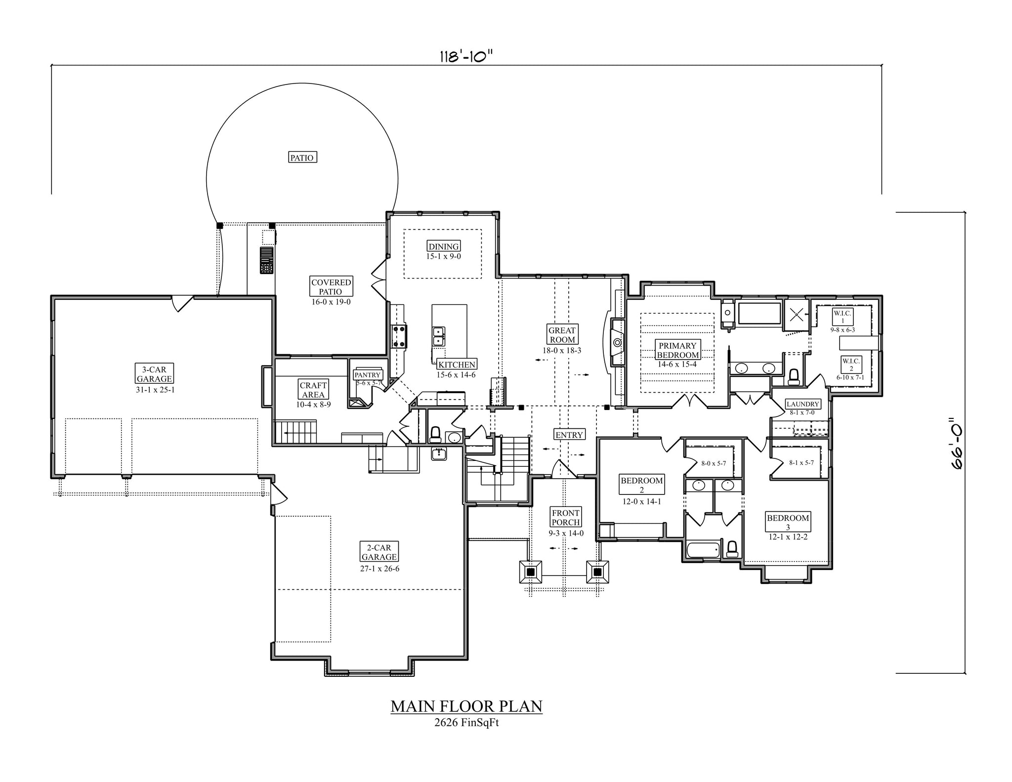
This 3,143 sq. ft. luxury ranch home with a walkout basement, second-floor bonus suite, and a five-car side-and-front-load garage blends refined architectural detailing with exceptional livability. Spanning 118'10" wide, the exterior’s smooth 7:12 roof pitch, broad covered front porch, and balanced window placement create a commanding first impression. Inside, the home unfolds into a stunning open floor plan anchored by a sun-filled great room with a centrally placed fireplace and generous glazing that captures sweeping outdoor views. Ten-foot ceilings and uninterrupted sightlines give the main living areas a sense of volume and sophistication, while still offering the warmth expected from a high-end ranch design. The gourmet kitchen features a large island, eating bar, and a spacious walk-in pantry, positioned perfectly between the formal dining room and the breakfast area for seamless circulation. Expansive rear porches and patios—totaling 1,167 sq. ft.—extend the living experience outdoors, aligning naturally with keywords such as luxury ranch home with walkout basement, open-concept ranch floor plan with gourmet kitchen, and single-story home with covered porches and bonus room.
The first floor’s 2,626 sq. ft. is thoughtfully crafted to deliver elegant, accessible living. The foyer opens directly into the two-story great room, establishing a sense of grandeur while revealing the home’s flowing layout. To one side, the formal dining room sits within easy reach of both the kitchen and great room, making it ideal for holidays and sophisticated gatherings. The keeping/family room offers a cozy secondary retreat for casual evenings, while the adjacent breakfast area captures morning light beautifully.
The first-floor master suite is a private sanctuary, featuring a serene sitting area, an indulgent double-vanity bath, and a large walk-in closet designed for luxury wardrobes. A key convenience is direct laundry access from the master suite, elevating daily comfort. Across the main level, two additional bedrooms share an intelligently designed Jack and Jill bathroom, creating a quiet wing perfect for children, guests, or multigenerational living. A stylish powder room, home office/study, and functional mud room complete the main level with grace and purpose. The front-load garage entrance leads directly into the laundry and mudroom area, ensuring clean, efficient movement through the home.
Above, a 517 sq. ft. bonus room extends the home’s versatility—ideal as a media lounge, private studio, playroom, or guest retreat. This flexible upper-level space enhances the home’s appeal for those seeking adaptable square footage that evolves with lifestyle needs.
Below, the 1,664 sq. ft. walkout basement with 9-foot ceilings is a standout feature. Bright with natural light and direct outdoor access, it offers extraordinary potential for future expansion. Whether transformed into a home theater, gym, recreation suite, additional bedrooms, or a luxury entertainment zone, the basement’s proportions are ready for imaginative customization. Significant unfinished storage space ensures practicality without compromising design freedom.
The 1,691 sq. ft. five-car garage sets this home apart, catering to collectors, hobbyists, active families, or anyone who needs exceptional equipment and vehicle capacity. Altogether, this home delivers the perfect combination of architectural beauty, functional design, and long-term flexibility—an ideal choice for those seeking a luxury walkout ranch with first-floor master living, a bonus suite, and expansive indoor-outdoor gathering spaces.





PDF (Single Build)
A complete set of working drawings delivered in digital PDF format. This option comes with a license to build ONE home and includes a copyright release for printing unlimited sets of plans and making modifications.
CAD + PDF (Single Build)
A complete set of working drawings delivered in digital DWG and PDF formats. AutoCAD files are used by design professionals to make significant modifications or engineering calculations to the plan. This option comes with a license to build ONE home and includes a copyright release for printing unlimited sets of plans and making modifications.
5 or 8 Prints (Single Build)
Five or eight printed sets of working drawings shipped to you. This option comes with a license to build ONE home.
5 Prints + PDF (Single Build)
Five printed sets of working drawings shipped to you, plus a digital version in PDF format. This option comes with a license to build ONE home and includes a copyright release for printing unlimited sets of plans and making modifications.
PDF (Multi Build)
A complete set of working drawings delivered in digital PDF format. This option comes with a license to build an UNLIMITED number of homes and includes a copyright release for printing unlimited sets of plans and making modifications. This option may not be available for all house plans, or may require a specific format to be purchased. Please call 770-831-6363 for more information.
CAD + PDF (Multi Build)
A complete set of working drawings delivered in digital DWG and PDF formats. AutoCAD files are used by design professionals to make significant modifications or engineering calculations to the plan. This option comes with a license to build an UNLIMITED number of homes and includes a copyright release for printing unlimited sets of plans and making modifications. This option may not be available for all house plans, or may require a specific format to be purchased. Please call 770-831-6363 for more information.
Choose a building foundation for your home. The foundation provides stability to a home's structure from the ground up.
Slab - This concrete foundation is reinforced with steel rods and suitable for flat ground.
Crawl Space - This foundation is raised off the ground with low walls resting on footings, providing space for wiring, plumbing, and storage.
Basement - This foundation is entirely or partially below ground and offers storage or living areas.
Walkout Basement - This foundation is typically suited for rear-sloping lots and provides storage or living areas. Walkout basements have doors that provide access to the outside.




The construction drawings will include detailed, dimensioned floor plans, exterior elevations, roof plan, foundation plan, basic electrical layout, cross-section(s), foundation plan, and other general specifications. Some plans will include interior cabinet layouts.
View Sample Plan
Archival Designs brings you over 40 years of experience in the house plan design business. We offer the best value for your money by offering the highest quality home designs.
We offer a 10% military & first responder discount, as well as builder discounts for life! Archival Designs guarantees the lowest prices anywhere online. Learn more about our Best Price Guarantee.
All house plans sold by Archival Designs have been designed to comply with the International Residential Code (IRC) and to the local codes in the area where the designer resides or where the house was built.
All house plans are designed to meet or exceed the national building standards required by the International Residential Code (IRC). Due to differences in climate and geography throughout North America, every city, local municipality and county has unique building codes and regulations that must be followed to obtain a building permit. Prior to purchasing a set of house plans, we recommend that you meet with your local building officials in order to determine the building requirements for your area. It is the responsibility of the purchaser(s) and/or builder to ensure that the structure is constructed to meet the codes of their local area.
Important Note:
House plans do not come stamped or signed by an architect or engineer. Additionally, house plans typically will not include structural engineering notes/calculations. Please check with your local building officials to determine if a stamp is required. If required, the building department will only accept a stamp from a licensed professional in the state where the home will be built.
Depending on your city, county, and state building requirements, house plans may need to be reviewed by a local licensed architect or engineer for structural details and code standards before construction begins. This is particularly true in coastal areas and those facing seismic events, extreme winds, and heavy snow. If you are building in any of these areas, a licensed structural engineer will likely be needed to provide the necessary calculations and additional drawings. We authorize the use of our plans conditioned on your obligation and agreement to strictly comply with all local building codes, ordinances, regulations, and requirements, including permits and inspections at the time of and during construction. We recommend checking with your local building department for the most current requirements. The purchaser(s) and/or builder are responsible for additional expenses incurred through meeting municipality requirements or other requirements for construction.
Our foundation plans have been designed for universal conditions and may need to be adjusted to fit your specific site conditions. The foundation should be modified by a local structural engineer to comply with soil testing laboratory findings and local building requirements.
Our house plans will include schematic electrical drawings; however, circuiting or wire sizing will not be included. Your electrical subcontractor will typically provide these drawings.
HVAC and plumbing drawings are not included. Your mechanical and plumbing subcontractors will determine the best layout for your site. Local HVAC codes, climatic requirements and commonly used systems vary throughout the country. The direction of how water flow will enter the home vary from case to case. For this reason, it is impossible to provide universal plans.

This 3,143 sq. ft. luxury ranch home with a walkout basement, second-floor bonus suite, and a five-car side-and-front-load garage blends refined architectural detailing with exceptional livability. Spanning 118'10" wide, the exterior’s smooth 7:12 roof pitch, broad covered front porch, and balanced window placement create a commanding first impression. Inside, the home unfolds into a stunning open floor plan anchored by a sun-filled great room with a centrally placed fireplace and generous glazing that captures sweeping outdoor views. Ten-foot ceilings and uninterrupted sightlines give the main living areas a sense of volume and sophistication, while still offering the warmth expected from a high-end ranch design. The gourmet kitchen features a large island, eating bar, and a spacious walk-in pantry, positioned perfectly between the formal dining room and the breakfast area for seamless circulation. Expansive rear porches and patios—totaling 1,167 sq. ft.—extend the living experience outdoors, aligning naturally with keywords such as luxury ranch home with walkout basement, open-concept ranch floor plan with gourmet kitchen, and single-story home with covered porches and bonus room.
The first floor’s 2,626 sq. ft. is thoughtfully crafted to deliver elegant, accessible living. The foyer opens directly into the two-story great room, establishing a sense of grandeur while revealing the home’s flowing layout. To one side, the formal dining room sits within easy reach of both the kitchen and great room, making it ideal for holidays and sophisticated gatherings. The keeping/family room offers a cozy secondary retreat for casual evenings, while the adjacent breakfast area captures morning light beautifully.
The first-floor master suite is a private sanctuary, featuring a serene sitting area, an indulgent double-vanity bath, and a large walk-in closet designed for luxury wardrobes. A key convenience is direct laundry access from the master suite, elevating daily comfort. Across the main level, two additional bedrooms share an intelligently designed Jack and Jill bathroom, creating a quiet wing perfect for children, guests, or multigenerational living. A stylish powder room, home office/study, and functional mud room complete the main level with grace and purpose. The front-load garage entrance leads directly into the laundry and mudroom area, ensuring clean, efficient movement through the home.
Above, a 517 sq. ft. bonus room extends the home’s versatility—ideal as a media lounge, private studio, playroom, or guest retreat. This flexible upper-level space enhances the home’s appeal for those seeking adaptable square footage that evolves with lifestyle needs.
Below, the 1,664 sq. ft. walkout basement with 9-foot ceilings is a standout feature. Bright with natural light and direct outdoor access, it offers extraordinary potential for future expansion. Whether transformed into a home theater, gym, recreation suite, additional bedrooms, or a luxury entertainment zone, the basement’s proportions are ready for imaginative customization. Significant unfinished storage space ensures practicality without compromising design freedom.
The 1,691 sq. ft. five-car garage sets this home apart, catering to collectors, hobbyists, active families, or anyone who needs exceptional equipment and vehicle capacity. Altogether, this home delivers the perfect combination of architectural beauty, functional design, and long-term flexibility—an ideal choice for those seeking a luxury walkout ranch with first-floor master living, a bonus suite, and expansive indoor-outdoor gathering spaces.


