I7390-A


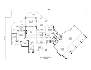
This 2,729 sq. ft. elegant ranch home with a four-car front-load garage, generous porches, and a clean, practical layout brings approachable comfort to a wide footprint. Spanning 141'11", the exterior features simple 9:12 and 4:12 rooflines, a welcoming covered front porch, and a straightforward architectural style that feels warm and familiar rather than ornate. Inside, the floor plan opens into a bright great room centered around a practical fireplaceβperfect for daily use without feeling overly formal. Ten-foot ceilings add breathing room to the main living spaces, while the open flow between the great room, keeping/family room, breakfast area, and kitchen keeps the home connected, comfortable, and easy to live in. The kitchen offers everyday functionality with a large island, ample countertop space, and a walk-in pantry sized for real households and real routines. Whether cooking weeknight meals or gathering for casual weekends, the layout supports a relaxed, unpretentious lifestyle. Covered porches at the front and back create natural transitions between indoor and outdoor living, offering shade, space for small gatherings, and everyday enjoyment.
The first floorβs 2,729 sq. ft. is arranged to support convenience and simple circulation. The formal dining room sits close to the kitchen without feeling stiff or oversized, while the breakfast area handles daily meals with ease. The split-bedroom layout provides privacy without excess distance. The first-floor master suite includes a sitting area, double-vanity bathroom, and a practical walk-in closet. A key everyday convenience is the direct laundry access from the master, making chores easily manageable. Across the home, the second bedroom acts as a quiet guest space with its own nearby full bathβideal for visitors, aging parents, or older kids who prefer independence. A dedicated home office/study offers a place to work from home, handle paperwork, or simply enjoy a quieter corner of the house. The mud room, powder room, and laundry access from the garage help keep the home tidy and functional during busy routines.
Above the main level, the bonus room provides the perfect amount of flexible square footage. Instead of feeling like an oversized add-on, it offers just enough space to become a playroom, hobby area, movie room, or private retreatβuseful without being overwhelming or difficult to maintain.
The 1,490 sq. ft. of porch space is one of the homeβs most appealing features. These deep covered areas offer quiet places to relax, grill, or enjoy evenings outdoors. Theyβre large enough to be used comfortably yet simple enough to maintain. Meanwhile, the 1,877 sq. ft. four-car garage provides practical storage for vehicles, tools, lawn equipment, and hobbiesβideal for anyone who wants extra space without investing in a separate outbuilding.
Altogether, this home embraces the spirit of a true ranch design: single-level comfort, easy movement, relaxed living, and practical spaces that serve real-world needs. Itβs a warm, inviting plan designed for homeowners who want space to spread out without the formality or expense of a luxury buildβjust honest simplicity wrapped in a thoughtfully designed footprint.




PDF (Single Build)
A complete set of working drawings delivered in digital PDF format. This option comes with a license to build ONE home and includes a copyright release for printing unlimited sets of plans and making modifications.
CAD + PDF (Single Build)
A complete set of working drawings delivered in digital DWG and PDF formats. AutoCAD files are used by design professionals to make significant modifications or engineering calculations to the plan. This option comes with a license to build ONE home and includes a copyright release for printing unlimited sets of plans and making modifications.
5 or 8 Prints (Single Build)
Five or eight printed sets of working drawings shipped to you. This option comes with a license to buildΒ ONEΒ home.
5Β PrintsΒ + PDF (Single Build)
Five printed sets of working drawings shipped to you, plus a digital version in PDF format. This option comes with a license to build ONE home and includes a copyright release for printing unlimited sets of plans and making modifications.
PDF (Multi Build)
A complete set of working drawings delivered in digital PDF format. This option comes with a license to build an UNLIMITED number of homes and includes a copyright release for printing unlimited sets of plans and making modifications. This option may not be available for all house plans, or may require a specific format to be purchased. Please call 770-831-6363 for more information.
CAD + PDF (Multi Build)
A complete set of working drawings delivered in digital DWG and PDF formats. AutoCAD files are used by design professionals to make significant modifications or engineering calculations to the plan. This option comes with a license to build an UNLIMITED number ofΒ homes and includes a copyright release for printing unlimited sets of plans and making modifications.Β This option may not be available for all house plans, or may require a specific format to be purchased. Please call 770-831-6363 for more information.
Choose a building foundation for your home. The foundation provides stability to a home's structure from the ground up.
Slab - This concrete foundation is reinforced with steel rods and suitable for flat ground.
Crawl Space - This foundation is raised off the ground with low walls resting on footings, providing space for wiring, plumbing, and storage.
Basement - This foundation is entirely or partially below ground and offers storage or living areas.
Walkout Basement - This foundation is typically suited for rear-sloping lots and provides storage or living areas. Walkout basements have doors that provide access to the outside.




The construction drawings will include detailed, dimensioned floor plans, exterior elevations, roof plan, foundation plan, basic electrical layout, cross-section(s), foundation plan, and other general specifications. Some plans will include interior cabinet layouts.
Β
View Sample PlanArchival Designs brings you over 40 years of experience in the house plan design business.Β We offer the best value for your money by offering the highest quality home designs.
We offer a 10% military & first responder discount, as well as builder discounts for life!Β Archival Designs guarantees the lowest prices anywhere online.Β Learn more about our Best Price Guarantee.
All house plans sold by Archival Designs have been designed to comply with the International Residential Code (IRC) and to the local codes in the area where the designer resides or where the house was built.
Β
All house plans are designed to meet or exceed the national building standards required by the International Residential Code (IRC). Due to differences in climate and geography throughout North America, every city, local municipality and county has unique building codes and regulations that must be followed to obtain a building permit. Prior to purchasing a set of house plans, we recommend that you meet with your local building officials in order to determine the building requirements for your area.Β It is the responsibility of the purchaser(s) and/or builder to ensure that the structure is constructed to meet the codes of their local area.Β Β
Important Note:
Β
House plans do not come stamped or signed by an architect or engineer.Β Additionally, house plans typically will not includeΒ structural engineering notes/calculations. Please check with your local building officials to determine if a stamp is required. If required, the building department will only accept a stamp from a licensed professional in the state where the home will be built.
Depending on your city, county, and state building requirements, house plans may need to be reviewed by a local licensed architect or engineer for structural details and code standards before construction begins. This is particularly true in coastal areas and those facing seismic events, extreme winds, and heavy snow. If you are building in any of these areas, a licensed structural engineer will likely be needed to provide the necessary calculations and additional drawings. We authorize the use of our plans conditioned on your obligation and agreement to strictly comply with all local building codes, ordinances, regulations, and requirements, including permits and inspections at the time of and during construction. We recommend checking with your local building department for the most current requirements.Β The purchaser(s) and/or builder are responsible for additional expenses incurred through meeting municipality requirements or other requirements for construction.
Β
Our foundation plans have been designed for universal conditions and may need to be adjusted to fit your specific site conditions. The foundation should be modified by a local structural engineer to comply with soil testing laboratory findings and local building requirements.
Β Β
Our house plans will include schematic electrical drawings; however, circuiting or wire sizing will not be included.Β Your electrical subcontractor will typically provide these drawings.Β
HVAC and plumbing drawings are not included. Your mechanical and plumbing subcontractors will determine the best layout for your site. Β Local HVAC codes, climatic requirements and commonly used systems vary throughout the country.Β The direction of how water flow will enter the home vary from case to case. For this reason, it is impossible to provide universal plans.Β

This 2,729 sq. ft. elegant ranch home with a four-car front-load garage, generous porches, and a clean, practical layout brings approachable comfort to a wide footprint. Spanning 141'11", the exterior features simple 9:12 and 4:12 rooflines, a welcoming covered front porch, and a straightforward architectural style that feels warm and familiar rather than ornate. Inside, the floor plan opens into a bright great room centered around a practical fireplaceβperfect for daily use without feeling overly formal. Ten-foot ceilings add breathing room to the main living spaces, while the open flow between the great room, keeping/family room, breakfast area, and kitchen keeps the home connected, comfortable, and easy to live in. The kitchen offers everyday functionality with a large island, ample countertop space, and a walk-in pantry sized for real households and real routines. Whether cooking weeknight meals or gathering for casual weekends, the layout supports a relaxed, unpretentious lifestyle. Covered porches at the front and back create natural transitions between indoor and outdoor living, offering shade, space for small gatherings, and everyday enjoyment.
The first floorβs 2,729 sq. ft. is arranged to support convenience and simple circulation. The formal dining room sits close to the kitchen without feeling stiff or oversized, while the breakfast area handles daily meals with ease. The split-bedroom layout provides privacy without excess distance. The first-floor master suite includes a sitting area, double-vanity bathroom, and a practical walk-in closet. A key everyday convenience is the direct laundry access from the master, making chores easily manageable. Across the home, the second bedroom acts as a quiet guest space with its own nearby full bathβideal for visitors, aging parents, or older kids who prefer independence. A dedicated home office/study offers a place to work from home, handle paperwork, or simply enjoy a quieter corner of the house. The mud room, powder room, and laundry access from the garage help keep the home tidy and functional during busy routines.
Above the main level, the bonus room provides the perfect amount of flexible square footage. Instead of feeling like an oversized add-on, it offers just enough space to become a playroom, hobby area, movie room, or private retreatβuseful without being overwhelming or difficult to maintain.
The 1,490 sq. ft. of porch space is one of the homeβs most appealing features. These deep covered areas offer quiet places to relax, grill, or enjoy evenings outdoors. Theyβre large enough to be used comfortably yet simple enough to maintain. Meanwhile, the 1,877 sq. ft. four-car garage provides practical storage for vehicles, tools, lawn equipment, and hobbiesβideal for anyone who wants extra space without investing in a separate outbuilding.
Altogether, this home embraces the spirit of a true ranch design: single-level comfort, easy movement, relaxed living, and practical spaces that serve real-world needs. Itβs a warm, inviting plan designed for homeowners who want space to spread out without the formality or expense of a luxury buildβjust honest simplicity wrapped in a thoughtfully designed footprint.

