A7764-A
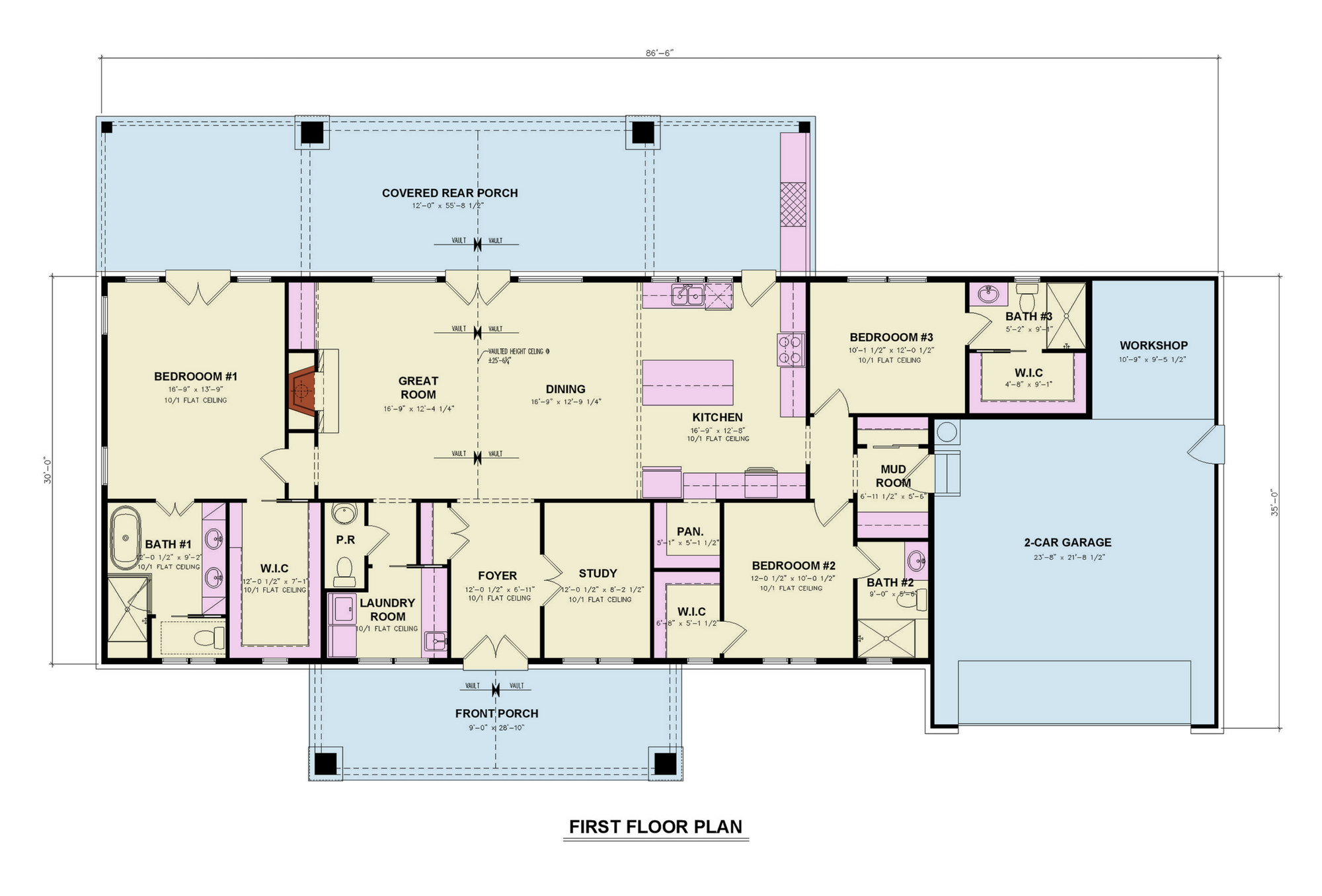
The Haystack V is a refined take on the modern farmhouse plan, blending timeless materials with dramatic interior volume and seamless indoor-outdoor living. Designed with 2,070 square feet of heated living space and an additional 1,588 square feet of covered and garage areas, this 3 bedroom, 3.5 bath farmhouse delivers architectural presence and everyday comfort in equal measure.
From the street, steep 12:12 rooflines and a balanced combination of brick and board-and-batten siding create a bold yet welcoming façade. The deep covered front porch (260 square feet) stretches across the entry, offering space for rocking chairs, lantern lighting, and quiet evenings. At just under 24 feet in height, the home’s strong vertical proportions enhance its curb appeal while maintaining a grounded, approachable character.
Step inside and the home immediately unfolds into an open floor plan anchored by a soaring 25-foot vaulted great room ceiling. Sunlight pours in, emphasizing the dramatic volume overhead while maintaining warmth through the farmhouse detailing. This modern farmhouse with vaulted great room feels expansive without sacrificing intimacy.
The entire first floor features 10-foot ceilings, adding to the sense of openness and architectural refinement. The great room flows seamlessly into the kitchen and dining areas, creating a true gathering space designed for entertaining, holidays, and everyday living.
The large kitchen is positioned to remain visually connected to the great room while maintaining its own defined workspace. Generous counter space, a substantial island, and abundant cabinetry make it ideal for serious cooking and casual entertaining alike. Whether hosting guests or managing busy mornings, this open-concept farmhouse design keeps everyone connected.
Nearby, the dining area enjoys easy access to the expansive 692-square-foot rear porch—transforming indoor meals into effortless indoor-outdoor experiences.
One of Haystack V’s most compelling features is its commitment to outdoor living. The rear covered porch spans nearly 700 square feet, providing ample room for dining, lounging, grilling, and even an outdoor fireplace if desired. This large outdoor space extends the home’s functional footprint and makes it ideal for homeowners who prioritize entertaining or peaceful backyard retreats.
Together with the covered front porch, the home offers over 950 square feet of covered exterior living under roof—perfect for all-season enjoyment.
Privacy is central to this layout. The primary bedroom suite is intentionally separated from the secondary bedrooms, creating a quiet sanctuary on the main floor. This split-bedroom farmhouse layout is ideal for families, empty nesters, or anyone who values personal retreat space.
The primary suite includes a spacious walk-in closet and a well-appointed en suite bath, creating a daily experience that feels both efficient and indulgent.
Each of the two additional bedrooms also features its own private bath, making this 3 bedroom farmhouse plan with en suite bathrooms exceptionally functional for guests or older children.
Haystack V is as practical as it is beautiful. The dedicated home office/study provides a quiet work-from-home solution without sacrificing bedroom space. A first-floor laundry room adds convenience, while thoughtful storage and 2x6 exterior wall framing enhance durability and energy performance.
The front-load two-car garage (636 square feet) integrates seamlessly into the façade while offering an 18' x 8' overhead door for easy access. Built on a slab foundation with stick roof framing, the structure is both straightforward to build and engineered for longevity.
This one-story modern farmhouse plan solves a common homeowner challenge: how to combine dramatic architectural features with efficient, single-level living. With all 2,070 heated square feet located on the main floor, there are no stairs to navigate—making it ideal for aging in place, families with young children, or homeowners simply seeking convenience.
Wide proportions (86'6" in width) give the home a commanding presence, while the 51'5" depth allows it to sit comfortably on a variety of lot types.
Haystack V is not simply a house plan—it is a carefully composed living experience. From its steep metal rooflines to its soaring interior vaults and expansive covered porches, it embodies the best elements of farmhouse architecture while delivering modern-day functionality.
Check out other variants of Haystack below:
Haystack I: https://archivaldesigns.com/products/haystack-house-plan
Haystack II: https://archivaldesigns.com/products/haystack-ii
Haystack IIII: https://archivaldesigns.com/products/haystack-iii
Haystack IV: https://archivaldesigns.com/products/haystack-iv-house-plan



PDF (Single Build)
A complete set of working drawings delivered in digital PDF format. This option comes with a license to build ONE home and includes a copyright release for printing unlimited sets of plans and making modifications.
CAD + PDF (Single Build)
A complete set of working drawings delivered in digital DWG and PDF formats. AutoCAD files are used by design professionals to make significant modifications or engineering calculations to the plan. This option comes with a license to build ONE home and includes a copyright release for printing unlimited sets of plans and making modifications.
5 or 8 Prints (Single Build)
Five or eight printed sets of working drawings shipped to you. This option comes with a license to build ONE home.
5 Prints + PDF (Single Build)
Five printed sets of working drawings shipped to you, plus a digital version in PDF format. This option comes with a license to build ONE home and includes a copyright release for printing unlimited sets of plans and making modifications.
PDF (Multi Build)
A complete set of working drawings delivered in digital PDF format. This option comes with a license to build an UNLIMITED number of homes and includes a copyright release for printing unlimited sets of plans and making modifications. This option may not be available for all house plans, or may require a specific format to be purchased. Please call 770-831-6363 for more information.
CAD + PDF (Multi Build)
A complete set of working drawings delivered in digital DWG and PDF formats. AutoCAD files are used by design professionals to make significant modifications or engineering calculations to the plan. This option comes with a license to build an UNLIMITED number of homes and includes a copyright release for printing unlimited sets of plans and making modifications. This option may not be available for all house plans, or may require a specific format to be purchased. Please call 770-831-6363 for more information.
Choose a building foundation for your home. The foundation provides stability to a home's structure from the ground up.
Slab - This concrete foundation is reinforced with steel rods and suitable for flat ground.
Crawl Space - This foundation is raised off the ground with low walls resting on footings, providing space for wiring, plumbing, and storage.
Basement - This foundation is entirely or partially below ground and offers storage or living areas.
Walkout Basement - This foundation is typically suited for rear-sloping lots and provides storage or living areas. Walkout basements have doors that provide access to the outside.




The construction drawings will include detailed, dimensioned floor plans, exterior elevations, roof plan, foundation plan, basic electrical layout, cross-section(s), foundation plan, and other general specifications. Some plans will include interior cabinet layouts.
View Sample Plan
Archival Designs brings you over 40 years of experience in the house plan design business. We offer the best value for your money by offering the highest quality home designs.
We offer a 10% military & first responder discount, as well as builder discounts for life! Archival Designs guarantees the lowest prices anywhere online. Learn more about our Best Price Guarantee.
All house plans sold by Archival Designs have been designed to comply with the International Residential Code (IRC) and to the local codes in the area where the designer resides or where the house was built.
All house plans are designed to meet or exceed the national building standards required by the International Residential Code (IRC). Due to differences in climate and geography throughout North America, every city, local municipality and county has unique building codes and regulations that must be followed to obtain a building permit. Prior to purchasing a set of house plans, we recommend that you meet with your local building officials in order to determine the building requirements for your area. It is the responsibility of the purchaser(s) and/or builder to ensure that the structure is constructed to meet the codes of their local area.
Important Note:
House plans do not come stamped or signed by an architect or engineer. Additionally, house plans typically will not include structural engineering notes/calculations. Please check with your local building officials to determine if a stamp is required. If required, the building department will only accept a stamp from a licensed professional in the state where the home will be built.
Depending on your city, county, and state building requirements, house plans may need to be reviewed by a local licensed architect or engineer for structural details and code standards before construction begins. This is particularly true in coastal areas and those facing seismic events, extreme winds, and heavy snow. If you are building in any of these areas, a licensed structural engineer will likely be needed to provide the necessary calculations and additional drawings. We authorize the use of our plans conditioned on your obligation and agreement to strictly comply with all local building codes, ordinances, regulations, and requirements, including permits and inspections at the time of and during construction. We recommend checking with your local building department for the most current requirements. The purchaser(s) and/or builder are responsible for additional expenses incurred through meeting municipality requirements or other requirements for construction.
Our foundation plans have been designed for universal conditions and may need to be adjusted to fit your specific site conditions. The foundation should be modified by a local structural engineer to comply with soil testing laboratory findings and local building requirements.
Our house plans will include schematic electrical drawings; however, circuiting or wire sizing will not be included. Your electrical subcontractor will typically provide these drawings.
HVAC and plumbing drawings are not included. Your mechanical and plumbing subcontractors will determine the best layout for your site. Local HVAC codes, climatic requirements and commonly used systems vary throughout the country. The direction of how water flow will enter the home vary from case to case. For this reason, it is impossible to provide universal plans.

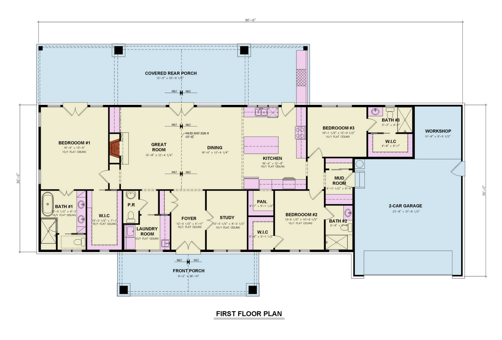
The Haystack V is a refined take on the modern farmhouse plan, blending timeless materials with dramatic interior volume and seamless indoor-outdoor living. Designed with 2,070 square feet of heated living space and an additional 1,588 square feet of covered and garage areas, this 3 bedroom, 3.5 bath farmhouse delivers architectural presence and everyday comfort in equal measure.
From the street, steep 12:12 rooflines and a balanced combination of brick and board-and-batten siding create a bold yet welcoming façade. The deep covered front porch (260 square feet) stretches across the entry, offering space for rocking chairs, lantern lighting, and quiet evenings. At just under 24 feet in height, the home’s strong vertical proportions enhance its curb appeal while maintaining a grounded, approachable character.
Step inside and the home immediately unfolds into an open floor plan anchored by a soaring 25-foot vaulted great room ceiling. Sunlight pours in, emphasizing the dramatic volume overhead while maintaining warmth through the farmhouse detailing. This modern farmhouse with vaulted great room feels expansive without sacrificing intimacy.
The entire first floor features 10-foot ceilings, adding to the sense of openness and architectural refinement. The great room flows seamlessly into the kitchen and dining areas, creating a true gathering space designed for entertaining, holidays, and everyday living.
The large kitchen is positioned to remain visually connected to the great room while maintaining its own defined workspace. Generous counter space, a substantial island, and abundant cabinetry make it ideal for serious cooking and casual entertaining alike. Whether hosting guests or managing busy mornings, this open-concept farmhouse design keeps everyone connected.
Nearby, the dining area enjoys easy access to the expansive 692-square-foot rear porch—transforming indoor meals into effortless indoor-outdoor experiences.
One of Haystack V’s most compelling features is its commitment to outdoor living. The rear covered porch spans nearly 700 square feet, providing ample room for dining, lounging, grilling, and even an outdoor fireplace if desired. This large outdoor space extends the home’s functional footprint and makes it ideal for homeowners who prioritize entertaining or peaceful backyard retreats.
Together with the covered front porch, the home offers over 950 square feet of covered exterior living under roof—perfect for all-season enjoyment.
Privacy is central to this layout. The primary bedroom suite is intentionally separated from the secondary bedrooms, creating a quiet sanctuary on the main floor. This split-bedroom farmhouse layout is ideal for families, empty nesters, or anyone who values personal retreat space.
The primary suite includes a spacious walk-in closet and a well-appointed en suite bath, creating a daily experience that feels both efficient and indulgent.
Each of the two additional bedrooms also features its own private bath, making this 3 bedroom farmhouse plan with en suite bathrooms exceptionally functional for guests or older children.
Haystack V is as practical as it is beautiful. The dedicated home office/study provides a quiet work-from-home solution without sacrificing bedroom space. A first-floor laundry room adds convenience, while thoughtful storage and 2x6 exterior wall framing enhance durability and energy performance.
The front-load two-car garage (636 square feet) integrates seamlessly into the façade while offering an 18' x 8' overhead door for easy access. Built on a slab foundation with stick roof framing, the structure is both straightforward to build and engineered for longevity.
This one-story modern farmhouse plan solves a common homeowner challenge: how to combine dramatic architectural features with efficient, single-level living. With all 2,070 heated square feet located on the main floor, there are no stairs to navigate—making it ideal for aging in place, families with young children, or homeowners simply seeking convenience.
Wide proportions (86'6" in width) give the home a commanding presence, while the 51'5" depth allows it to sit comfortably on a variety of lot types.
Haystack V is not simply a house plan—it is a carefully composed living experience. From its steep metal rooflines to its soaring interior vaults and expansive covered porches, it embodies the best elements of farmhouse architecture while delivering modern-day functionality.
Check out other variants of Haystack below:
Haystack I: https://archivaldesigns.com/products/haystack-house-plan
Haystack II: https://archivaldesigns.com/products/haystack-ii
Haystack IIII: https://archivaldesigns.com/products/haystack-iii
Haystack IV: https://archivaldesigns.com/products/haystack-iv-house-plan
