Welcome back! We activated a special $50 coupon for you valid for 24 hours
Get

Scandinavian House Plans

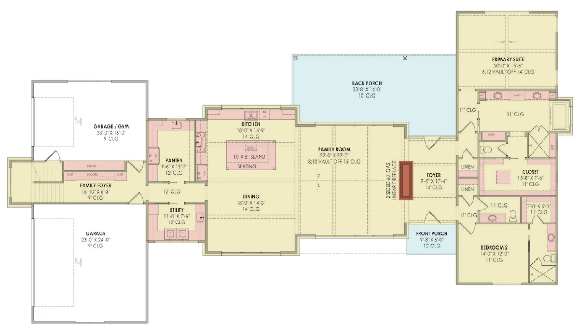
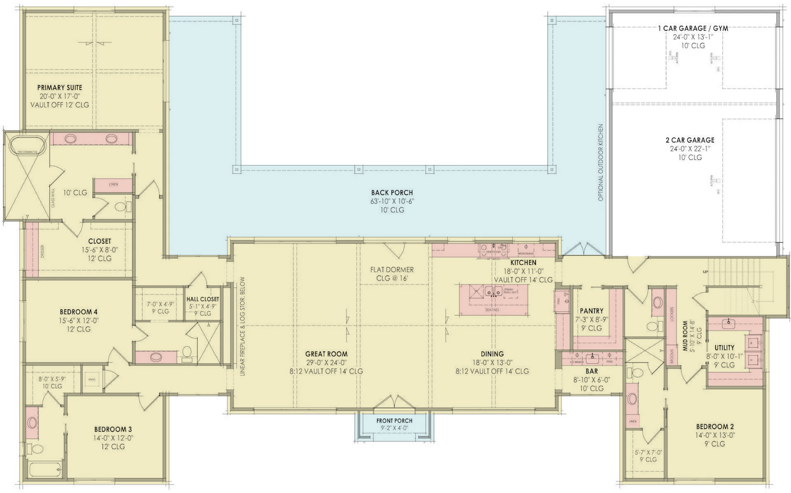
Scandinavian house plans are architectural designs that focus on simplicity, minimalism, and functionality. These homes feature clean lines, open spaces, large windows for natural light, and an uncluttered aesthetic. Scandinavian house plans often incorporate natural materials like wood and stone, creating a modern, cozy, and energy-efficient living environment.

Explore Archival Designs’ collection of Scandinavian House Plans, the epitome of functional elegance and light-filled living. These exceptional blueprints embody the core principles of Nordic Home Designs: simplicity, functionality, and connection to nature. Often characterized by clean lines, natural materials, and large windows, these plans create spaces that promote warmth and well-being, commonly known as hygge.

A Scandinavian Home Design prioritizes efficiency and light. The architecture is deliberately uncluttered, emphasizing open-concept living areas, light wood finishes, and neutral color palettes to maximize brightness during long winter months. Choosing these Minimalist House Plans means selecting a timeless design that is both energy-efficient and highly adaptive to a modern family's needs.

Key Features of Scandinavian House Plans:

Inspired by Scandinavian design principles, these house plans feature clean lines, natural materials, efficient use of light, space and clutter-free living.Β 

Clean lines

A great emphasis is on minimalist, clean design with simple geometric shapes and a clutter-free environment.

Use of natural lightΒ 

One of the hallmarks of Scandinavian design principles is the integration between indoor and outdoor spaces. Homes use large windows, skylights, and open floor designs to optimize natural light and create a sense of seamlessness to enhance the connection with nature.

Natural materialsΒ 

Scandinavian-style house plans use natural materials like wood, stone, etc. while incorporating earthy tones to create warm and inviting spaces that blend with nature. They also useΒ 

Functionality

Efficiency and functionality are essential to Scandinavian house plans with careful layouts and storage that optimize space and minimize waste.

Muted hues

Scandinavian homes use color sparingly and are dominated by neutral tones that enhance the beauty of light, space and natural materials.

Benefits of Scandinavian House Plan Design

Energy efficiency

Scandinavian home design improves energy efficiency through sustainable, eco-friendly materials, passive insulation and renewable energy resources to create homes that are both environmentally friendly and cost-effective.

Classic aesthetic

The beauty of Scandinavian design is that it offers an evergreen aesthetic that is beyond passing fads, ensuring that your house looks timeless and elegant for years to come.

ComfortΒ 

Scandinavian design is all about a stress-free lifestyle. Hence the emphasis on natural light, ventilation, and harmony with nature improves the quality of life.Β 

Modularity

Modularity is an integral part of Scandinavian interiors. You will find modular furniture such as rotating armchairs, mobile lamps, modular sofas, Murphy beds, fold-down tables and many such functional pieces that are practical and easy to assemble/disassemble through narrow hallways.Β 

FlexibilityΒ 

Scandinavian homes blend easily with other styles and also adapt well to different lifestyle needs with flexible floor plans and multifunctional spaces that can evolve with a family’s needs,Β 

Different Types of Scandinavian House Plans

Minimalist Scandinavian House Plan

Featuring clean lines, simplicity, and functionality, a minimalist Scandinavian-style home plan focuses on essential living spaces and clutter-free aesthetics to create a calm and soothing environment.

Traditional Scandinavian House Plan

Traditional homes have classic elements like large windows, steep gabled roofs, timber frame construction etc. It will also use features like wood cladding, stone accents, porches and patios and an open layout.

Scandinavian Passive House PlanΒ 

Passive homes are famous for being energy-efficient, comfortable and affordable. They use high levels of insulation, advanced ventilation systems,and renewable energy sources. They often use solar panels and pre-fabricated timber homes to keep the construction and maintenance costs low.Β 

Contemporary Scandinavian House PlanΒ 

Increasingly, people are looking at a contemporary take on traditional Scandinavian house design by blending simplicity and clean lines with a bolder take, modern technology and new material choices. They feature minimalist roofs often using solar panels or rooftop gardens, expansive windows, and a mix of natural and modern materials like wood, stone, concrete, glass and steel.

27 house plans

FAQ

1. What is a Scandinavian floor plan?

Scandinavian homes are known for their minimalist look, open layouts, and clean lines. The floor plans essentially focus on natural light, a seamless connection between indoors and outdoors, and open spaces that focus on comfort and functionality.

2. What is the core design philosophy of Scandinavian House Plans?

The core philosophy is functional minimalism, prioritizing natural light, simplicity, and high-quality craftsmanship. The goal is to create a cozy, bright, and efficient living environment, often captured by the cultural term hygge (coziness and well-being).

3. How do Nordic Home Designs maximize natural light?

They maximize light through the strategic use of oversized, often triple-pane, windows, open-concept floor plans, and a predominantly white or light-colored interior palette that reflects available light throughout the home.

4. What exterior materials are commonly used in Scandinavian architecture?

Exteriors often feature light-colored vertical wood siding (such as painted wood or vertical cladding) or white/grey stucco. The roofs are typically simple sloped or gabled designs, often finished with durable metal or tile.

5. Is Scandinavian house design the same as minimalist house design?

While Scandinavian house design is built on the principles of minimalism there are a few differences, as minimalist homes often prioritize materials like steel and chrome while Scandinavian homes rely heavily on natural materials (like wood) along with woven and softer textures for warmth.

6. What is the difference between Scandinavian and Nordic architectural styles?

While both share the same design principles and aesthetics, Scandinavian design is inspired by the design traditions of Denmark, Sweden, and Norway while Nordic design covers a broader geographic region, including Finland and Iceland.

7. What is the difference between Scandinavian and Modern Farmhouse styles?

While both styles favor simplicity and light, Modern Farmhouse often features more dramatic black trim, prominent porches, and board-and-batten siding. Scandinavian Home Designs are generally cleaner, more minimalist, and prioritize functionality and light over rustic texture or dramatic curb appeal.

8. Are Scandinavian Homes energy efficient?

Yes, highly so. Since they originated in cold Northern climates, Scandinavian House Plans are drafted with superior thermal performance in mind, utilizing high levels of insulation, airtight construction, and efficient heating systems.

Why Choose Archival Designs
Them
Cost to Build

Free

$30+
Shipping
Free
on physical blueprints
$20+
Price Guarantee
Only Price Match
Purchase

Direct


from the Architect
Middleman
Search by Plan Name