This inviting 1-bedroom log cabin combines rustic beauty with modern convenience in a thoughtfully designed 960-square-foot layout. The open-concept floor plan features a warm great room, a functional kitchen with a central island and eating bar, and a comfortable breakfast and formal dining area — perfect for both everyday living and entertaining. The first-floor master suite offers privacy and comfort, enhanced by the cabin’s natural log framing and cozy aesthetic.
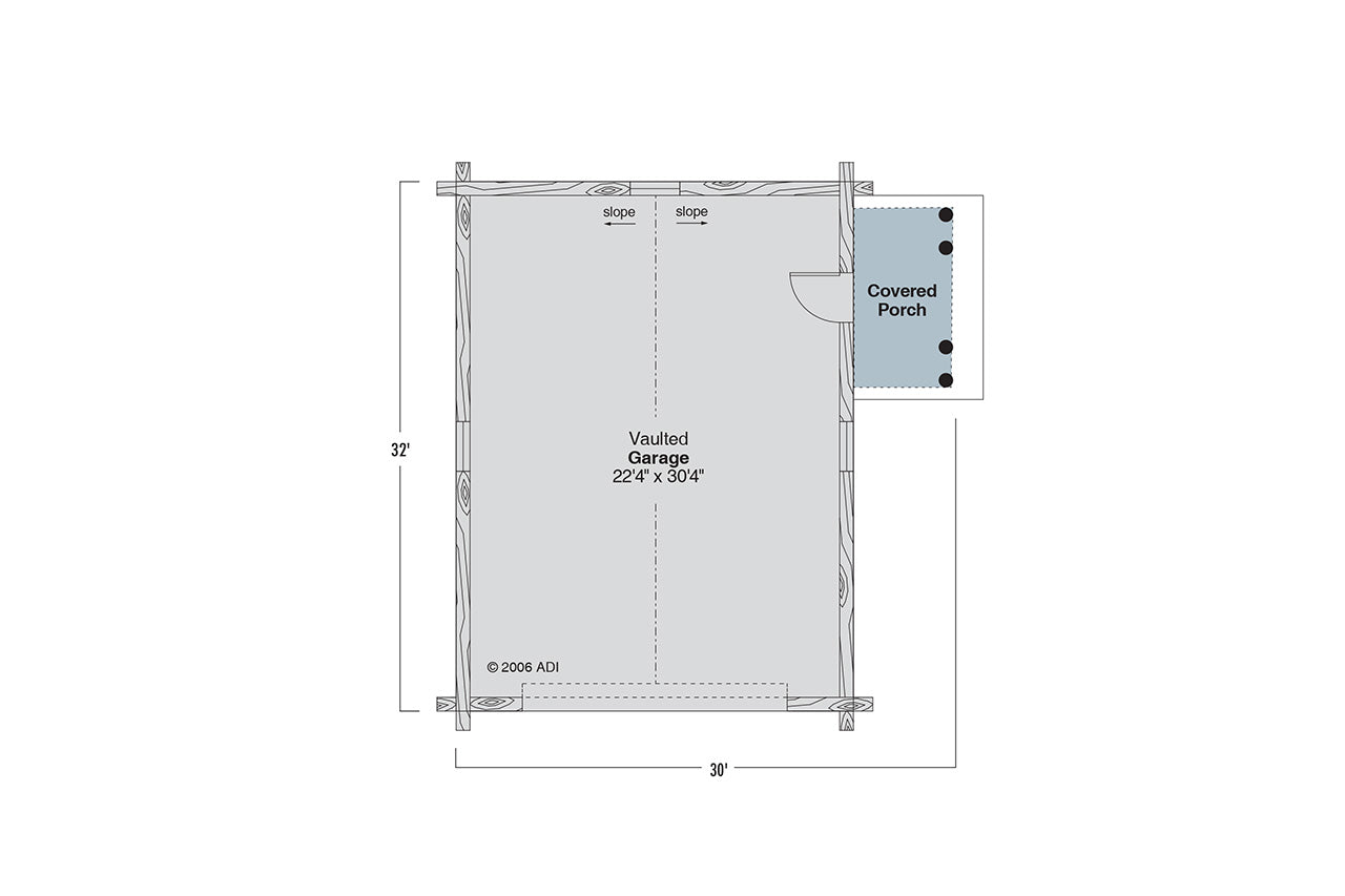
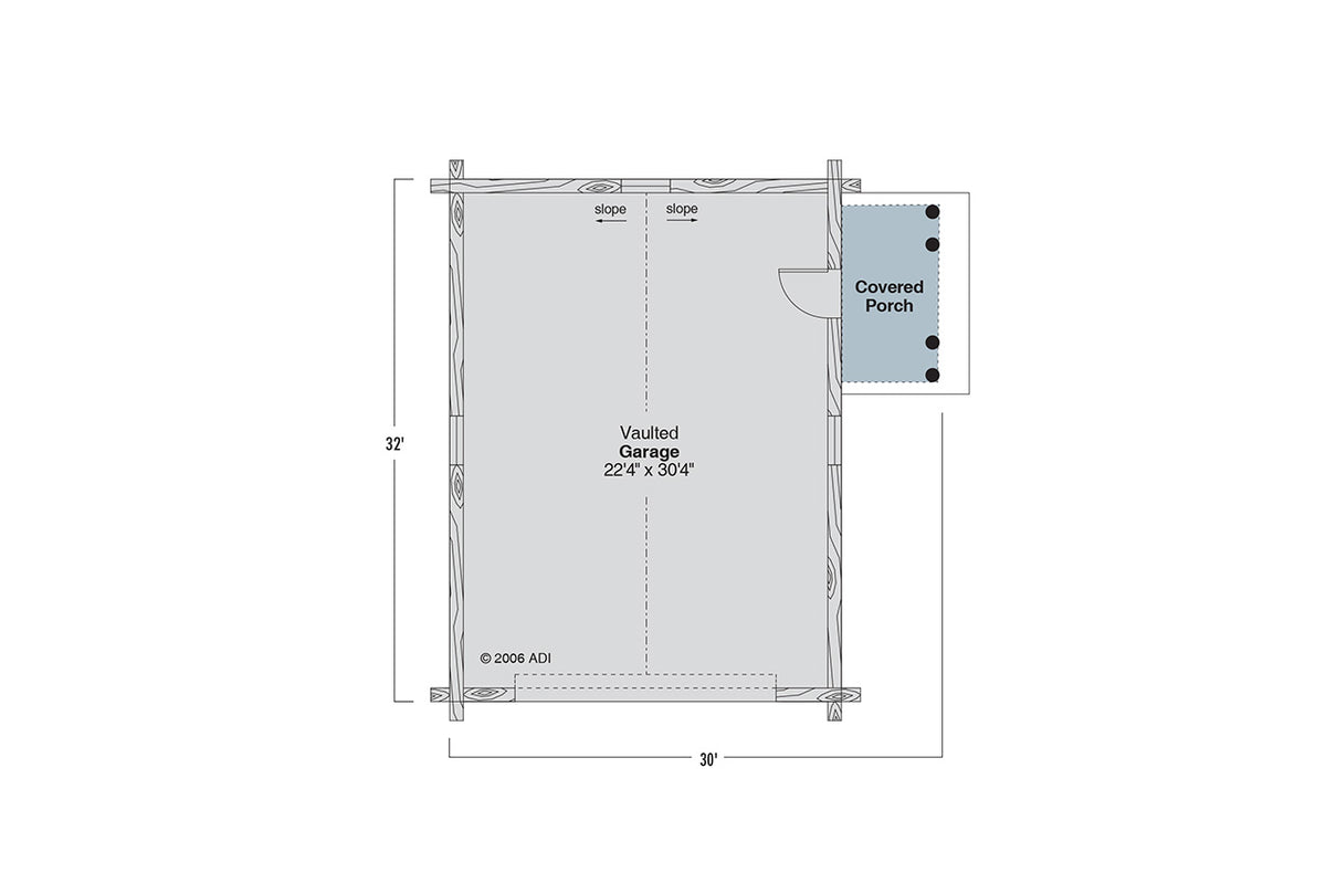
Outdoor living is equally inviting, with a covered front porch for relaxing evenings and a screened rear porch for enjoying fresh air year-round. The 2-car front-load garage below the living space offers 768 square feet of storage and parking, making it ideal for full-time living, a vacation getaway, or a guest retreat. With 9-foot ceilings, truss roof framing, and an 8:12 roof pitch, this log cabin blends durability, charm, and functionality into a timeless rustic design.








