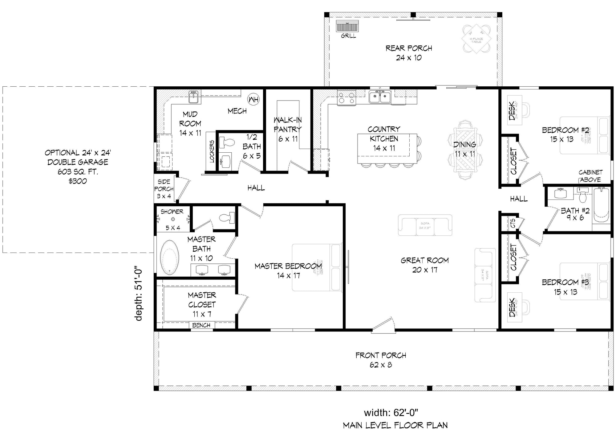
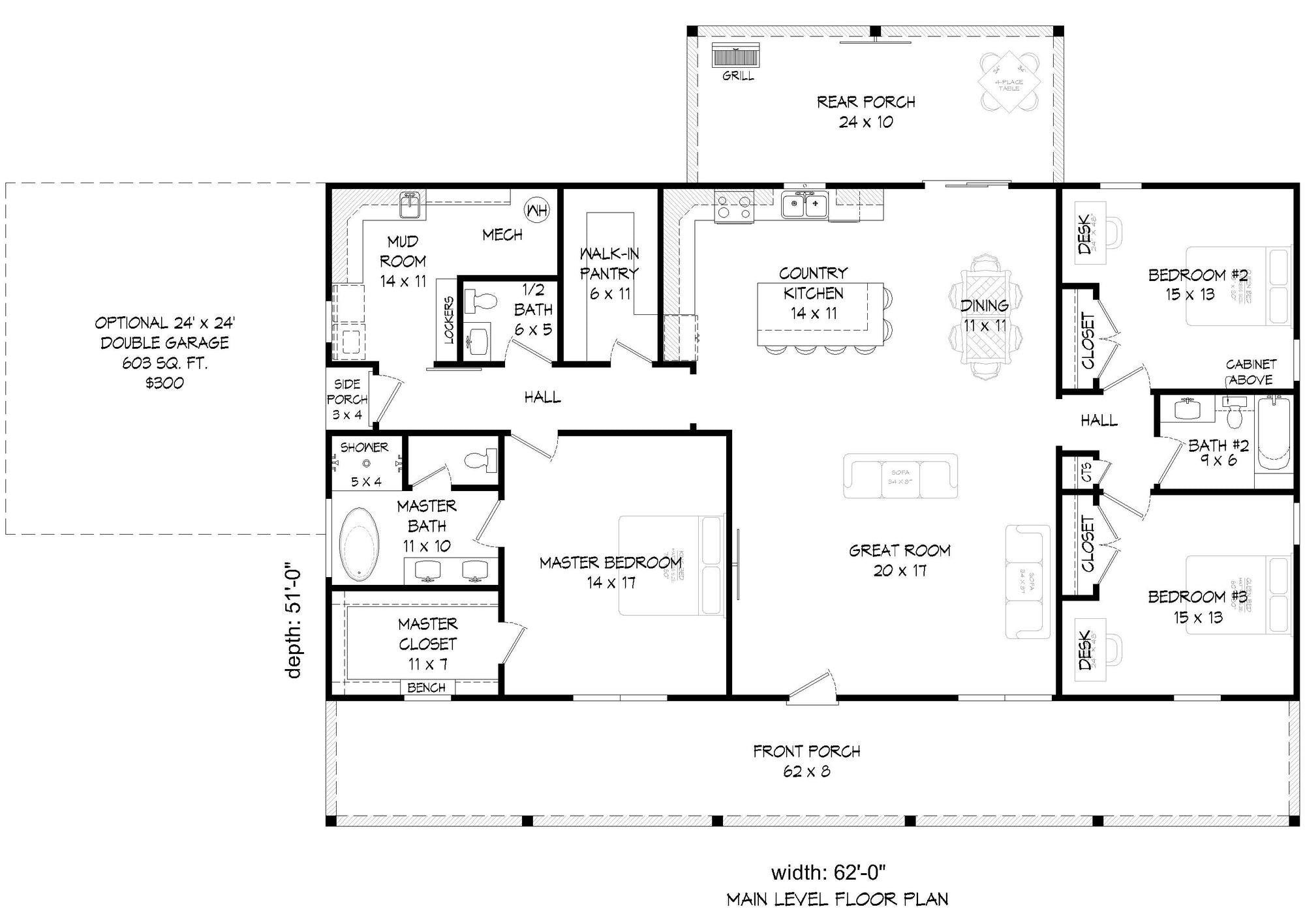
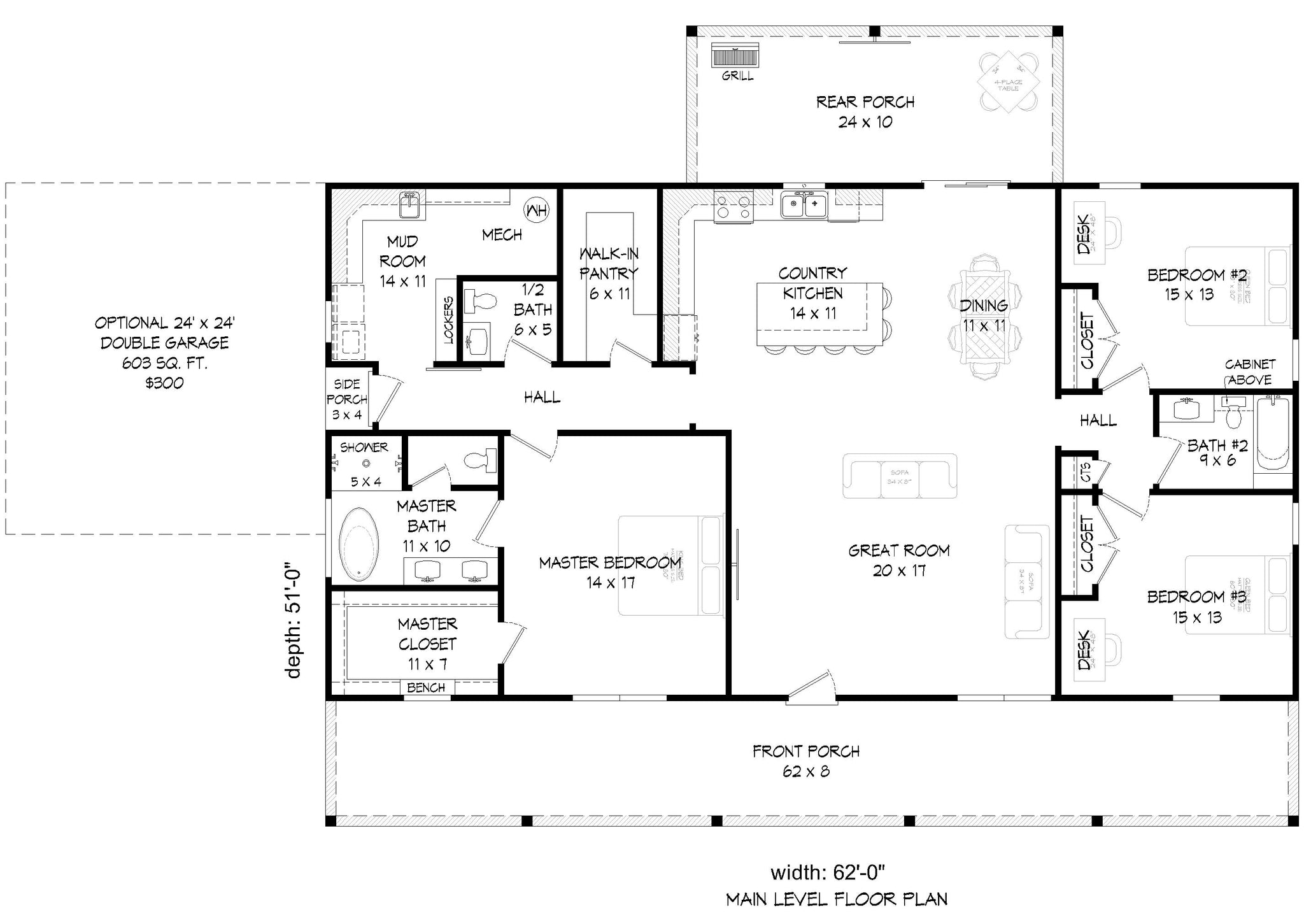
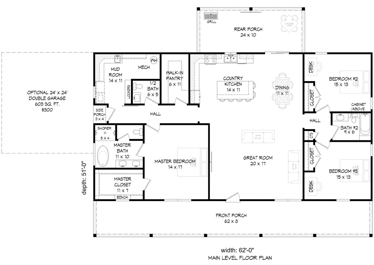
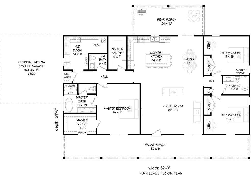
This beautifully designed 3-bedroom, 2.5-bath country house offers the perfect blend of charm, comfort, and modern convenience—all on one easy-living level. With 2,046 sq. ft. of heated space, this home showcases an inviting 496 sq. ft. covered front porch, ideal for rocking chairs, gatherings, and enjoying long country sunsets. Inside, the open floor plan connects the great room, kitchen, and breakfast area into one light-filled space. The kitchen is a standout feature with its large island, eating bar, and walk-in pantry, making meal prep and entertaining effortless.
A thoughtful split-bedroom layout provides privacy, placing the luxurious master suite on one side of the home. The suite includes a private bath, double vanities, and a generous walk-in closet. Everyday convenience is built in through the mudroom, first-floor laundry, and optional 603 sq. ft. two-car front-load garage. Outdoor living shines with the 240 sq. ft. covered rear porch and additional side porch, perfect for enjoying quiet mornings or evening breezes. With its 2x4 framing, slab foundation, and balanced 8:12 and 3:12 roof pitches, this country home blends timeless style with the comfort families love—ideal for rural lots, small acreage, or peaceful suburban settings.







