Welcome back! We activated a special $50 coupon for you valid for 24 hours
Get

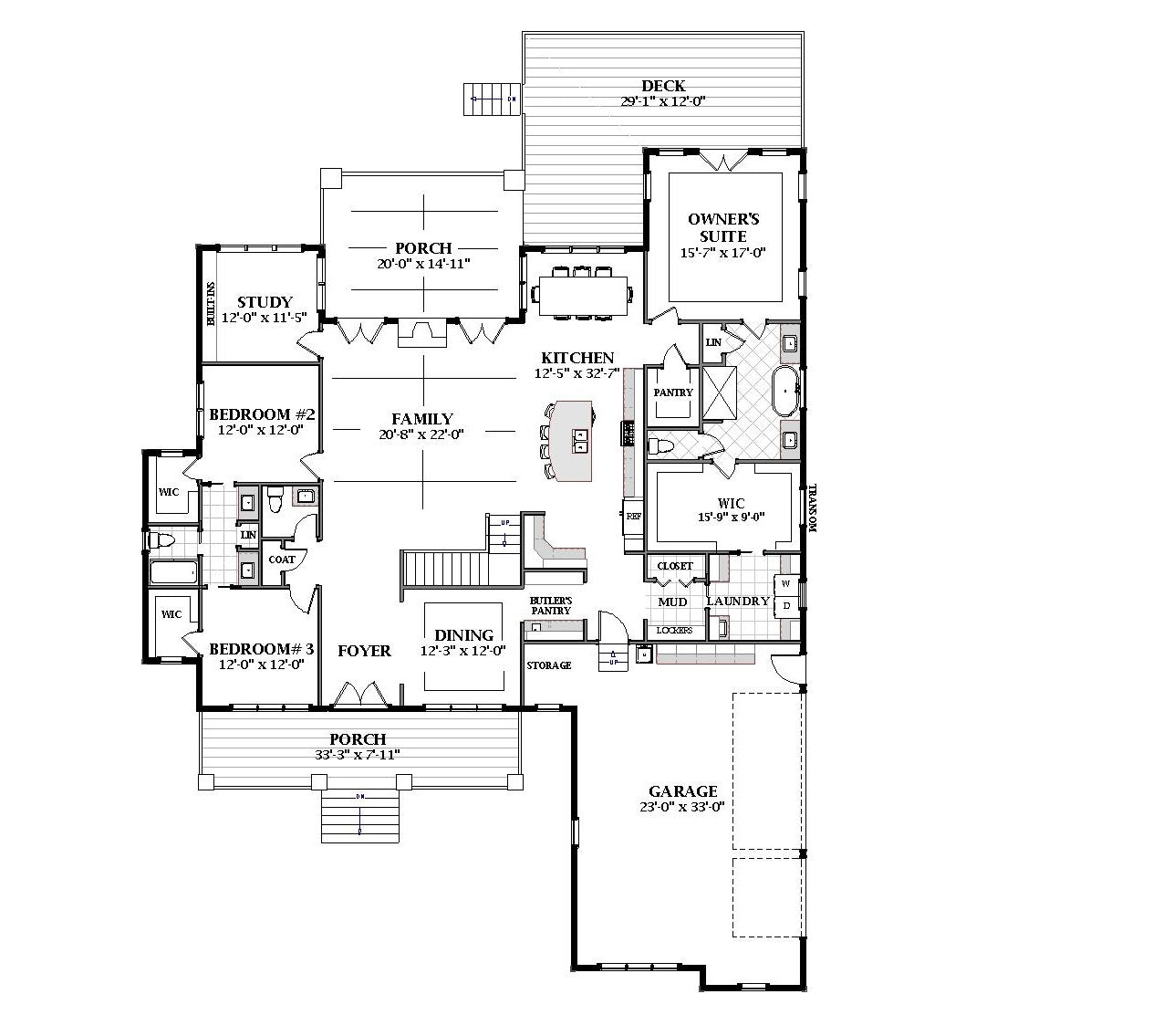
Guest Suite Floor Plan

The addition of a guest suite to a home can provide a significant boost to a home’s versatility. With the average guest suite ranging from 100 to 150 sq ft, careful planning is essential to maximize both comfort and functionality. The square footage (square feet) of a guest suite is often smaller than the owner's suite but larger than a typical secondary bedroom, making square footage (square) a key factor in planning for both comfort and use.

A large guest suite offers more comfort and versatility for guests, allowing for a variety of activities and making extended stays more enjoyable. The placement and number of bathrooms are also important—having a dedicated bathroom for the guest suite, ideally with two sinks, can greatly improve convenience and privacy for guests. Bathrooms located near or within the suite enhance accessibility and comfort.

An open floor plan can help the guest suite feel more connected to the main living area, promoting easy movement and a welcoming environment. Wall placement is crucial, as it affects both the privacy and functionality of the guest suite, helping to separate the space while maintaining visual continuity.

Consider incorporating a guest suite into your home design to allow for future family growth or the potential for a multi-generational living space. When planning your design, search for guest suite floor plans and get expert help or advice to optimize your layout. These resources can help you create a space that meets your needs and may even help save money or generate rental income. See visual comparisons or floor plan layouts to better understand the impact of different design choices.

Introduction to Guest Suites

A guest suite is a thoughtfully designed bedroom within a home, created to offer family and friends a comfortable place to stay for one night or an extended visit. Unlike a law suite, which typically provides completely separate living quarters, a guest suite is usually integrated into the main floor plan of the house. It may share a hallway and bathroom with the rest of the home or, in some cases, feature its own private bath. With the average guest suite ranging from 100 to 150 sq ft, careful planning is essential to maximize both comfort and functionality. Including a guest suite in your house plan not only enhances your home’s hospitality but also adds a valuable feature that can adapt to your family’s changing needs. Whether you’re designing a new home or updating an existing floor plan, a well-placed guest suite can make your living space more inviting and versatile for everyone.

Benefits of a Guest Suite

Incorporating a guest suite into your house plan brings a host of benefits, making your home more welcoming and functional. For families who love to host, a guest suite provides a dedicated space for visitors, ensuring they have privacy and comfort without disrupting the daily routine of the household. This is especially valuable in homes where children occupy most of the bedrooms, as it eliminates the need for makeshift sleeping arrangements like air mattresses or couches. Beyond hosting guests, a guest suite can serve as a flexible living space—doubling as a home office, craft room, or extra storage when not in use. With so many floor plans available, you can find the perfect guest suite design to match your needs, whether you want a small, cozy retreat or a spacious, luxurious suite. Ultimately, a guest suite adds both convenience and value to your home, making it a smart feature for any modern house plan.

Types of Guest Suites

Guest suites come in a variety of styles, each offering unique features to suit different needs and preferences. A full guest suite typically includes a bedroom and a private bathroom, providing guests with a comfortable and self-contained spaceideal for homes where kids’ bedrooms are located upstairs or in a separate wing. Another popular option is the jack-and-jill bath layout, where the guest suite shares a bathroom with an adjacent bedroom, offering an extra bedroom for guests without the need for an additional full bath. Some house plans feature guest suites with shared access to a hallway bath, while others place the suite on the main floor near entertainment areas or outdoor living spaces for added convenience. When exploring house plans, consider whether you want a separate living area, a cozy bedroom, or a flexible suite that can adapt to multiple uses. With so many options, you’re sure to find a guest suite that fits your lifestyle and enhances your home’s overall design.

Designing a Guest Suite

Designing the perfect guest suite involves thoughtful consideration of location, size, and layout to ensure both comfort and functionality. Placing the guest suite on the main floor can be a great choice, as it offers easy access to shared spaces like the kitchen, dining area, and living room. The ideal size for a guest suite is typically between 100 and 150 sq ft, providing enough room for a comfortable bed, a closet, and perhaps a small seating area. When planning the layout, think about the placement of the bathroom—whether it’s en suite or conveniently located nearby—as well as additional features like a home office nook or extra storage. A well-designed guest suite should feel welcoming and private, making guests feel right at home while also serving your family’s needs. With the right design choices, your guest suite can become a standout feature that adds both style and practicality to your home.

House Plans with Guest Suites

Today’s house plans offer a wide variety of options for incorporating guest suites, making it easy to find the perfect fit for your home and lifestyle. Whether you’re searching for a small, efficient guest room or a spacious suite with its own living area, there are many plans to choose from. Some house plans feature guest suites on the main floor for easy access, while others include separate suites above the garage or in a private wing of the home. For those who want even more flexibility, some plans allow for the conversion of a garage or bonus room into a guest suite, providing extra living space without altering the main layout. When selecting a house plan, consider your family’s needs, how often you host guests, and the features that matter most to you. With so many architectural options available, you can create a new home that’s both welcoming and functional, ensuring your guests always have a comfortable place to stay.

141 house plans

Our client image
Our client image
Our client image
Our client image
Our client image
Why Choose Archival Designs
Them
Cost to Build

Free

$30+
Shipping
Free
on physical blueprints
$20+
Price Guarantee
Only Price Match
Purchase

Direct


from the Architect
Middleman
Search by Plan Name