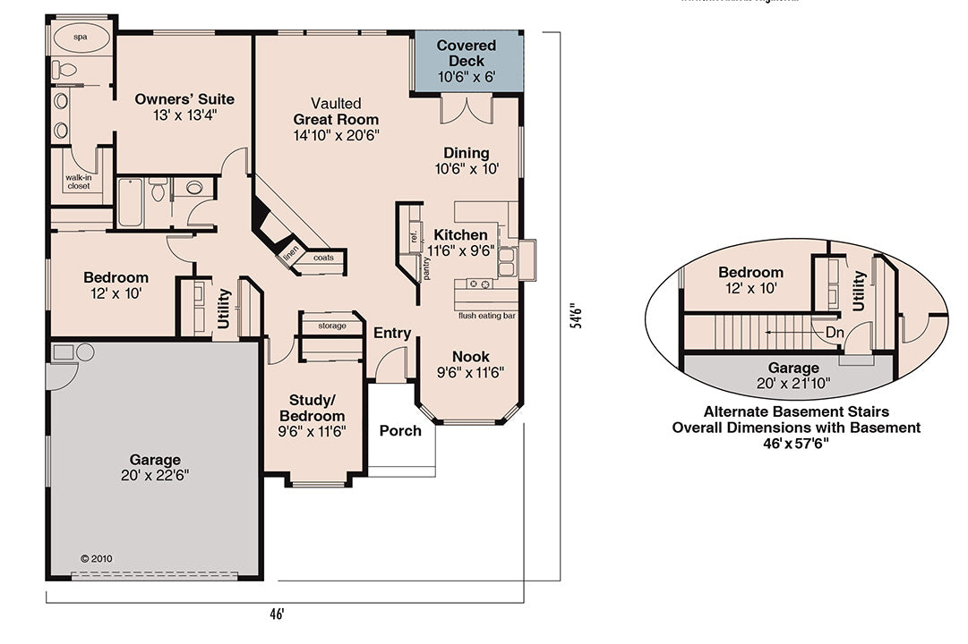
This well-designed traditional house plan offers a perfect combination of comfort, functionality, and timeless appeal. With 1,569 square feet of heated living space, this single-story home is ideal for families, couples, or homeowners seeking a practical layout with classic design elements.
Featuring three bedrooms, two bathrooms, and a two-car garage, this home delivers everything needed for comfortable everyday living.
Classic Traditional Exterior
The exterior showcases a clean and timeless design, highlighted by a welcoming covered front porch that adds charm and curb appeal. The home also includes a small 63-square-foot porch area, providing a cozy outdoor space for relaxing or greeting guests.
With a 6:12 roof pitch and balanced proportions—46 feet wide and 54 feet 6 inches deep—the home presents a classic silhouette that fits well in a variety of settings.
Built on a crawl space foundation with durable 2x6 wall framing and truss roof construction, the structure is designed for long-term strength and efficiency.
Open and Comfortable Living Space
Inside, the home features an open floor plan that connects the kitchen, dining, and great room into one cohesive living area. This layout creates a spacious and inviting environment while allowing natural light to flow freely throughout the home.
The great room serves as the central gathering space, perfect for relaxing, entertaining, or spending time with family.
Functional Kitchen with Island and Dining Options
The kitchen is thoughtfully designed for both everyday use and entertaining. A central kitchen island provides additional workspace and serves as a focal point for social interaction.
An eating bar offers casual seating for quick meals, while the adjacent breakfast area provides a comfortable space for everyday dining.
For more formal occasions, the home also includes a formal dining room, giving homeowners flexibility for hosting gatherings and special events.
A wall pantry ensures convenient storage for groceries and kitchen essentials, helping maintain an organized and efficient space.
Private Master Suite
The first-floor master suite offers a peaceful retreat within the home. The bedroom includes a spacious walk-in closet, providing ample storage for clothing and personal items.
The private master bathroom features a double vanity sink, enhancing convenience for daily routines.
Additional Bedrooms and Practical Layout
Two additional bedrooms provide comfortable accommodations for family members or guests. These rooms are well-positioned for accessibility and flexibility, making them suitable for a variety of uses such as children’s rooms, guest rooms, or home offices.
Everyday Convenience Features
The home includes a first-floor laundry room and a utility room, helping keep daily tasks organized and efficient.
The attached two-car garage (477 sq ft) offers convenient front access along with additional storage space for tools, equipment, or seasonal items.
With 8-foot ceiling heights, the home maintains a comfortable and traditional interior feel.
Outdoor Living and Relaxation
In addition to the front porch, the home includes a rear deck, providing additional outdoor space for relaxing, grilling, or entertaining guests.
These outdoor areas extend the living space and enhance the overall lifestyle experience.
Ideal for Family Living
With a total structure size of 2,109 square feet, this home is perfect for:
-
Families seeking a comfortable single-story layout
-
Homeowners who enjoy open living spaces
-
Those who want both casual and formal dining options
-
Long-term residential living
Timeless Design with Everyday Comfort
This traditional 3-bedroom house plan combines classic style with modern functionality. From the open living spaces and multiple dining options to the private master suite and practical layout, every detail is designed to support comfortable and efficient living.
Whether you're building your first home or upgrading to a more spacious layout, this design offers the perfect balance of style, space, and practicality.







