I7635-A
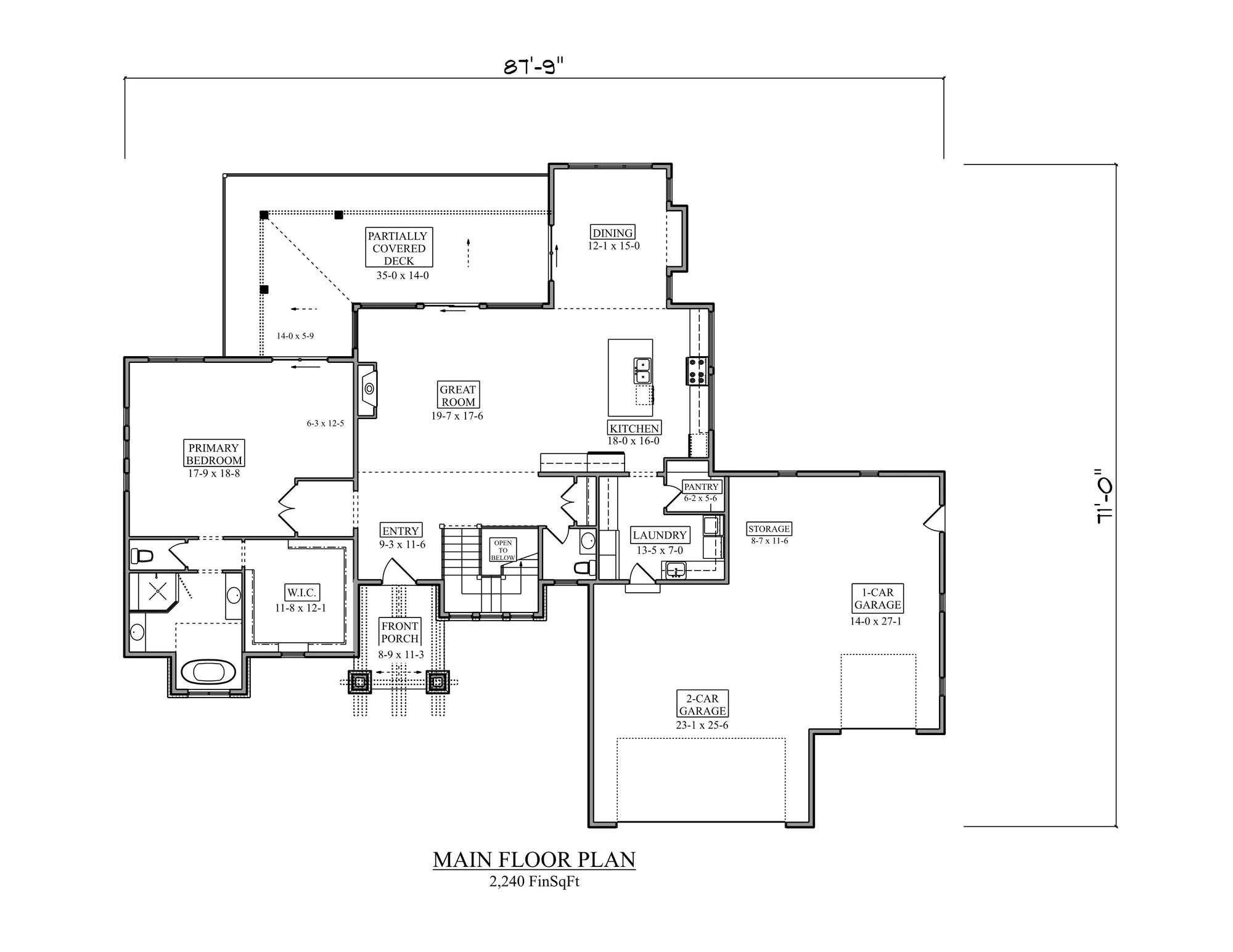
This distinctive luxury ranch house plan offers a rare combination of expansive square footage, thoughtful architectural detailing, and exceptional livability within a highly efficient one-bedroom layout. With 4,212 square feet of total heated living space, a generous walkout basement, and over 1,100 square feet of covered porch areas, this home is ideal for homeowners who desire open, spacious living without the need for multiple bedrooms. Whether designed as a primary residence, a luxury retreat, or a high-end downsizing option, this plan delivers comfort, flexibility, and timeless appeal.
The exterior presents a strong architectural presence with its balanced proportions and welcoming covered front porch. The wide façade, measuring nearly 88 feet in width, creates impressive curb appeal while maintaining the relaxed charm of a classic ranch home. A front-load 3-car garage blends seamlessly into the design and offers ample space for vehicles, storage, and workshop needs. The garage’s direct access to the home through the laundry area enhances everyday convenience.
Inside, the main level features 2,240 square feet of thoughtfully designed living space, all enhanced by 10-foot ceilings throughout. These taller ceilings elevate the overall feel of the home, allowing natural light to flow freely and creating a sense of openness that complements the plan’s open-concept layout. The central living areas are designed for both comfortable daily living and effortless entertaining.
The great room serves as the heart of the home, anchored by a cozy fireplace that adds warmth and visual interest. Its open connection to the kitchen and dining spaces ensures that gatherings feel connected and inviting. Adjacent to the great room, the formal dining room provides a more refined setting for hosting dinners and special occasions, while still maintaining a seamless flow with the rest of the living areas.
The kitchen is designed to balance beauty with functionality. A large kitchen island offers additional workspace and casual seating, making it perfect for everyday meals or entertaining guests. The eating bar adds flexibility for informal dining, while the expansive walk-in pantry ensures ample storage for everything from groceries to small appliances. This well-planned kitchen layout supports both efficiency and style.
The primary suite, located on the main level, is designed as a true private retreat. Generously sized, it provides plenty of space for a king-sized bed and additional seating. The en-suite bathroom includes double vanities, a private bath layout, and a large walk-in closet, delivering the comfort and functionality expected in a luxury home. The suite’s placement offers privacy from the main living areas while remaining easily accessible.
Practical features are thoughtfully integrated throughout the design. The first-floor laundry room, with direct access from the garage, simplifies everyday routines and adds convenience to household flow. A centrally located powder room serves guests without intruding on the privacy of the primary suite.
One of the most valuable aspects of this plan is its walkout basement, which includes 1,972 square feet of finished space with 10-foot ceilings. This lower level dramatically expands the home’s potential, offering flexibility for future customization. Homeowners can easily transform this area into a recreation room, home theater, fitness space, guest accommodations, hobby rooms, or additional entertaining areas. The walkout design allows for natural light and direct access to the outdoors, making the basement feel like a true extension of the home rather than an afterthought.
Outdoor living is another standout feature of this design. With a combination of a covered front porch and a spacious rear deck, totaling 1,176 square feet of porch space, the home is well suited for those who enjoy spending time outdoors. These spaces are ideal for entertaining, relaxing, or simply enjoying scenic views and fresh air throughout the seasons.
Constructed with durable 2x6 wall framing, this home supports improved energy efficiency and long-term performance. The balanced 6:12 roof pitch enhances its classic ranch character while maintaining architectural integrity. With its expansive layout, luxurious primary suite, open-concept living spaces, and flexible walkout basement, this plan offers a unique opportunity to enjoy spacious, high-end living in a beautifully designed one-bedroom home.




PDF (Single Build)
A complete set of working drawings delivered in digital PDF format. This option comes with a license to build ONE home and includes a copyright release for printing unlimited sets of plans and making modifications.
CAD + PDF (Single Build)
A complete set of working drawings delivered in digital DWG and PDF formats. AutoCAD files are used by design professionals to make significant modifications or engineering calculations to the plan. This option comes with a license to build ONE home and includes a copyright release for printing unlimited sets of plans and making modifications.
5 or 8 Prints (Single Build)
Five or eight printed sets of working drawings shipped to you. This option comes with a license to build ONE home.
5 Prints + PDF (Single Build)
Five printed sets of working drawings shipped to you, plus a digital version in PDF format. This option comes with a license to build ONE home and includes a copyright release for printing unlimited sets of plans and making modifications.
PDF (Multi Build)
A complete set of working drawings delivered in digital PDF format. This option comes with a license to build an UNLIMITED number of homes and includes a copyright release for printing unlimited sets of plans and making modifications. This option may not be available for all house plans, or may require a specific format to be purchased. Please call 770-831-6363 for more information.
CAD + PDF (Multi Build)
A complete set of working drawings delivered in digital DWG and PDF formats. AutoCAD files are used by design professionals to make significant modifications or engineering calculations to the plan. This option comes with a license to build an UNLIMITED number of homes and includes a copyright release for printing unlimited sets of plans and making modifications. This option may not be available for all house plans, or may require a specific format to be purchased. Please call 770-831-6363 for more information.
Choose a building foundation for your home. The foundation provides stability to a home's structure from the ground up.
Slab - This concrete foundation is reinforced with steel rods and suitable for flat ground.
Crawl Space - This foundation is raised off the ground with low walls resting on footings, providing space for wiring, plumbing, and storage.
Basement - This foundation is entirely or partially below ground and offers storage or living areas.
Walkout Basement - This foundation is typically suited for rear-sloping lots and provides storage or living areas. Walkout basements have doors that provide access to the outside.




The construction drawings will include detailed, dimensioned floor plans, exterior elevations, roof plan, foundation plan, basic electrical layout, cross-section(s), foundation plan, and other general specifications. Some plans will include interior cabinet layouts.
View Sample Plan
Archival Designs brings you over 40 years of experience in the house plan design business. We offer the best value for your money by offering the highest quality home designs.
We offer a 10% military & first responder discount, as well as builder discounts for life! Archival Designs guarantees the lowest prices anywhere online. Learn more about our Best Price Guarantee.
All house plans sold by Archival Designs have been designed to comply with the International Residential Code (IRC) and to the local codes in the area where the designer resides or where the house was built.
All house plans are designed to meet or exceed the national building standards required by the International Residential Code (IRC). Due to differences in climate and geography throughout North America, every city, local municipality and county has unique building codes and regulations that must be followed to obtain a building permit. Prior to purchasing a set of house plans, we recommend that you meet with your local building officials in order to determine the building requirements for your area. It is the responsibility of the purchaser(s) and/or builder to ensure that the structure is constructed to meet the codes of their local area.
Important Note:
House plans do not come stamped or signed by an architect or engineer. Additionally, house plans typically will not include structural engineering notes/calculations. Please check with your local building officials to determine if a stamp is required. If required, the building department will only accept a stamp from a licensed professional in the state where the home will be built.
Depending on your city, county, and state building requirements, house plans may need to be reviewed by a local licensed architect or engineer for structural details and code standards before construction begins. This is particularly true in coastal areas and those facing seismic events, extreme winds, and heavy snow. If you are building in any of these areas, a licensed structural engineer will likely be needed to provide the necessary calculations and additional drawings. We authorize the use of our plans conditioned on your obligation and agreement to strictly comply with all local building codes, ordinances, regulations, and requirements, including permits and inspections at the time of and during construction. We recommend checking with your local building department for the most current requirements. The purchaser(s) and/or builder are responsible for additional expenses incurred through meeting municipality requirements or other requirements for construction.
Our foundation plans have been designed for universal conditions and may need to be adjusted to fit your specific site conditions. The foundation should be modified by a local structural engineer to comply with soil testing laboratory findings and local building requirements.
Our house plans will include schematic electrical drawings; however, circuiting or wire sizing will not be included. Your electrical subcontractor will typically provide these drawings.
HVAC and plumbing drawings are not included. Your mechanical and plumbing subcontractors will determine the best layout for your site. Local HVAC codes, climatic requirements and commonly used systems vary throughout the country. The direction of how water flow will enter the home vary from case to case. For this reason, it is impossible to provide universal plans.

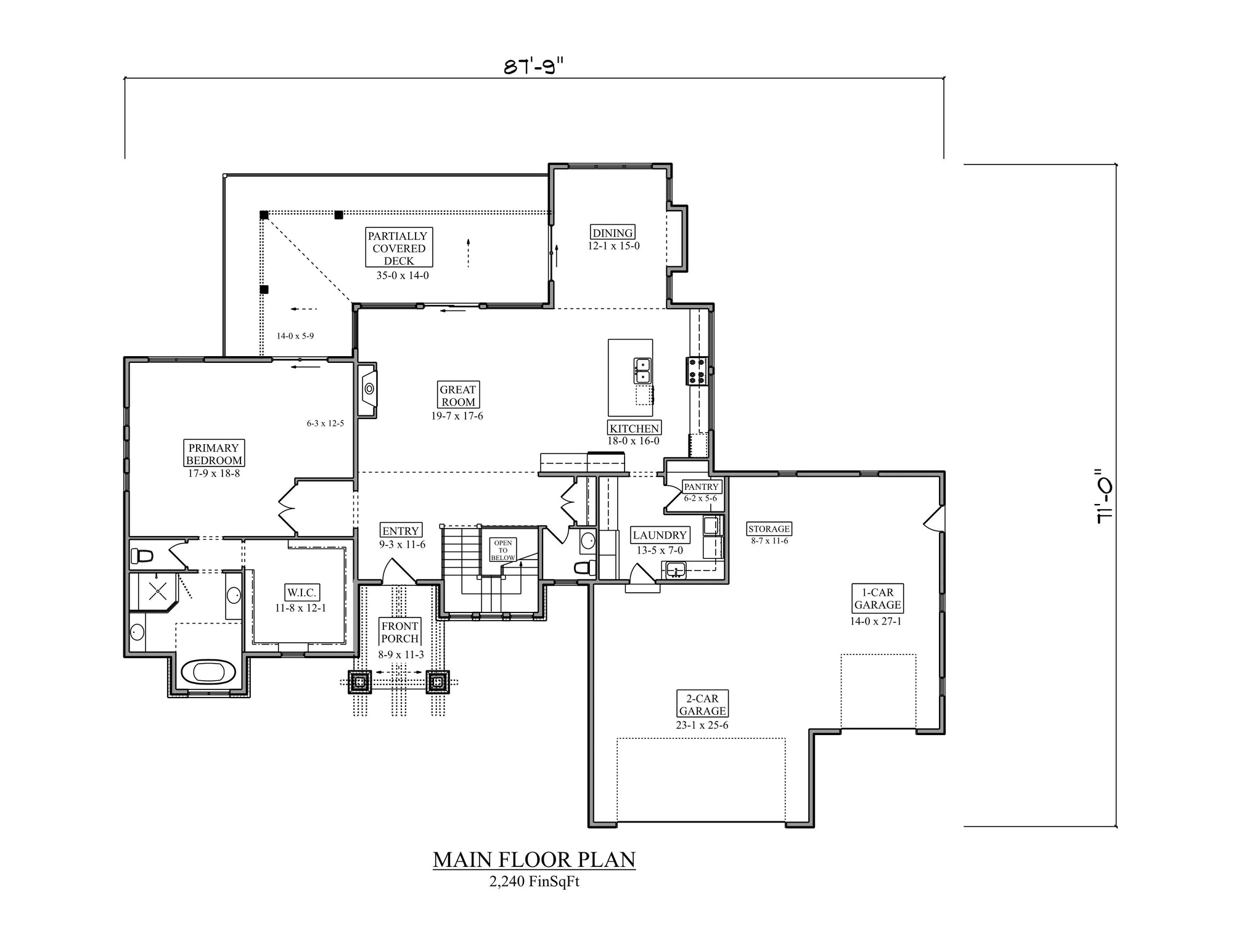
This distinctive luxury ranch house plan offers a rare combination of expansive square footage, thoughtful architectural detailing, and exceptional livability within a highly efficient one-bedroom layout. With 4,212 square feet of total heated living space, a generous walkout basement, and over 1,100 square feet of covered porch areas, this home is ideal for homeowners who desire open, spacious living without the need for multiple bedrooms. Whether designed as a primary residence, a luxury retreat, or a high-end downsizing option, this plan delivers comfort, flexibility, and timeless appeal.
The exterior presents a strong architectural presence with its balanced proportions and welcoming covered front porch. The wide façade, measuring nearly 88 feet in width, creates impressive curb appeal while maintaining the relaxed charm of a classic ranch home. A front-load 3-car garage blends seamlessly into the design and offers ample space for vehicles, storage, and workshop needs. The garage’s direct access to the home through the laundry area enhances everyday convenience.
Inside, the main level features 2,240 square feet of thoughtfully designed living space, all enhanced by 10-foot ceilings throughout. These taller ceilings elevate the overall feel of the home, allowing natural light to flow freely and creating a sense of openness that complements the plan’s open-concept layout. The central living areas are designed for both comfortable daily living and effortless entertaining.
The great room serves as the heart of the home, anchored by a cozy fireplace that adds warmth and visual interest. Its open connection to the kitchen and dining spaces ensures that gatherings feel connected and inviting. Adjacent to the great room, the formal dining room provides a more refined setting for hosting dinners and special occasions, while still maintaining a seamless flow with the rest of the living areas.
The kitchen is designed to balance beauty with functionality. A large kitchen island offers additional workspace and casual seating, making it perfect for everyday meals or entertaining guests. The eating bar adds flexibility for informal dining, while the expansive walk-in pantry ensures ample storage for everything from groceries to small appliances. This well-planned kitchen layout supports both efficiency and style.
The primary suite, located on the main level, is designed as a true private retreat. Generously sized, it provides plenty of space for a king-sized bed and additional seating. The en-suite bathroom includes double vanities, a private bath layout, and a large walk-in closet, delivering the comfort and functionality expected in a luxury home. The suite’s placement offers privacy from the main living areas while remaining easily accessible.
Practical features are thoughtfully integrated throughout the design. The first-floor laundry room, with direct access from the garage, simplifies everyday routines and adds convenience to household flow. A centrally located powder room serves guests without intruding on the privacy of the primary suite.
One of the most valuable aspects of this plan is its walkout basement, which includes 1,972 square feet of finished space with 10-foot ceilings. This lower level dramatically expands the home’s potential, offering flexibility for future customization. Homeowners can easily transform this area into a recreation room, home theater, fitness space, guest accommodations, hobby rooms, or additional entertaining areas. The walkout design allows for natural light and direct access to the outdoors, making the basement feel like a true extension of the home rather than an afterthought.
Outdoor living is another standout feature of this design. With a combination of a covered front porch and a spacious rear deck, totaling 1,176 square feet of porch space, the home is well suited for those who enjoy spending time outdoors. These spaces are ideal for entertaining, relaxing, or simply enjoying scenic views and fresh air throughout the seasons.
Constructed with durable 2x6 wall framing, this home supports improved energy efficiency and long-term performance. The balanced 6:12 roof pitch enhances its classic ranch character while maintaining architectural integrity. With its expansive layout, luxurious primary suite, open-concept living spaces, and flexible walkout basement, this plan offers a unique opportunity to enjoy spacious, high-end living in a beautifully designed one-bedroom home.