Q7491-A
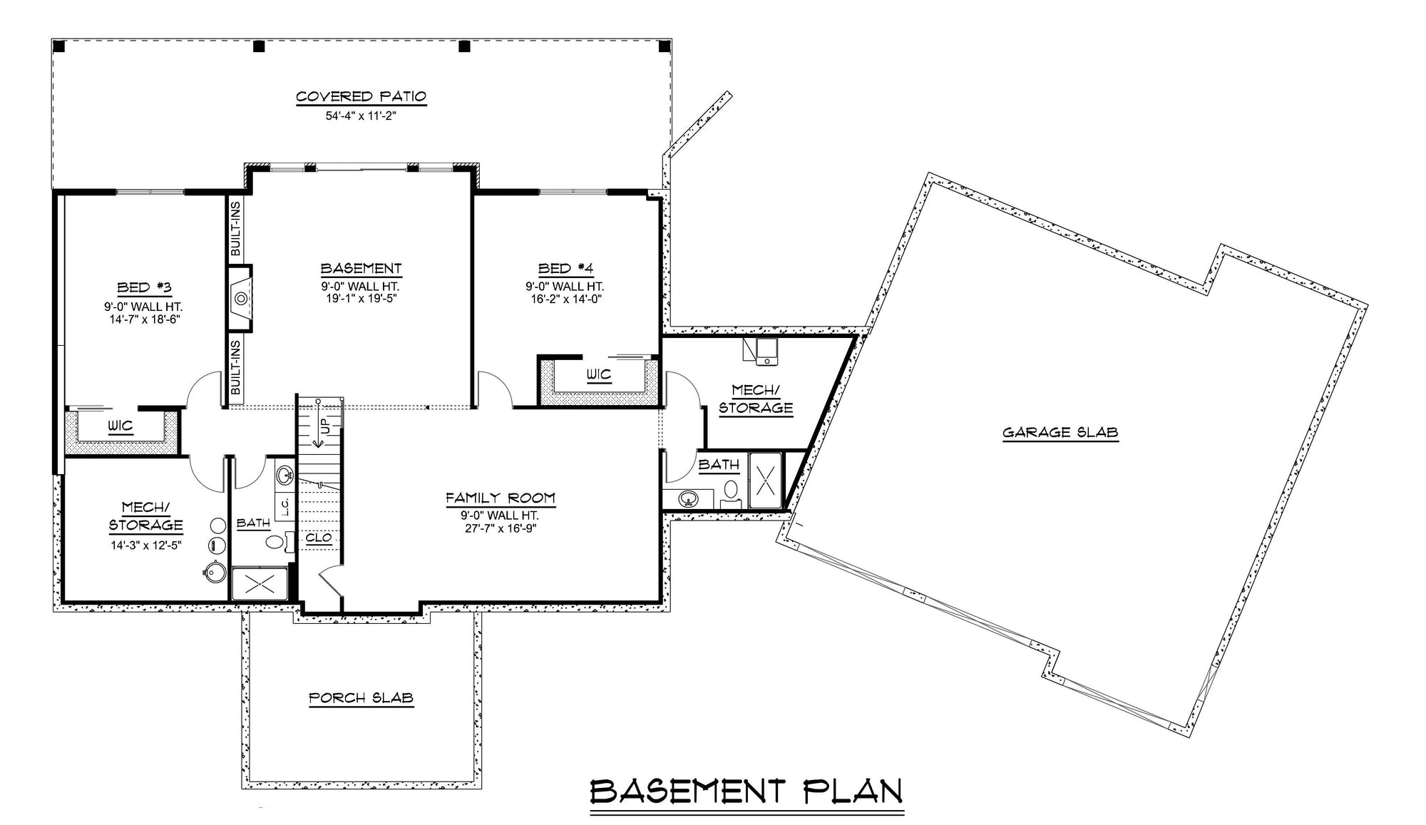
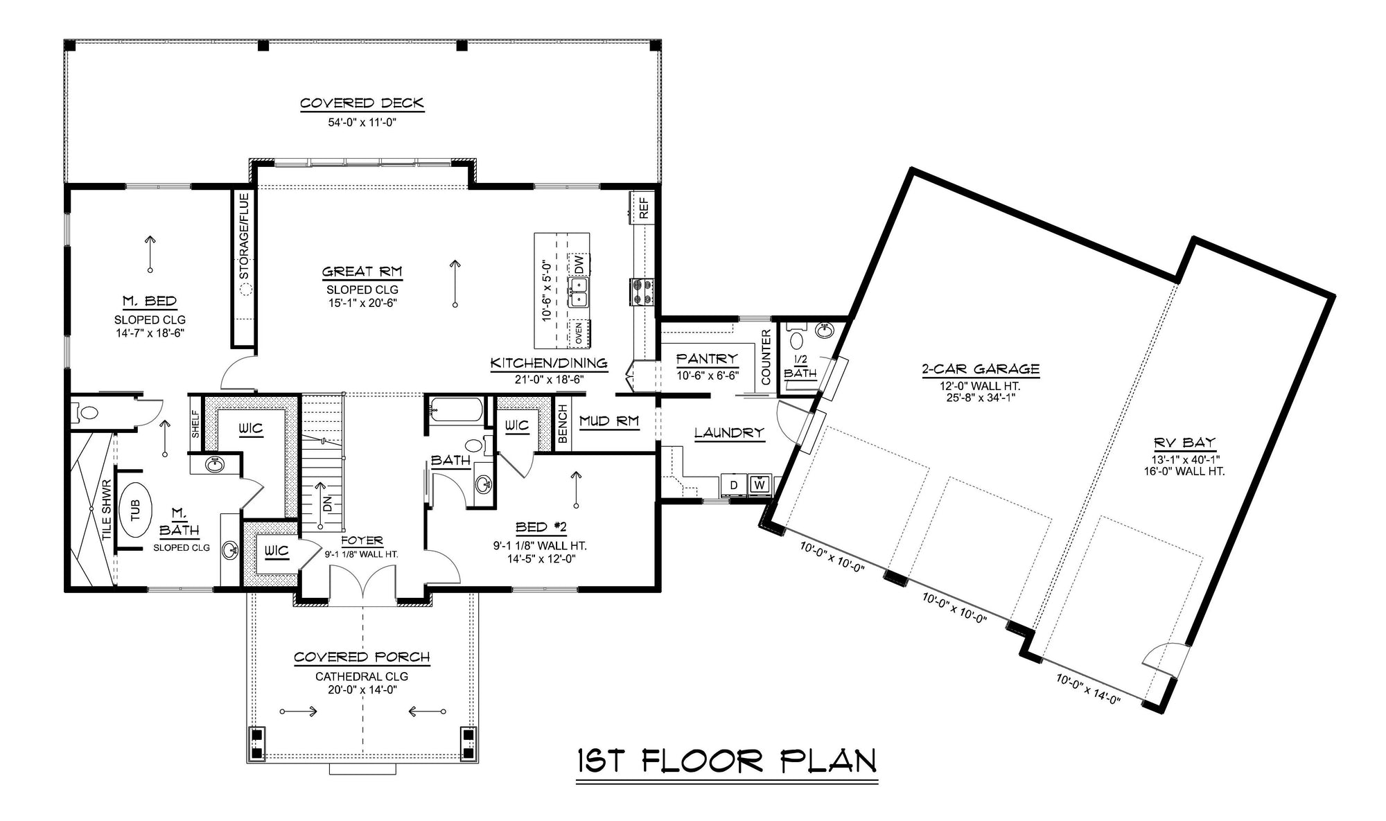
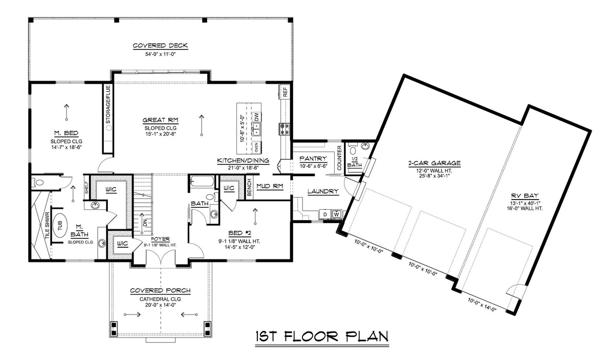
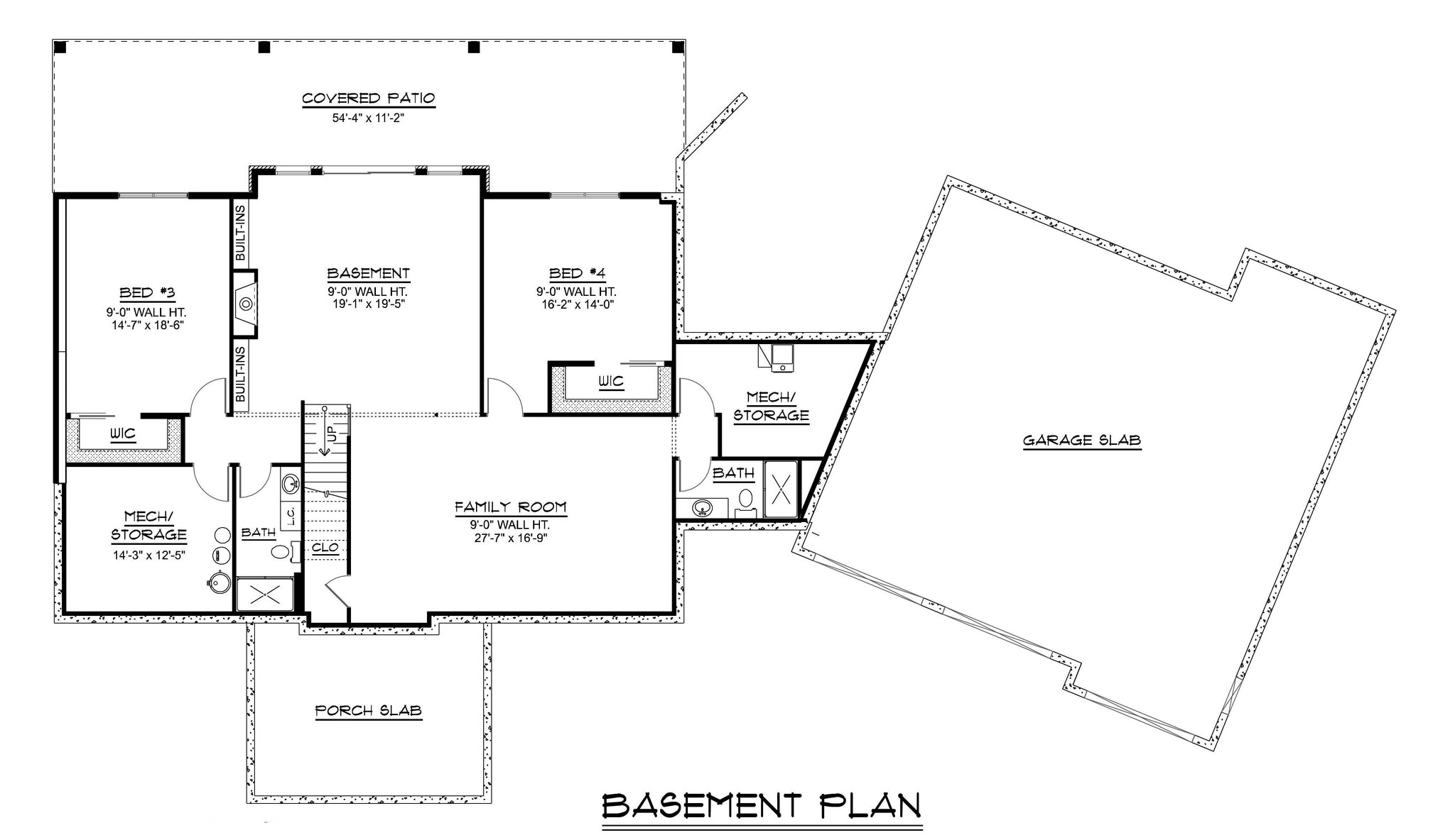
Designed for expansive views, effortless indoor-outdoor living, and modern functionality, this thoughtfully planned modern house offers a refined balance of simplicity, comfort, and long-term flexibility. With 2,288 square feet of heated living space on the main level and a full walkout basement below, the home is perfectly suited for sloping or scenic sites where light, access, and outdoor connection are essential.
The exterior presents a long, horizontal profile that complements contemporary landscapes and wide-open lots. A low 2:12 roof pitch reinforces the home’s clean-lined, modern aesthetic while maintaining cost-effective construction. Generous covered porches at the front and rear extend the living experience outdoors, providing shaded spaces for relaxation and entertaining. A large rear deck and patio combination further enhances the home’s connection to its surroundings, making it ideal for properties with views, wooded backdrops, or gentle elevation changes.
Stepping inside, the foyer opens into a bright and inviting great room that anchors the home’s open floor plan. Large windows and clear sightlines allow natural light to flow freely through the space, creating a calm, airy atmosphere that feels both welcoming and modern. A centrally located fireplace adds warmth and visual focus without disrupting the home’s clean, uncluttered layout.
The kitchen is designed for everyday efficiency and effortless entertaining. A spacious island with eating bar seating serves as the heart of the room, ideal for casual meals, conversation, or hosting guests. Nearby, the walk-in pantry provides ample storage while keeping countertops clean and organized. The open connection between the kitchen and great room allows the home to function as one cohesive living environment—perfect for both quiet evenings and lively gatherings.
The primary suite is privately positioned on the main level, offering a peaceful retreat away from secondary bedrooms. A sitting area within the suite provides flexibility for reading, relaxing, or creating a personal workspace. The ensuite bath features a double vanity, generous walk-in closet, and private layout designed to support daily routines with ease and comfort. Direct access to the laundry room enhances convenience, streamlining everyday living.
A split-bedroom arrangement ensures privacy for guests or family members, while a powder room adds functionality for visitors. The mud room and laundry area are conveniently located near the garage entry, creating an organized transition zone for busy households. With a three-car garage offering 1,476 square feet of space, there’s plenty of room for vehicles, storage, and outdoor equipment.
One of the home’s most compelling features is the full walkout basement, offering an additional 2,288 square feet of unfinished space. With nine-foot ceilings and exterior access, this level is primed for future expansion—whether envisioned as additional bedrooms, recreational space, a home gym, or guest accommodations. The walkout design allows the lower level to feel bright and connected rather than subterranean, adding significant long-term value.
This modern house plan is ideal for homeowners who want efficient main-level living today with the option to grow tomorrow. Its wide footprint, open interior, and seamless outdoor integration make it especially well-suited for scenic properties, hillside lots, or rural settings. Clean architectural lines, functional planning, and flexible spaces come together to create a home that adapts effortlessly to changing lifestyles while maintaining a timeless modern appeal.
Whether enjoyed as a refined retreat or expanded into a multi-level living environment, this design delivers comfort, clarity, and connection—hallmarks of modern living done right.




PDF (Single Build)
A complete set of working drawings delivered in digital PDF format. This option comes with a license to build ONE home and includes a copyright release for printing unlimited sets of plans and making modifications.
CAD + PDF (Single Build)
A complete set of working drawings delivered in digital DWG and PDF formats. AutoCAD files are used by design professionals to make significant modifications or engineering calculations to the plan. This option comes with a license to build ONE home and includes a copyright release for printing unlimited sets of plans and making modifications.
5 or 8 Prints (Single Build)
Five or eight printed sets of working drawings shipped to you. This option comes with a license to build ONE home.
5 Prints + PDF (Single Build)
Five printed sets of working drawings shipped to you, plus a digital version in PDF format. This option comes with a license to build ONE home and includes a copyright release for printing unlimited sets of plans and making modifications.
PDF (Multi Build)
A complete set of working drawings delivered in digital PDF format. This option comes with a license to build an UNLIMITED number of homes and includes a copyright release for printing unlimited sets of plans and making modifications. This option may not be available for all house plans, or may require a specific format to be purchased. Please call 770-831-6363 for more information.
CAD + PDF (Multi Build)
A complete set of working drawings delivered in digital DWG and PDF formats. AutoCAD files are used by design professionals to make significant modifications or engineering calculations to the plan. This option comes with a license to build an UNLIMITED number of homes and includes a copyright release for printing unlimited sets of plans and making modifications. This option may not be available for all house plans, or may require a specific format to be purchased. Please call 770-831-6363 for more information.
Choose a building foundation for your home. The foundation provides stability to a home's structure from the ground up.
Slab - This concrete foundation is reinforced with steel rods and suitable for flat ground.
Crawl Space - This foundation is raised off the ground with low walls resting on footings, providing space for wiring, plumbing, and storage.
Basement - This foundation is entirely or partially below ground and offers storage or living areas.
Walkout Basement - This foundation is typically suited for rear-sloping lots and provides storage or living areas. Walkout basements have doors that provide access to the outside.




The construction drawings will include detailed, dimensioned floor plans, exterior elevations, roof plan, foundation plan, basic electrical layout, cross-section(s), foundation plan, and other general specifications. Some plans will include interior cabinet layouts.
View Sample Plan
Archival Designs brings you over 40 years of experience in the house plan design business. We offer the best value for your money by offering the highest quality home designs.
We offer a 10% military & first responder discount, as well as builder discounts for life! Archival Designs guarantees the lowest prices anywhere online. Learn more about our Best Price Guarantee.
All house plans sold by Archival Designs have been designed to comply with the International Residential Code (IRC) and to the local codes in the area where the designer resides or where the house was built.
All house plans are designed to meet or exceed the national building standards required by the International Residential Code (IRC). Due to differences in climate and geography throughout North America, every city, local municipality and county has unique building codes and regulations that must be followed to obtain a building permit. Prior to purchasing a set of house plans, we recommend that you meet with your local building officials in order to determine the building requirements for your area. It is the responsibility of the purchaser(s) and/or builder to ensure that the structure is constructed to meet the codes of their local area.
Important Note:
House plans do not come stamped or signed by an architect or engineer. Additionally, house plans typically will not include structural engineering notes/calculations. Please check with your local building officials to determine if a stamp is required. If required, the building department will only accept a stamp from a licensed professional in the state where the home will be built.
Depending on your city, county, and state building requirements, house plans may need to be reviewed by a local licensed architect or engineer for structural details and code standards before construction begins. This is particularly true in coastal areas and those facing seismic events, extreme winds, and heavy snow. If you are building in any of these areas, a licensed structural engineer will likely be needed to provide the necessary calculations and additional drawings. We authorize the use of our plans conditioned on your obligation and agreement to strictly comply with all local building codes, ordinances, regulations, and requirements, including permits and inspections at the time of and during construction. We recommend checking with your local building department for the most current requirements. The purchaser(s) and/or builder are responsible for additional expenses incurred through meeting municipality requirements or other requirements for construction.
Our foundation plans have been designed for universal conditions and may need to be adjusted to fit your specific site conditions. The foundation should be modified by a local structural engineer to comply with soil testing laboratory findings and local building requirements.
Our house plans will include schematic electrical drawings; however, circuiting or wire sizing will not be included. Your electrical subcontractor will typically provide these drawings.
HVAC and plumbing drawings are not included. Your mechanical and plumbing subcontractors will determine the best layout for your site. Local HVAC codes, climatic requirements and commonly used systems vary throughout the country. The direction of how water flow will enter the home vary from case to case. For this reason, it is impossible to provide universal plans.

Designed for expansive views, effortless indoor-outdoor living, and modern functionality, this thoughtfully planned modern house offers a refined balance of simplicity, comfort, and long-term flexibility. With 2,288 square feet of heated living space on the main level and a full walkout basement below, the home is perfectly suited for sloping or scenic sites where light, access, and outdoor connection are essential.
The exterior presents a long, horizontal profile that complements contemporary landscapes and wide-open lots. A low 2:12 roof pitch reinforces the home’s clean-lined, modern aesthetic while maintaining cost-effective construction. Generous covered porches at the front and rear extend the living experience outdoors, providing shaded spaces for relaxation and entertaining. A large rear deck and patio combination further enhances the home’s connection to its surroundings, making it ideal for properties with views, wooded backdrops, or gentle elevation changes.
Stepping inside, the foyer opens into a bright and inviting great room that anchors the home’s open floor plan. Large windows and clear sightlines allow natural light to flow freely through the space, creating a calm, airy atmosphere that feels both welcoming and modern. A centrally located fireplace adds warmth and visual focus without disrupting the home’s clean, uncluttered layout.
The kitchen is designed for everyday efficiency and effortless entertaining. A spacious island with eating bar seating serves as the heart of the room, ideal for casual meals, conversation, or hosting guests. Nearby, the walk-in pantry provides ample storage while keeping countertops clean and organized. The open connection between the kitchen and great room allows the home to function as one cohesive living environment—perfect for both quiet evenings and lively gatherings.
The primary suite is privately positioned on the main level, offering a peaceful retreat away from secondary bedrooms. A sitting area within the suite provides flexibility for reading, relaxing, or creating a personal workspace. The ensuite bath features a double vanity, generous walk-in closet, and private layout designed to support daily routines with ease and comfort. Direct access to the laundry room enhances convenience, streamlining everyday living.
A split-bedroom arrangement ensures privacy for guests or family members, while a powder room adds functionality for visitors. The mud room and laundry area are conveniently located near the garage entry, creating an organized transition zone for busy households. With a three-car garage offering 1,476 square feet of space, there’s plenty of room for vehicles, storage, and outdoor equipment.
One of the home’s most compelling features is the full walkout basement, offering an additional 2,288 square feet of unfinished space. With nine-foot ceilings and exterior access, this level is primed for future expansion—whether envisioned as additional bedrooms, recreational space, a home gym, or guest accommodations. The walkout design allows the lower level to feel bright and connected rather than subterranean, adding significant long-term value.
This modern house plan is ideal for homeowners who want efficient main-level living today with the option to grow tomorrow. Its wide footprint, open interior, and seamless outdoor integration make it especially well-suited for scenic properties, hillside lots, or rural settings. Clean architectural lines, functional planning, and flexible spaces come together to create a home that adapts effortlessly to changing lifestyles while maintaining a timeless modern appeal.
Whether enjoyed as a refined retreat or expanded into a multi-level living environment, this design delivers comfort, clarity, and connection—hallmarks of modern living done right.