Be the King and Queen of Your Historic & Proper Estate.
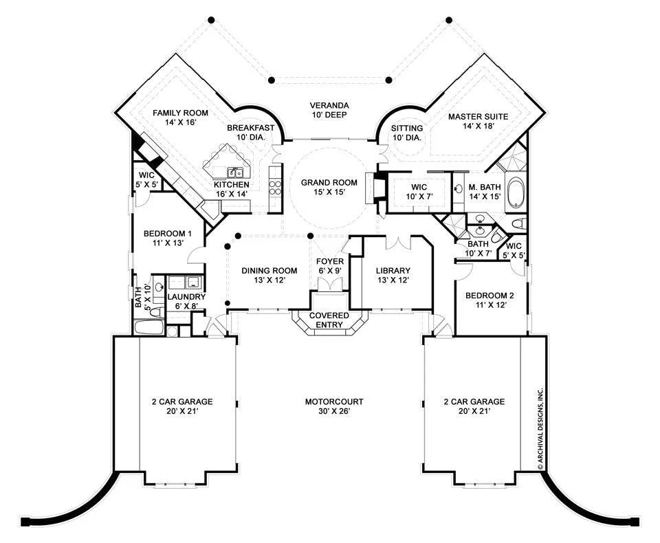
The Dalmany House Plan will be a stunning addition within any gated community, new or previously established development. A turreted entry at the front of this home sets the tone for European-inspired stateliness. With a motor court in front and two double-capacity garages at either end, vehicular traffic will always be well accommodated. This home has a multitude of inviting characteristics embellished with many extras, making it a plush & upscale Historic Ranch Home Plan. Imagine the Stately Ranch Home of your dreams, placed strategically among the greens, within a grand Country Club.
Your new Home will enable you to set your European Home Plan apart from others, with its commanding presence. Your landscape is properly set; all that is missing is your Stately Home Plan, which awaits your personal touches. This European Ranch Style Home invites you inward through Double doors which open to the foyer, beneath a magnificently carved ceiling design.
A Formal and Grand Dining Room opens up to the left, with ornate columns spotted along the perimeter of the room. Hidden from view there is a warm library to the right.
As we move around the European Designed Home to the Left of the Formal Dining Room; we encounter a full-sized Laundry Room neatly tucked away. It is directly located beside the first Garage.
Slowly waltzing on around the Dalmany House Plan we brush by Bedroom number one.
In our guided movement on around, we find ourselves in the hub of this European Estate Home Plan. The Family Room is adorned with a classical trey ceiling. In addition, it is home to a large roaring fireplace; for family coziness. The Breakfast Area is oval-shaped allowing everyone to be brought inward to the heart of the rooms. The Chef-inspired Kitchen is the centerpiece of this classic hub of any Home. The Kitchen displays an oversized gourmet work Island, which holds six comfortably. Most importantly the preparer of meals can constantly be included in all the activities taking place.
From here we are whisked into The Grand Room, as it calls out to family members and guests a like “welcome” to the center of our home. The Room itself features 12- foot ceilings, and an ornate oversized Fireplace for ambiance while playing host to an unrivaled view of the graciously shaped Veranda. Light floods the room, making all the small architectural extras evident. Closing your eyes you can imagine Holidays & special events being made glorious.
This European Home Style Estate was designed to reserve and lavish you in almost the entire right side of your home. Colossal in size the Master Suite is able to contain many special amenities. The Home Style Design was made to allow the Master Suite itself to hold your bed comfortably, while adding a quiet and personal Sitting Area. Your Choices are numerous for your personal placement. The Master Suite is Bright and has a perfect view of the activities taking place outside on the lawn or on your expansive Veranda. In addition to the Master Bed Room itself there are several eloquent visuals.
From the Master Suite we are mindful of an additional guest Bedroom with a large walk-in closet. This room is situated next to the second of the two Garages.
The Dalmany European Ranch House Plan sets Archival Design, Inc. apart as one of only a few architectural firms with a plan so popular it has been given the honor of “Gold Status”.



PDF (Single Build)
A complete set of working drawings delivered in digital PDF format. This option comes with a license to build ONE home and includes a copyright release for printing unlimited sets of plans and making modifications.
CAD + PDF (Single Build)
A complete set of working drawings delivered in digital DWG and PDF formats. AutoCAD files are used by design professionals to make significant modifications or engineering calculations to the plan. This option comes with a license to build ONE home and includes a copyright release for printing unlimited sets of plans and making modifications.
5 or 8 Prints (Single Build)
Five or eight printed sets of working drawings shipped to you. This option comes with a license to build ONE home.
5 Prints + PDF (Single Build)
Five printed sets of working drawings shipped to you, plus a digital version in PDF format. This option comes with a license to build ONE home and includes a copyright release for printing unlimited sets of plans and making modifications.
PDF (Multi Build)
A complete set of working drawings delivered in digital PDF format. This option comes with a license to build an UNLIMITED number of homes and includes a copyright release for printing unlimited sets of plans and making modifications. This option may not be available for all house plans, or may require a specific format to be purchased. Please call 770-831-6363 for more information.
CAD + PDF (Multi Build)
A complete set of working drawings delivered in digital DWG and PDF formats. AutoCAD files are used by design professionals to make significant modifications or engineering calculations to the plan. This option comes with a license to build an UNLIMITED number of homes and includes a copyright release for printing unlimited sets of plans and making modifications. This option may not be available for all house plans, or may require a specific format to be purchased. Please call 770-831-6363 for more information.
Choose a building foundation for your home. The foundation provides stability to a home's structure from the ground up.
Slab - This concrete foundation is reinforced with steel rods and suitable for flat ground.
Crawl Space - This foundation is raised off the ground with low walls resting on footings, providing space for wiring, plumbing, and storage.
Basement - This foundation is entirely or partially below ground and offers storage or living areas.
Walkout Basement - This foundation is typically suited for rear-sloping lots and provides storage or living areas. Walkout basements have doors that provide access to the outside.




The construction drawings will include detailed, dimensioned floor plans, exterior elevations, roof plan, foundation plan, basic electrical layout, cross-section(s), foundation plan, and other general specifications. Some plans will include interior cabinet layouts.
View Sample Plan
Archival Designs brings you over 40 years of experience in the house plan design business. We offer the best value for your money by offering the highest quality home designs.
We offer a 10% military & first responder discount, as well as builder discounts for life! Archival Designs guarantees the lowest prices anywhere online. Learn more about our Best Price Guarantee.
All house plans sold by Archival Designs have been designed to comply with the International Residential Code (IRC) and to the local codes in the area where the designer resides or where the house was built.
All house plans are designed to meet or exceed the national building standards required by the International Residential Code (IRC). Due to differences in climate and geography throughout North America, every city, local municipality and county has unique building codes and regulations that must be followed to obtain a building permit. Prior to purchasing a set of house plans, we recommend that you meet with your local building officials in order to determine the building requirements for your area. It is the responsibility of the purchaser(s) and/or builder to ensure that the structure is constructed to meet the codes of their local area.
Important Note:
House plans do not come stamped or signed by an architect or engineer. Additionally, house plans typically will not include structural engineering notes/calculations. Please check with your local building officials to determine if a stamp is required. If required, the building department will only accept a stamp from a licensed professional in the state where the home will be built.
Depending on your city, county, and state building requirements, house plans may need to be reviewed by a local licensed architect or engineer for structural details and code standards before construction begins. This is particularly true in coastal areas and those facing seismic events, extreme winds, and heavy snow. If you are building in any of these areas, a licensed structural engineer will likely be needed to provide the necessary calculations and additional drawings. We authorize the use of our plans conditioned on your obligation and agreement to strictly comply with all local building codes, ordinances, regulations, and requirements, including permits and inspections at the time of and during construction. We recommend checking with your local building department for the most current requirements. The purchaser(s) and/or builder are responsible for additional expenses incurred through meeting municipality requirements or other requirements for construction.
Our foundation plans have been designed for universal conditions and may need to be adjusted to fit your specific site conditions. The foundation should be modified by a local structural engineer to comply with soil testing laboratory findings and local building requirements.
Our house plans will include schematic electrical drawings; however, circuiting or wire sizing will not be included. Your electrical subcontractor will typically provide these drawings.
HVAC and plumbing drawings are not included. Your mechanical and plumbing subcontractors will determine the best layout for your site. Local HVAC codes, climatic requirements and commonly used systems vary throughout the country. The direction of how water flow will enter the home vary from case to case. For this reason, it is impossible to provide universal plans.

Be the King and Queen of Your Historic & Proper Estate.
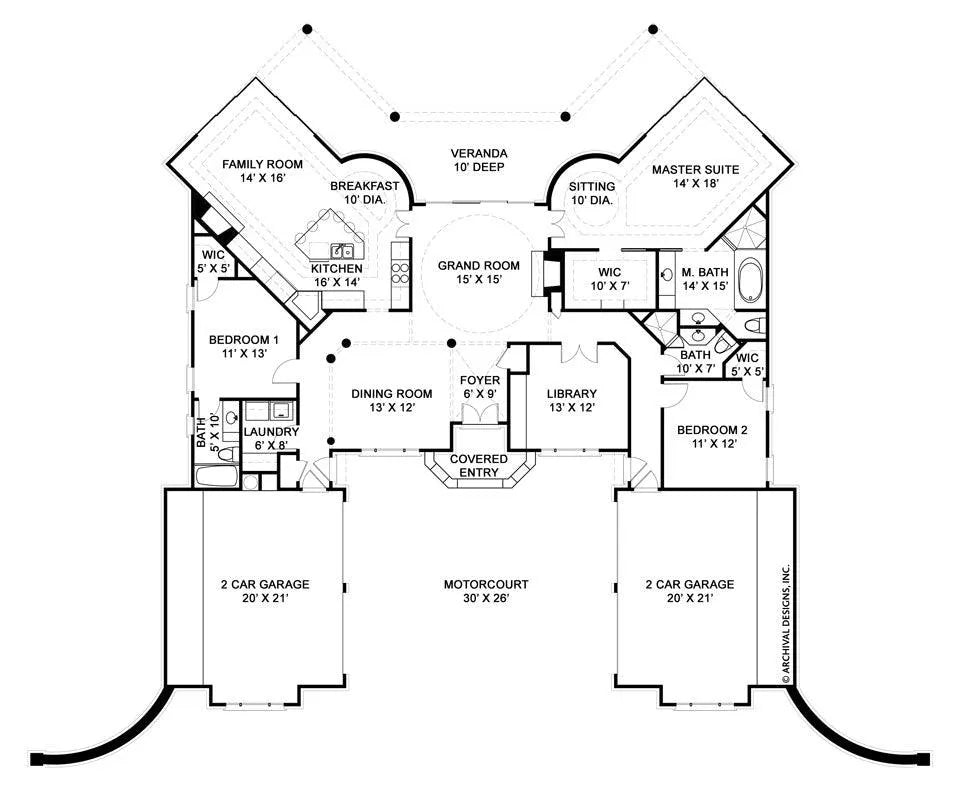
The Dalmany House Plan will be a stunning addition within any gated community, new or previously established development. A turreted entry at the front of this home sets the tone for European-inspired stateliness. With a motor court in front and two double-capacity garages at either end, vehicular traffic will always be well accommodated. This home has a multitude of inviting characteristics embellished with many extras, making it a plush & upscale Historic Ranch Home Plan. Imagine the Stately Ranch Home of your dreams, placed strategically among the greens, within a grand Country Club.
Your new Home will enable you to set your European Home Plan apart from others, with its commanding presence. Your landscape is properly set; all that is missing is your Stately Home Plan, which awaits your personal touches. This European Ranch Style Home invites you inward through Double doors which open to the foyer, beneath a magnificently carved ceiling design.
A Formal and Grand Dining Room opens up to the left, with ornate columns spotted along the perimeter of the room. Hidden from view there is a warm library to the right.
As we move around the European Designed Home to the Left of the Formal Dining Room; we encounter a full-sized Laundry Room neatly tucked away. It is directly located beside the first Garage.
Slowly waltzing on around the Dalmany House Plan we brush by Bedroom number one.
In our guided movement on around, we find ourselves in the hub of this European Estate Home Plan. The Family Room is adorned with a classical trey ceiling. In addition, it is home to a large roaring fireplace; for family coziness. The Breakfast Area is oval-shaped allowing everyone to be brought inward to the heart of the rooms. The Chef-inspired Kitchen is the centerpiece of this classic hub of any Home. The Kitchen displays an oversized gourmet work Island, which holds six comfortably. Most importantly the preparer of meals can constantly be included in all the activities taking place.
From here we are whisked into The Grand Room, as it calls out to family members and guests a like “welcome” to the center of our home. The Room itself features 12- foot ceilings, and an ornate oversized Fireplace for ambiance while playing host to an unrivaled view of the graciously shaped Veranda. Light floods the room, making all the small architectural extras evident. Closing your eyes you can imagine Holidays & special events being made glorious.
This European Home Style Estate was designed to reserve and lavish you in almost the entire right side of your home. Colossal in size the Master Suite is able to contain many special amenities. The Home Style Design was made to allow the Master Suite itself to hold your bed comfortably, while adding a quiet and personal Sitting Area. Your Choices are numerous for your personal placement. The Master Suite is Bright and has a perfect view of the activities taking place outside on the lawn or on your expansive Veranda. In addition to the Master Bed Room itself there are several eloquent visuals.
From the Master Suite we are mindful of an additional guest Bedroom with a large walk-in closet. This room is situated next to the second of the two Garages.
The Dalmany European Ranch House Plan sets Archival Design, Inc. apart as one of only a few architectural firms with a plan so popular it has been given the honor of “Gold Status”.
