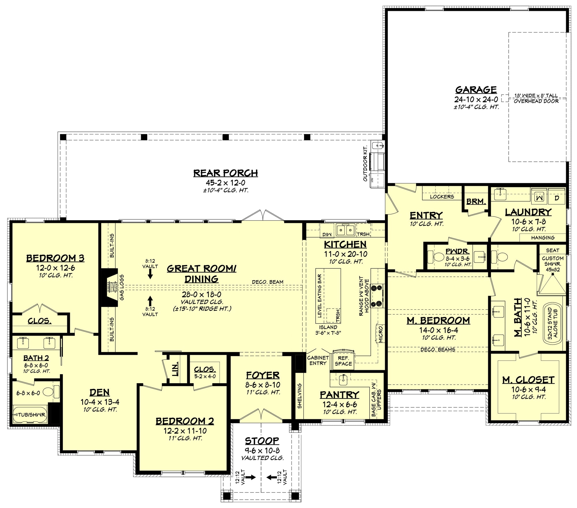
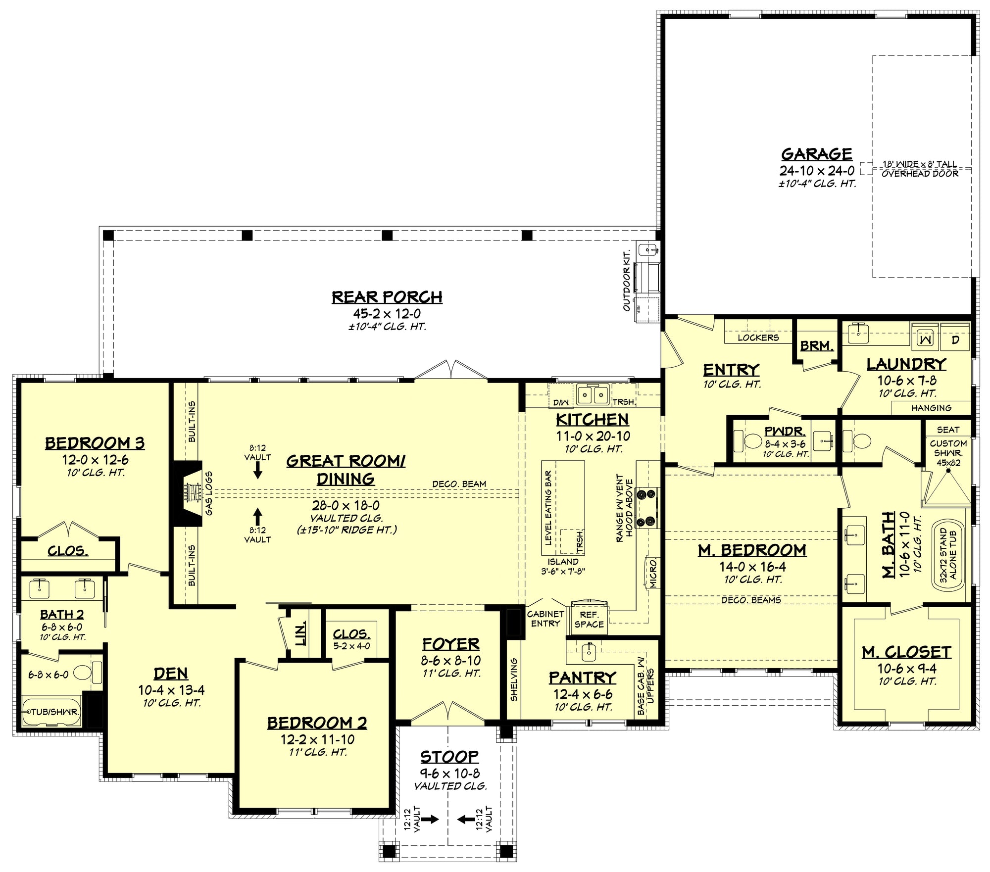
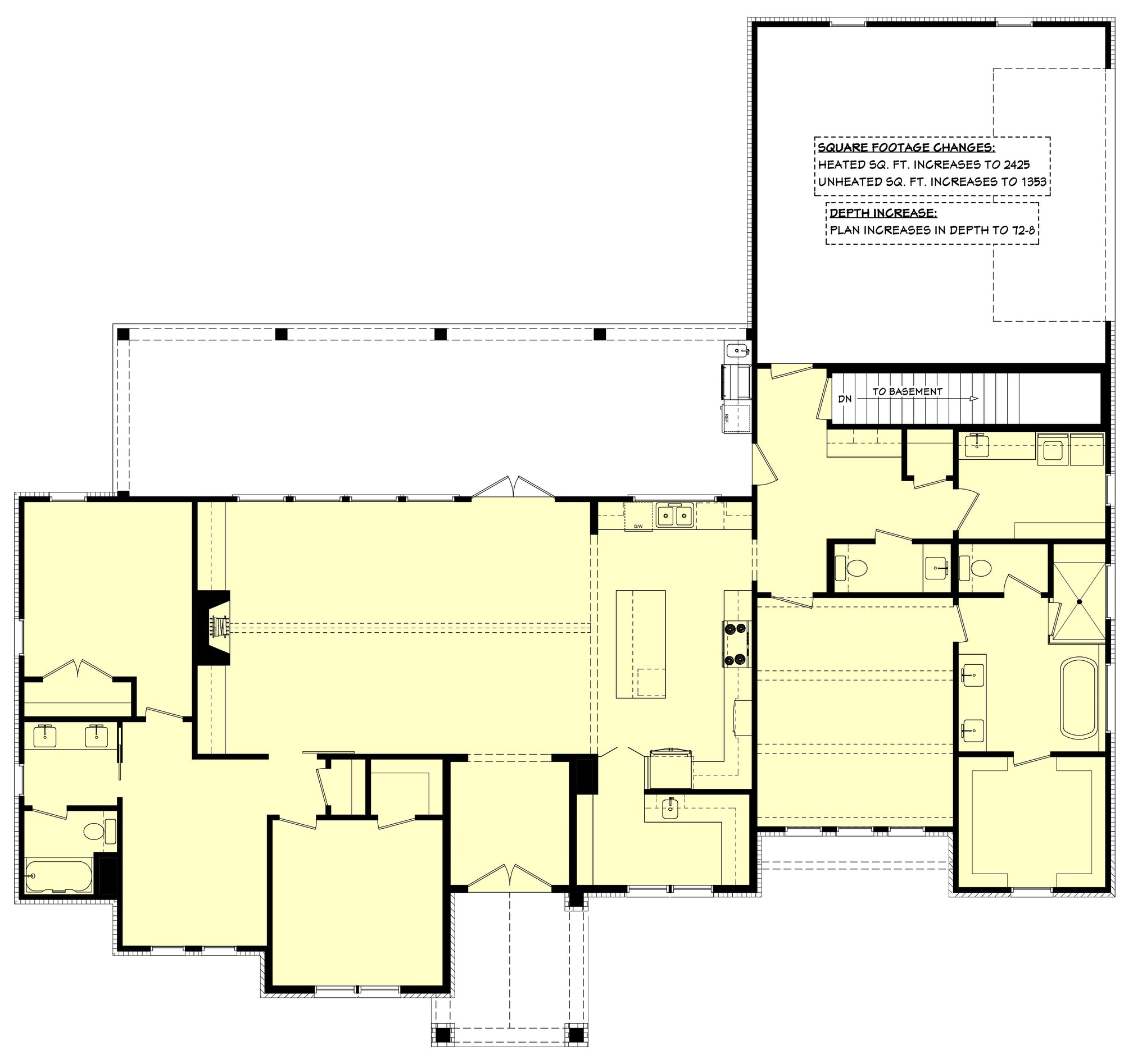
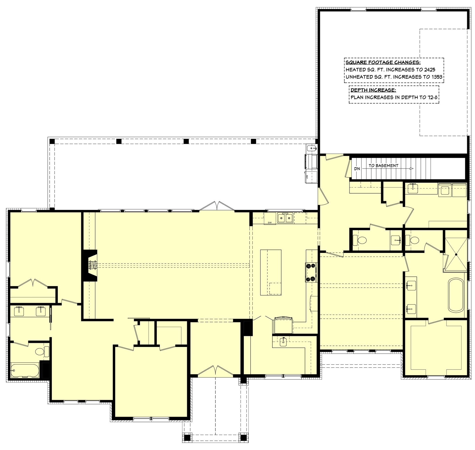
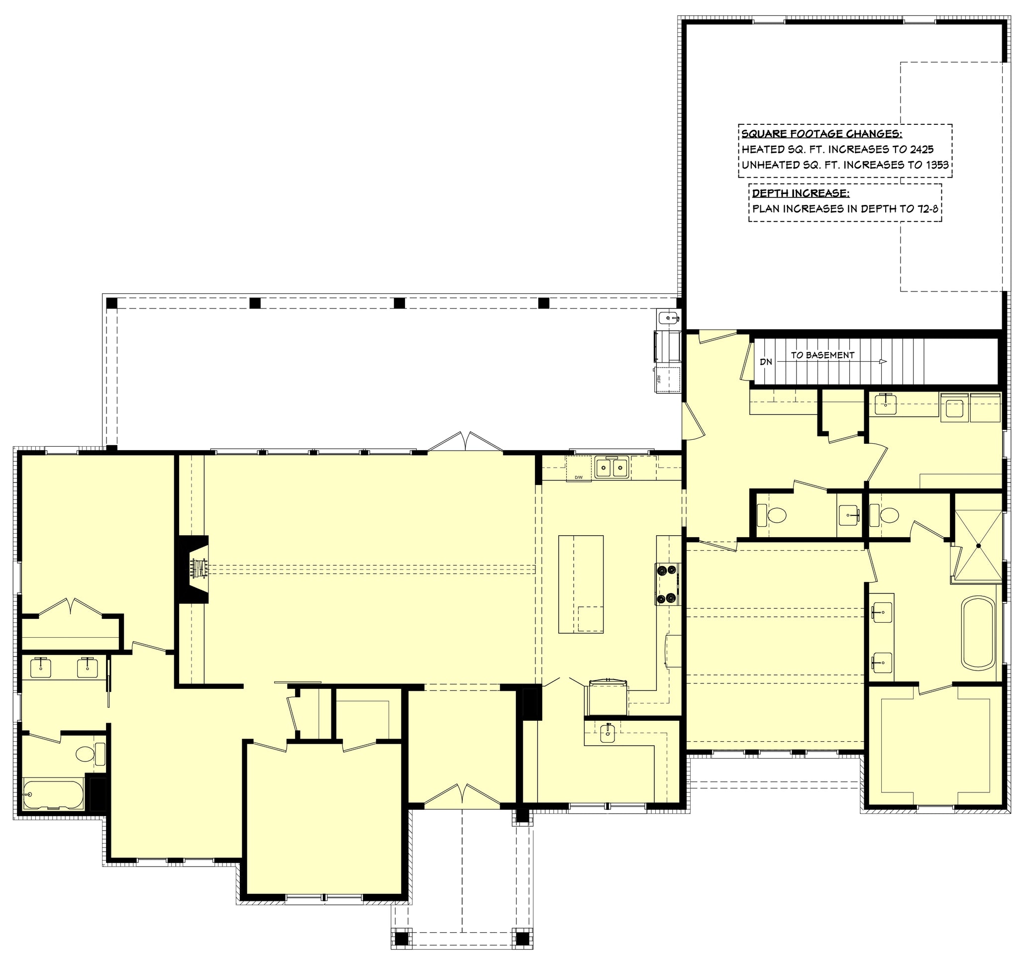
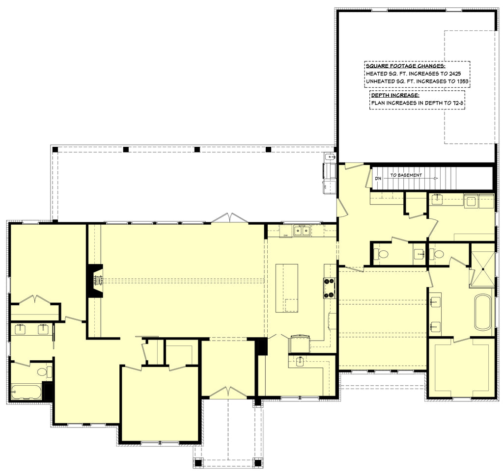
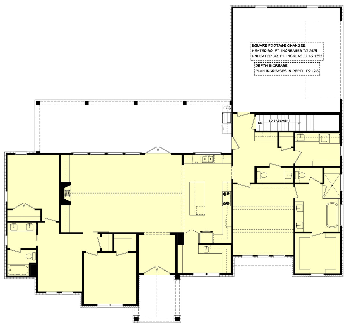
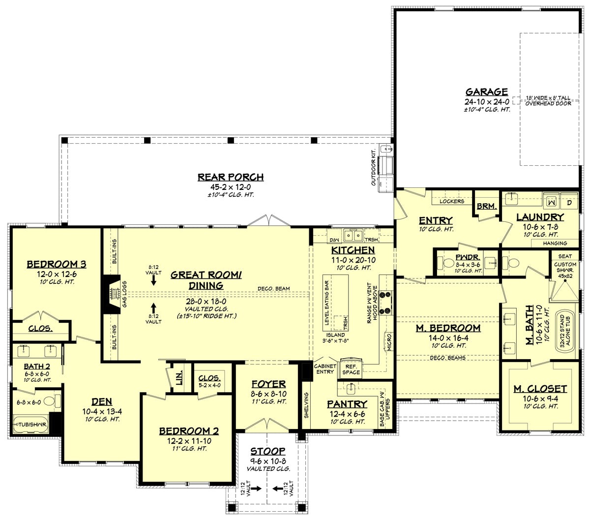
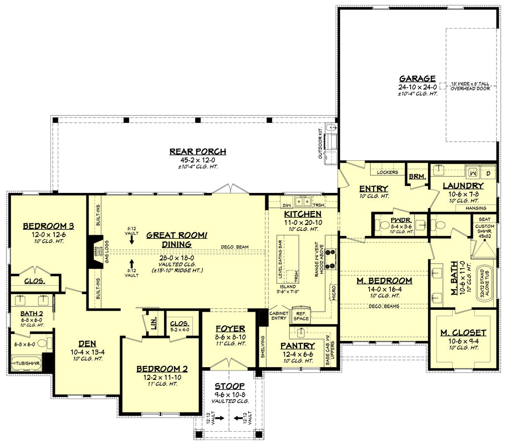
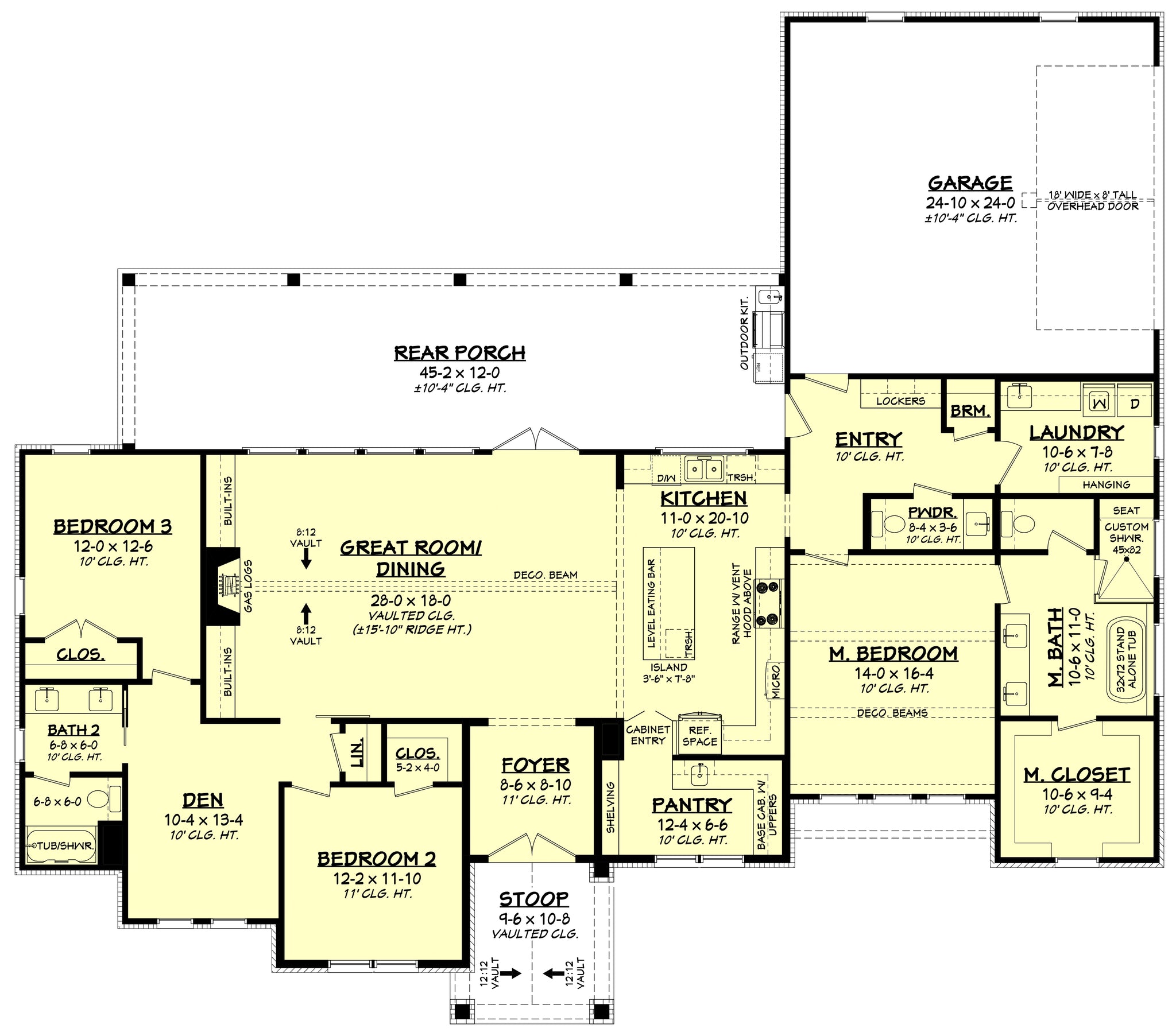
This 2,400 sq. ft. modern farmhouse blends classic country charm with modern sophistication, offering the perfect mix of comfort, style, and functionality. The open-concept floor plan seamlessly connects the great room, dining area, and kitchen, creating a bright and welcoming atmosphere ideal for family gatherings. A vaulted ceiling and fireplace add warmth and character, while the large kitchen island and walk-in pantry make daily living effortless.
The spacious master suite features a double-vanity bath and walk-in closet, while two additional bedrooms and a den provide flexible living spaces for guests or work-from-home needs. Outdoor living shines with a covered rear porch and built-in outdoor kitchen, perfect for entertaining year-round. With 10-foot ceilings, a side-load garage, and beautiful farmhouse detailing, this home offers timeless appeal and modern comfort for today’s lifestyle.








