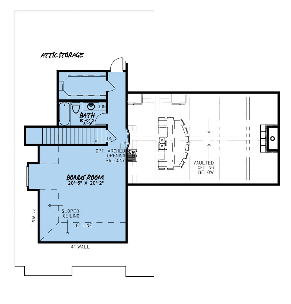
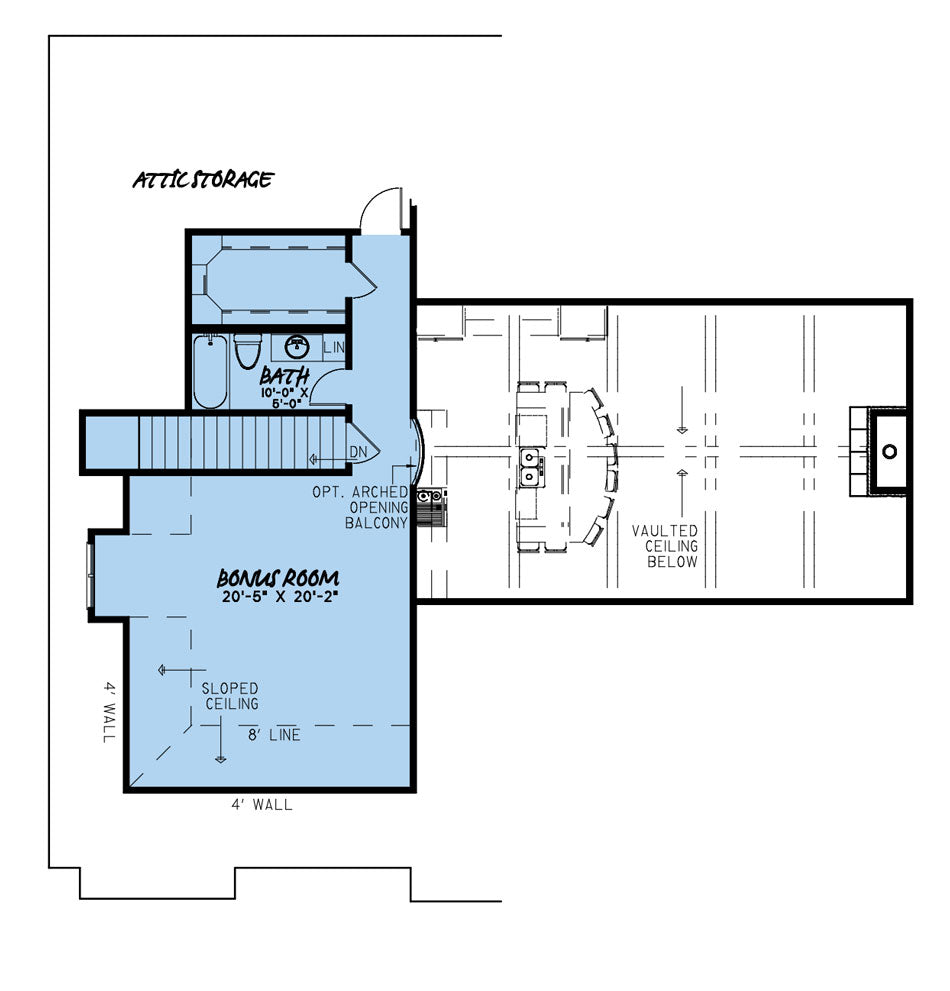
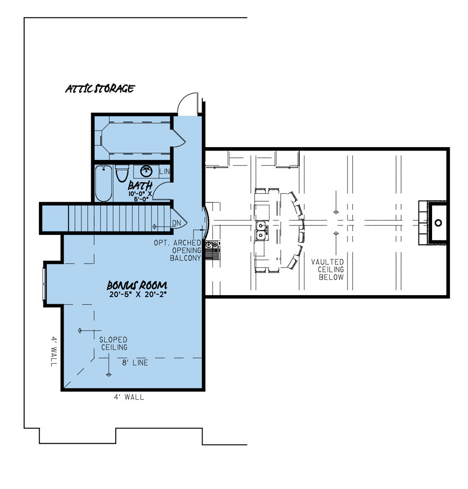
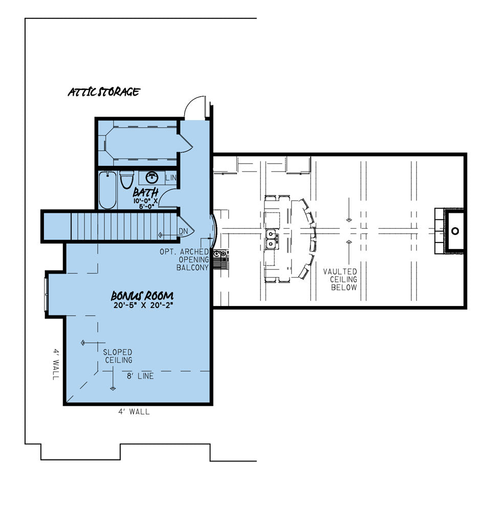
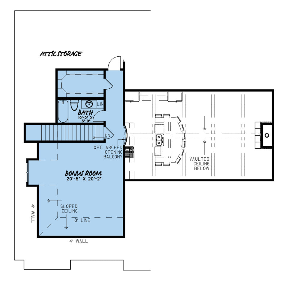
Step into timeless charm and modern comfort with this 4-bedroom, 3.5-bathroom home, featuring a spacious 2,537 sq ft of heated living space all on one level, plus a 602 sq ft bonus room perfect for a playroom, gym, or guest suite. The open floor plan seamlessly connects the great room, formal dining area, and chef-inspired kitchen complete with an island, eating bar, and walk-in pantry. The master suite is privately tucked away, boasting a spa-like bathroom and walk-in closet, while the split-bedroom layout ensures privacy for family or guests. Vaulted and volume ceilings throughout the home add an airy, luxurious feel.
Outdoor living shines with a covered front porch, back porch, and a grilling terrace ideal for entertaining year-round. A side-loading two-car garage (658 sq ft) enhances curb appeal, while the home office/study offers the perfect space for remote work. With a 12:12 roof pitch, 33-foot building height, and 2x4 wall framing on a slab or crawl foundation, this home blends classic architectural details with modern-day functionality. Whether you’re hosting, relaxing, or working from home, this plan delivers the perfect mix of comfort, elegance, and practicality.








