This 1,976 sq ft craftsman-style house plan blends traditional charm with modern functionality. The inviting covered front porch welcomes you into a bright and airy open floor plan, perfect for entertaining or everyday comfort.
The first-floor master suite offers a private bath with double vanity sinks and a spacious walk-in closet, creating a peaceful retreat. The kitchen island opens to the keeping/family room and breakfast area, enhancing the home’s easy flow.
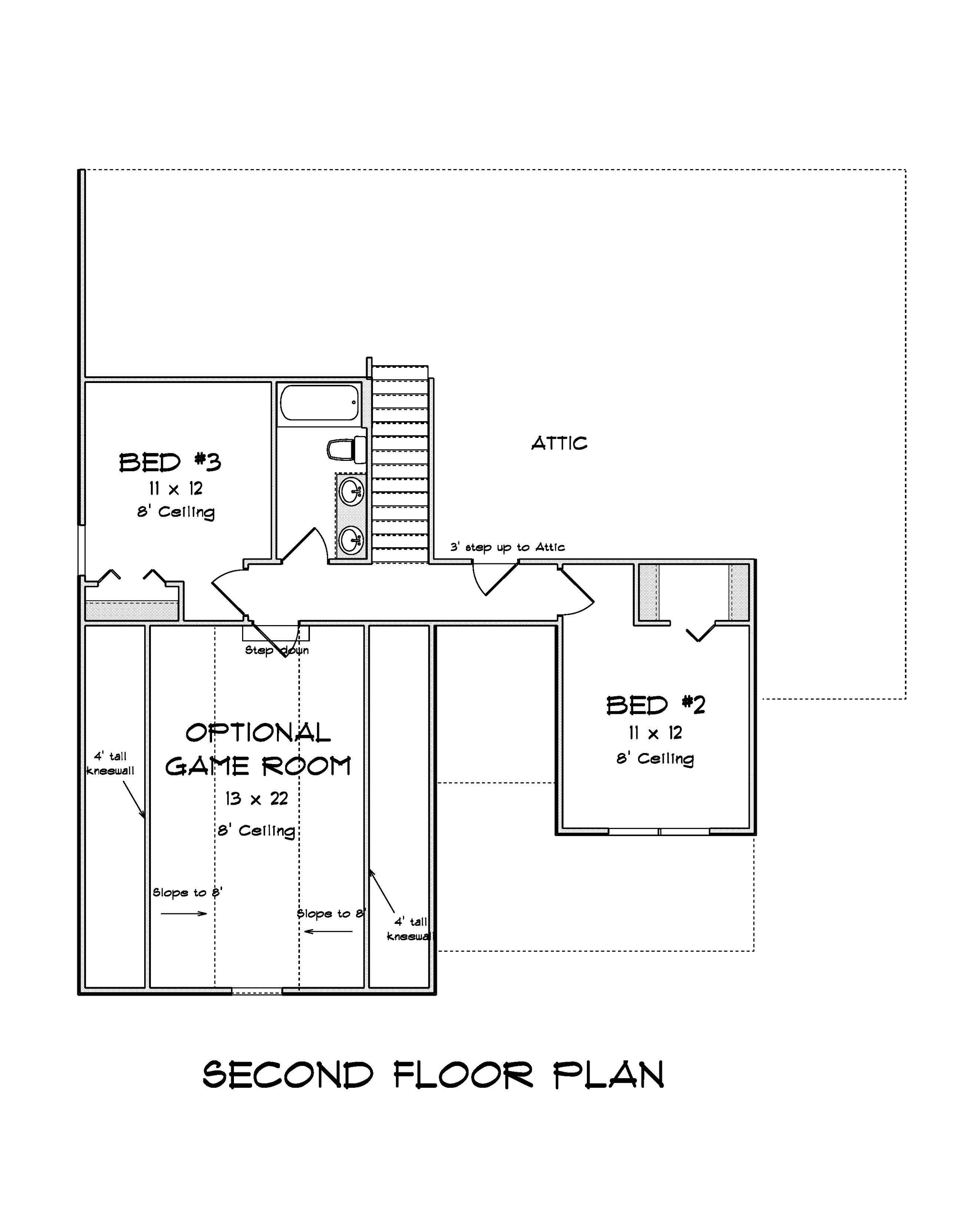
Upstairs, a bonus room and attic space add flexibility—ideal for a home office, playroom, or guest suite. Additional highlights include first-floor laundry, covered rear porch, and vaulted ceilings for added volume and light.
This home’s craftsman details, balanced rooflines, and cozy porches make it perfect for families seeking timeless style with modern conveniences.








