L7919-A
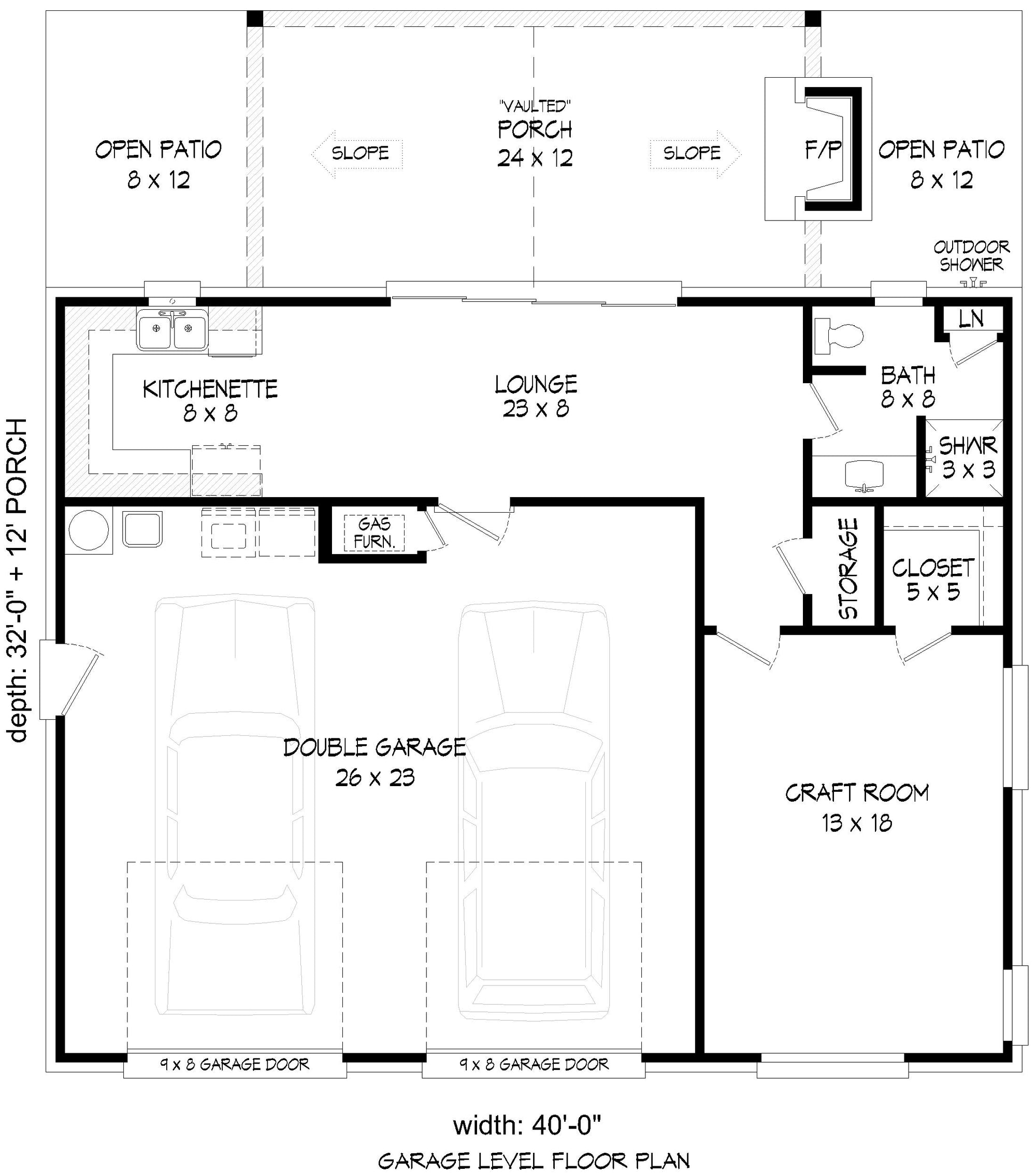
This beautifully designed southern garage house plan combines practical workspace, generous garage storage, and comfortable living quarters in one efficient structure. With 699 square feet of heated living space and a spacious two-car garage, this versatile design works perfectly as a guest house, craft room, backyard apartment, or recreational retreat.
Blending southern charm with functional design, the plan also features inviting outdoor living spaces that encourage relaxation and entertaining.
The heart of this design is its 642-square-foot front-load garage, providing ample room for two vehicles while still leaving space for tools and equipment. With 9-foot garage ceiling height, the garage feels open and accommodating for larger vehicles or additional storage needs.
A dedicated craft room adds tremendous value to the structure. This workspace is ideal for woodworking, DIY projects, mechanical repairs, or hobby activities. Homeowners who enjoy hands-on projects will appreciate the flexibility and convenience this space offers.
Above or adjacent to the garage area is a 699-square-foot living space designed for comfort and efficiency. The layout includes a cozy living area, kitchen space, and a full bathroom, making it fully functional for short or long-term stays.
The design also features a walk-in closet, offering generous storage for clothing and personal belongings. This thoughtful addition helps keep the living space organized and clutter-free.
Because of its compact yet complete layout, the living area works well as a guest suite, rental unit, or private studio residence.
One of the standout features of this southern-style design is the generous 278-square-foot covered rear porch. This space extends the living area outdoors and provides the perfect setting for relaxing, dining, or entertaining guests.
The porch includes an outdoor fireplace, which creates a warm and inviting atmosphere during cooler evenings. Whether enjoying quiet nights by the fire or hosting friends and family gatherings, this outdoor feature adds both comfort and charm.
A connected patio area further expands the outdoor entertainment possibilities, making the home ideal for southern climates where outdoor living is part of everyday life.
With a total structure size of 1,619 square feet, this home makes efficient use of space while providing both practical and recreational features.
The structure measures 40 feet wide and 44 feet deep, allowing it to fit comfortably on a variety of lot sizes. A 4:12 roof pitch creates a clean, low-profile roofline that complements the relaxed style of southern architecture.
Built with 2x4 wall framing and a durable slab foundation, the design offers a straightforward and cost-effective building approach.
At 15 feet 2 inches in building height, the structure maintains a balanced and approachable scale while still providing plenty of interior room for garage and living areas.
The combination of garage space, living quarters, and outdoor entertainment areas makes this plan especially appealing for homeowners who want both functionality and comfort.
With its inviting porch, outdoor fireplace, spacious garage, and flexible living area, this southern garage house plan delivers the perfect balance of practicality and charm. Whether used as a secondary dwelling or a personal workspace retreat, the design offers a welcoming and efficient solution for modern lifestyles.



PDF (Single Build)
A complete set of working drawings delivered in digital PDF format. This option comes with a license to build ONE home and includes a copyright release for printing unlimited sets of plans and making modifications.
CAD + PDF (Single Build)
A complete set of working drawings delivered in digital DWG and PDF formats. AutoCAD files are used by design professionals to make significant modifications or engineering calculations to the plan. This option comes with a license to build ONE home and includes a copyright release for printing unlimited sets of plans and making modifications.
5 or 8 Prints (Single Build)
Five or eight printed sets of working drawings shipped to you. This option comes with a license to build ONE home.
5 Prints + PDF (Single Build)
Five printed sets of working drawings shipped to you, plus a digital version in PDF format. This option comes with a license to build ONE home and includes a copyright release for printing unlimited sets of plans and making modifications.
PDF (Multi Build)
A complete set of working drawings delivered in digital PDF format. This option comes with a license to build an UNLIMITED number of homes and includes a copyright release for printing unlimited sets of plans and making modifications. This option may not be available for all house plans, or may require a specific format to be purchased. Please call 770-831-6363 for more information.
CAD + PDF (Multi Build)
A complete set of working drawings delivered in digital DWG and PDF formats. AutoCAD files are used by design professionals to make significant modifications or engineering calculations to the plan. This option comes with a license to build an UNLIMITED number of homes and includes a copyright release for printing unlimited sets of plans and making modifications. This option may not be available for all house plans, or may require a specific format to be purchased. Please call 770-831-6363 for more information.
Choose a building foundation for your home. The foundation provides stability to a home's structure from the ground up.
Slab - This concrete foundation is reinforced with steel rods and suitable for flat ground.
Crawl Space - This foundation is raised off the ground with low walls resting on footings, providing space for wiring, plumbing, and storage.
Basement - This foundation is entirely or partially below ground and offers storage or living areas.
Walkout Basement - This foundation is typically suited for rear-sloping lots and provides storage or living areas. Walkout basements have doors that provide access to the outside.




The construction drawings will include detailed, dimensioned floor plans, exterior elevations, roof plan, foundation plan, basic electrical layout, cross-section(s), foundation plan, and other general specifications. Some plans will include interior cabinet layouts.
View Sample Plan
Archival Designs brings you over 40 years of experience in the house plan design business. We offer the best value for your money by offering the highest quality home designs.
We offer a 10% military & first responder discount, as well as builder discounts for life! Archival Designs guarantees the lowest prices anywhere online. Learn more about our Best Price Guarantee.
All house plans sold by Archival Designs have been designed to comply with the International Residential Code (IRC) and to the local codes in the area where the designer resides or where the house was built.
All house plans are designed to meet or exceed the national building standards required by the International Residential Code (IRC). Due to differences in climate and geography throughout North America, every city, local municipality and county has unique building codes and regulations that must be followed to obtain a building permit. Prior to purchasing a set of house plans, we recommend that you meet with your local building officials in order to determine the building requirements for your area. It is the responsibility of the purchaser(s) and/or builder to ensure that the structure is constructed to meet the codes of their local area.
Important Note:
House plans do not come stamped or signed by an architect or engineer. Additionally, house plans typically will not include structural engineering notes/calculations. Please check with your local building officials to determine if a stamp is required. If required, the building department will only accept a stamp from a licensed professional in the state where the home will be built.
Depending on your city, county, and state building requirements, house plans may need to be reviewed by a local licensed architect or engineer for structural details and code standards before construction begins. This is particularly true in coastal areas and those facing seismic events, extreme winds, and heavy snow. If you are building in any of these areas, a licensed structural engineer will likely be needed to provide the necessary calculations and additional drawings. We authorize the use of our plans conditioned on your obligation and agreement to strictly comply with all local building codes, ordinances, regulations, and requirements, including permits and inspections at the time of and during construction. We recommend checking with your local building department for the most current requirements. The purchaser(s) and/or builder are responsible for additional expenses incurred through meeting municipality requirements or other requirements for construction.
Our foundation plans have been designed for universal conditions and may need to be adjusted to fit your specific site conditions. The foundation should be modified by a local structural engineer to comply with soil testing laboratory findings and local building requirements.
Our house plans will include schematic electrical drawings; however, circuiting or wire sizing will not be included. Your electrical subcontractor will typically provide these drawings.
HVAC and plumbing drawings are not included. Your mechanical and plumbing subcontractors will determine the best layout for your site. Local HVAC codes, climatic requirements and commonly used systems vary throughout the country. The direction of how water flow will enter the home vary from case to case. For this reason, it is impossible to provide universal plans.

This beautifully designed southern garage house plan combines practical workspace, generous garage storage, and comfortable living quarters in one efficient structure. With 699 square feet of heated living space and a spacious two-car garage, this versatile design works perfectly as a guest house, craft room, backyard apartment, or recreational retreat.
Blending southern charm with functional design, the plan also features inviting outdoor living spaces that encourage relaxation and entertaining.
The heart of this design is its 642-square-foot front-load garage, providing ample room for two vehicles while still leaving space for tools and equipment. With 9-foot garage ceiling height, the garage feels open and accommodating for larger vehicles or additional storage needs.
A dedicated craft room adds tremendous value to the structure. This workspace is ideal for woodworking, DIY projects, mechanical repairs, or hobby activities. Homeowners who enjoy hands-on projects will appreciate the flexibility and convenience this space offers.
Above or adjacent to the garage area is a 699-square-foot living space designed for comfort and efficiency. The layout includes a cozy living area, kitchen space, and a full bathroom, making it fully functional for short or long-term stays.
The design also features a walk-in closet, offering generous storage for clothing and personal belongings. This thoughtful addition helps keep the living space organized and clutter-free.
Because of its compact yet complete layout, the living area works well as a guest suite, rental unit, or private studio residence.
One of the standout features of this southern-style design is the generous 278-square-foot covered rear porch. This space extends the living area outdoors and provides the perfect setting for relaxing, dining, or entertaining guests.
The porch includes an outdoor fireplace, which creates a warm and inviting atmosphere during cooler evenings. Whether enjoying quiet nights by the fire or hosting friends and family gatherings, this outdoor feature adds both comfort and charm.
A connected patio area further expands the outdoor entertainment possibilities, making the home ideal for southern climates where outdoor living is part of everyday life.
With a total structure size of 1,619 square feet, this home makes efficient use of space while providing both practical and recreational features.
The structure measures 40 feet wide and 44 feet deep, allowing it to fit comfortably on a variety of lot sizes. A 4:12 roof pitch creates a clean, low-profile roofline that complements the relaxed style of southern architecture.
Built with 2x4 wall framing and a durable slab foundation, the design offers a straightforward and cost-effective building approach.
At 15 feet 2 inches in building height, the structure maintains a balanced and approachable scale while still providing plenty of interior room for garage and living areas.
The combination of garage space, living quarters, and outdoor entertainment areas makes this plan especially appealing for homeowners who want both functionality and comfort.
With its inviting porch, outdoor fireplace, spacious garage, and flexible living area, this southern garage house plan delivers the perfect balance of practicality and charm. Whether used as a secondary dwelling or a personal workspace retreat, the design offers a welcoming and efficient solution for modern lifestyles.