J7923-E
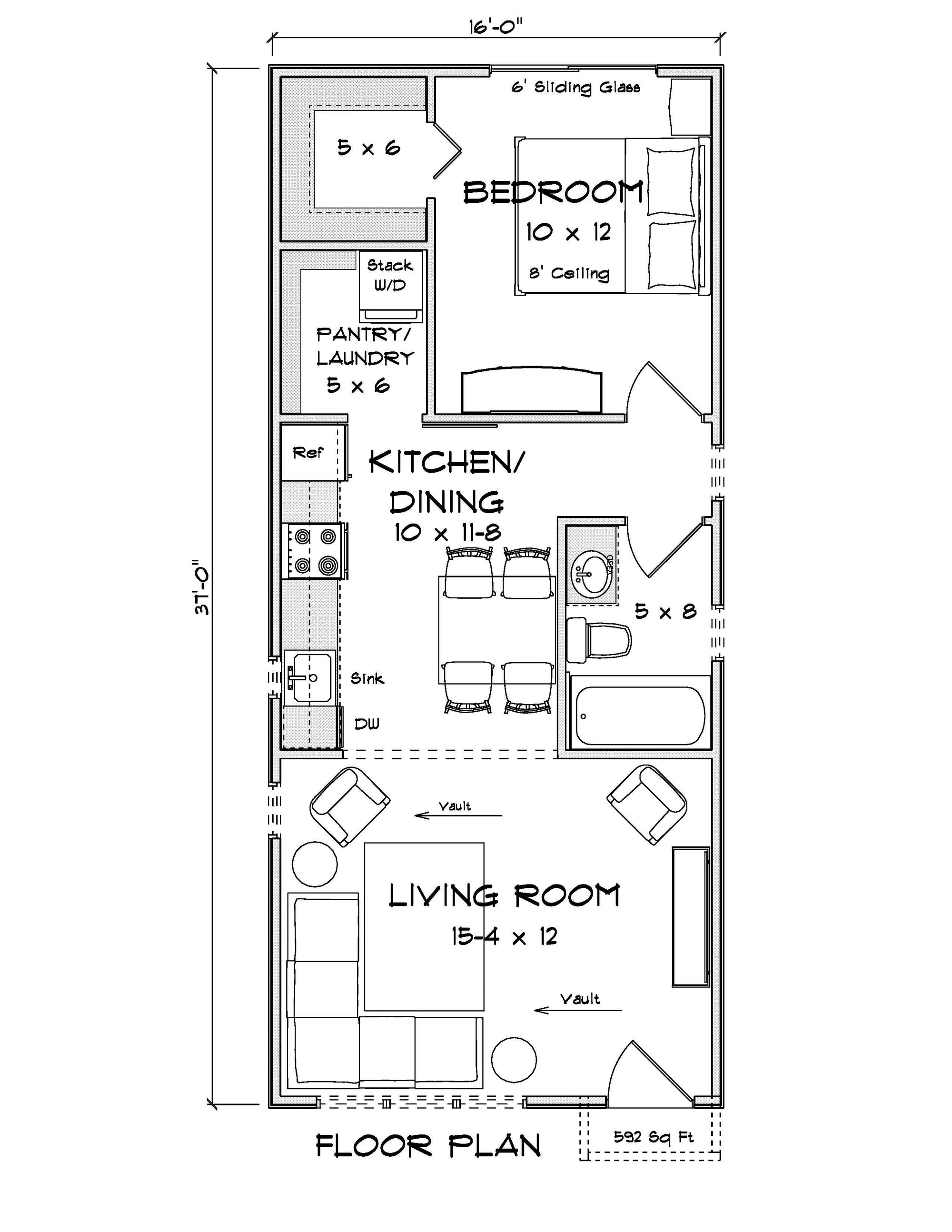
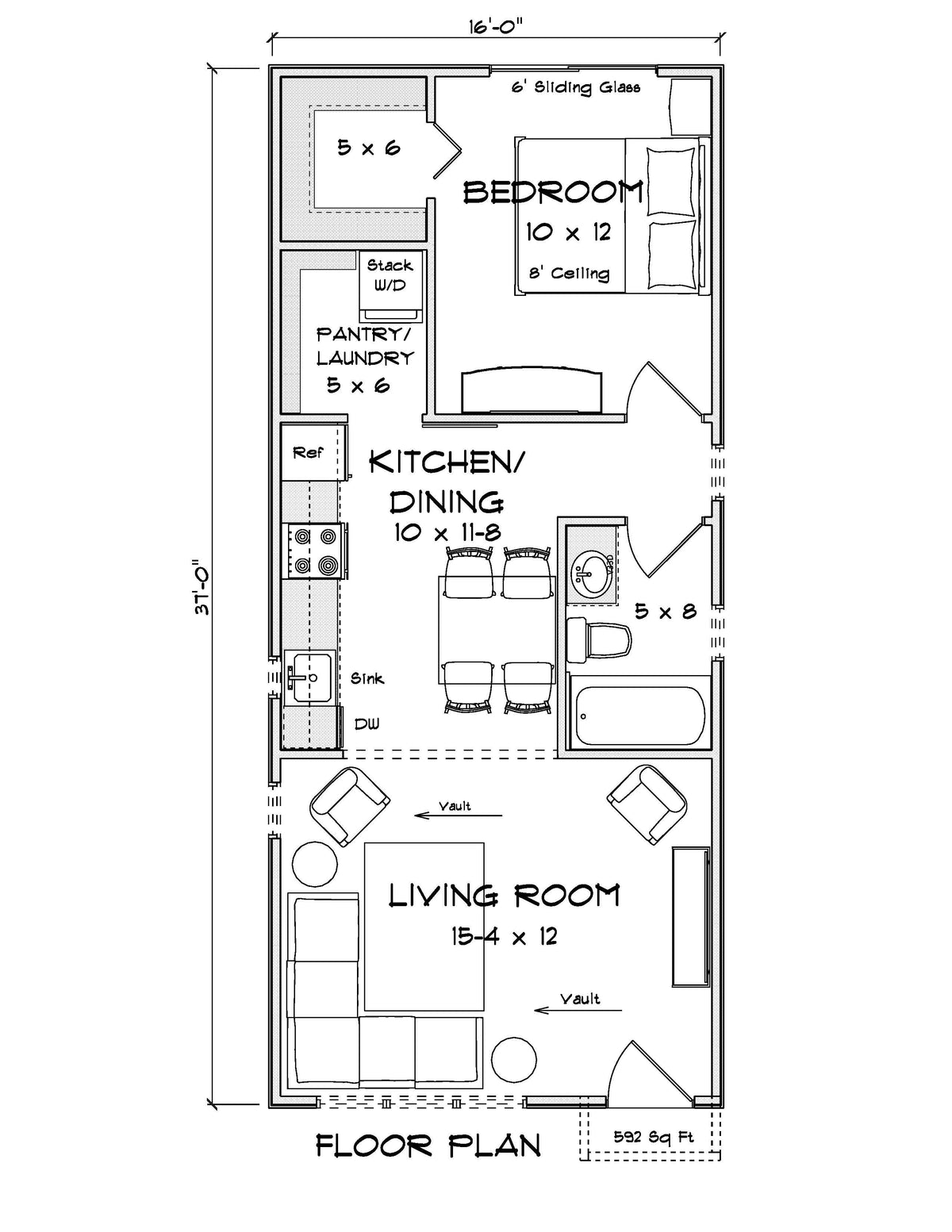
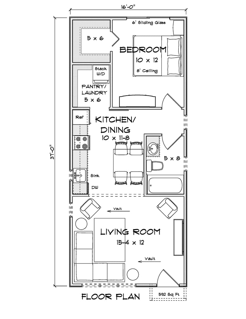
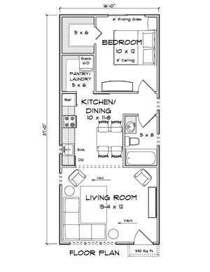
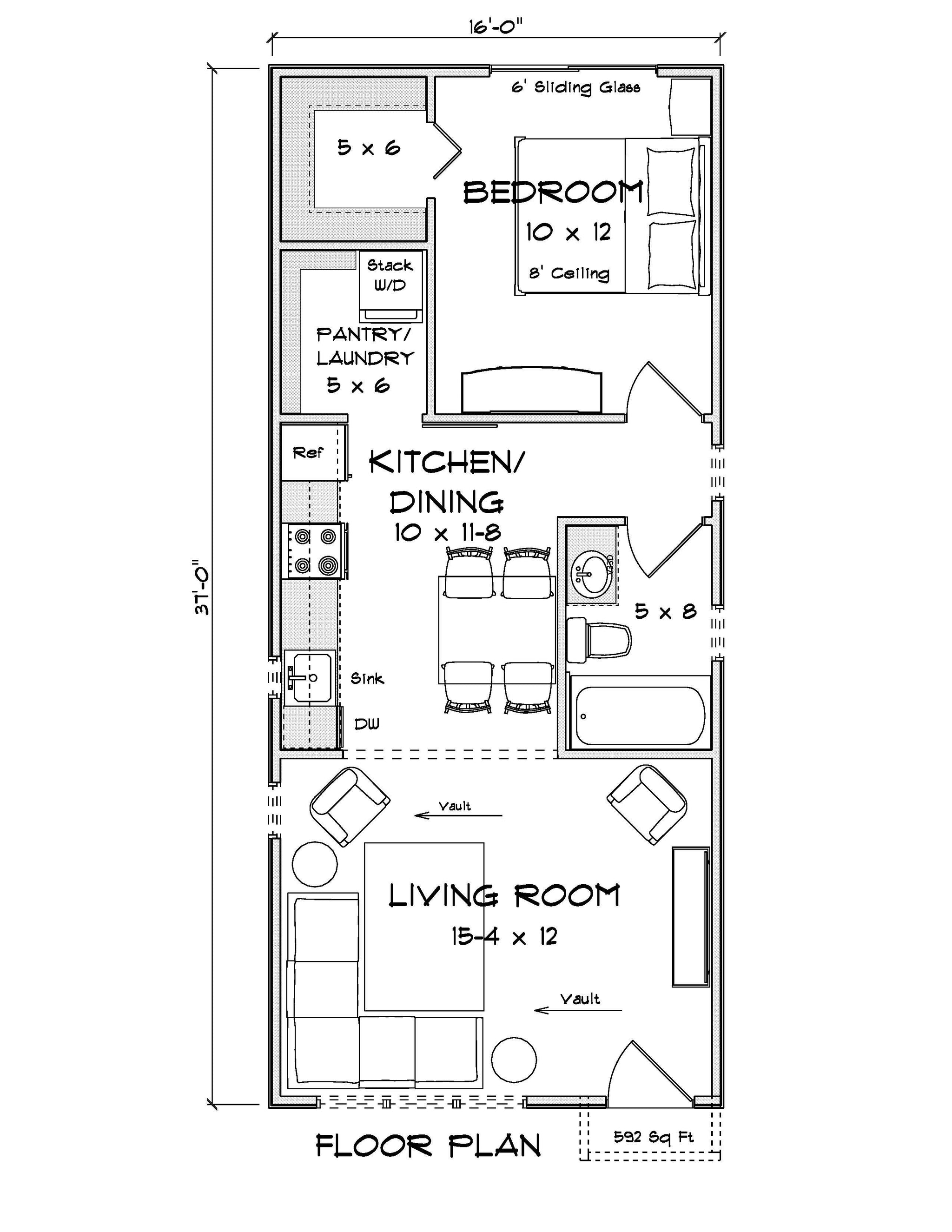
This thoughtfully designed modern house plan offers a compact yet comfortable living solution for homeowners seeking simplicity, efficiency, and contemporary style. With 592 square feet of heated living space, this small home delivers everything needed for everyday living while maintaining a clean and functional layout.
Ideal for tiny home living, guest houses, rental properties, or accessory dwelling units (ADUs), the design makes smart use of space while incorporating practical features that enhance comfort and convenience.
The home features a single-level floor plan with all living areas conveniently located on the first floor. The 592-square-foot layout includes a cozy family room, kitchen, private bedroom, bathroom, and laundry space.
With overall dimensions of 16 feet wide and 37 feet deep, this modern home fits well on narrow lots, small properties, or backyard spaces where maximizing land use is important.
The structure sits on a slab foundation and is built with 2x4 wall framing, providing a cost-effective construction approach that still offers durability and reliability.
At the center of the home is an open floor plan that combines the kitchen and keeping or family room into a bright, connected living space. This layout helps the home feel larger than its actual size by removing unnecessary walls and improving natural flow throughout the interior.
The family room serves as a comfortable place to relax, watch television, or entertain guests. Because it connects directly to the kitchen, homeowners can cook and socialize at the same time, making the space perfect for modern lifestyles.
The open concept design also allows natural light to spread more evenly throughout the living area, enhancing the overall sense of openness.
The kitchen is designed to be efficient without sacrificing storage or functionality. A walk-in pantry provides dedicated space for groceries, cooking supplies, and small appliances, helping keep the kitchen organized and clutter-free.
This valuable storage feature is particularly important in smaller homes, where thoughtful organization can significantly improve everyday usability.
The layout also leaves enough room for essential appliances and food preparation, ensuring that the kitchen remains practical for daily cooking.
The home includes a first-floor master suite that offers privacy and comfort within the compact design. The bedroom features a spacious walk-in closet, providing ample storage for clothing and personal items.
Even in a small home, the inclusion of a walk-in closet helps maintain organization and allows residents to enjoy the same conveniences found in larger houses.
The nearby bathroom is easily accessible from both the bedroom and the living area, making it convenient for both residents and guests.
Another practical feature of this modern home is the first-floor laundry area. With laundry facilities located on the main level, homeowners can easily manage daily chores without needing additional floors or basement space.
This thoughtful design element enhances convenience and helps streamline everyday routines.
The home features a 4:12 roof pitch and a modest building height of 14 feet 3 inches, creating a clean, contemporary silhouette that fits well in modern neighborhoods, rural properties, or backyard ADU settings.
Its simple roofline and compact footprint help keep construction costs manageable while maintaining modern curb appeal.
This modern 1-bedroom house plan is an excellent solution for homeowners who want a smaller home without sacrificing essential features. Its efficient layout and practical storage options make it suitable for a variety of uses.
With its smart layout, modern design, and efficient use of space, this 592-square-foot modern house plan offers a comfortable and stylish approach to compact living.



PDF (Single Build)
A complete set of working drawings delivered in digital PDF format. This option comes with a license to build ONE home and includes a copyright release for printing unlimited sets of plans and making modifications.
CAD + PDF (Single Build)
A complete set of working drawings delivered in digital DWG and PDF formats. AutoCAD files are used by design professionals to make significant modifications or engineering calculations to the plan. This option comes with a license to build ONE home and includes a copyright release for printing unlimited sets of plans and making modifications.
5 or 8 Prints (Single Build)
Five or eight printed sets of working drawings shipped to you. This option comes with a license to build ONE home.
5 Prints + PDF (Single Build)
Five printed sets of working drawings shipped to you, plus a digital version in PDF format. This option comes with a license to build ONE home and includes a copyright release for printing unlimited sets of plans and making modifications.
PDF (Multi Build)
A complete set of working drawings delivered in digital PDF format. This option comes with a license to build an UNLIMITED number of homes and includes a copyright release for printing unlimited sets of plans and making modifications. This option may not be available for all house plans, or may require a specific format to be purchased. Please call 770-831-6363 for more information.
CAD + PDF (Multi Build)
A complete set of working drawings delivered in digital DWG and PDF formats. AutoCAD files are used by design professionals to make significant modifications or engineering calculations to the plan. This option comes with a license to build an UNLIMITED number of homes and includes a copyright release for printing unlimited sets of plans and making modifications. This option may not be available for all house plans, or may require a specific format to be purchased. Please call 770-831-6363 for more information.
Choose a building foundation for your home. The foundation provides stability to a home's structure from the ground up.
Slab - This concrete foundation is reinforced with steel rods and suitable for flat ground.
Crawl Space - This foundation is raised off the ground with low walls resting on footings, providing space for wiring, plumbing, and storage.
Basement - This foundation is entirely or partially below ground and offers storage or living areas.
Walkout Basement - This foundation is typically suited for rear-sloping lots and provides storage or living areas. Walkout basements have doors that provide access to the outside.




The construction drawings will include detailed, dimensioned floor plans, exterior elevations, roof plan, foundation plan, basic electrical layout, cross-section(s), foundation plan, and other general specifications. Some plans will include interior cabinet layouts.
View Sample Plan
Archival Designs brings you over 40 years of experience in the house plan design business. We offer the best value for your money by offering the highest quality home designs.
We offer a 10% military & first responder discount, as well as builder discounts for life! Archival Designs guarantees the lowest prices anywhere online. Learn more about our Best Price Guarantee.
All house plans sold by Archival Designs have been designed to comply with the International Residential Code (IRC) and to the local codes in the area where the designer resides or where the house was built.
All house plans are designed to meet or exceed the national building standards required by the International Residential Code (IRC). Due to differences in climate and geography throughout North America, every city, local municipality and county has unique building codes and regulations that must be followed to obtain a building permit. Prior to purchasing a set of house plans, we recommend that you meet with your local building officials in order to determine the building requirements for your area. It is the responsibility of the purchaser(s) and/or builder to ensure that the structure is constructed to meet the codes of their local area.
Important Note:
House plans do not come stamped or signed by an architect or engineer. Additionally, house plans typically will not include structural engineering notes/calculations. Please check with your local building officials to determine if a stamp is required. If required, the building department will only accept a stamp from a licensed professional in the state where the home will be built.
Depending on your city, county, and state building requirements, house plans may need to be reviewed by a local licensed architect or engineer for structural details and code standards before construction begins. This is particularly true in coastal areas and those facing seismic events, extreme winds, and heavy snow. If you are building in any of these areas, a licensed structural engineer will likely be needed to provide the necessary calculations and additional drawings. We authorize the use of our plans conditioned on your obligation and agreement to strictly comply with all local building codes, ordinances, regulations, and requirements, including permits and inspections at the time of and during construction. We recommend checking with your local building department for the most current requirements. The purchaser(s) and/or builder are responsible for additional expenses incurred through meeting municipality requirements or other requirements for construction.
Our foundation plans have been designed for universal conditions and may need to be adjusted to fit your specific site conditions. The foundation should be modified by a local structural engineer to comply with soil testing laboratory findings and local building requirements.
Our house plans will include schematic electrical drawings; however, circuiting or wire sizing will not be included. Your electrical subcontractor will typically provide these drawings.
HVAC and plumbing drawings are not included. Your mechanical and plumbing subcontractors will determine the best layout for your site. Local HVAC codes, climatic requirements and commonly used systems vary throughout the country. The direction of how water flow will enter the home vary from case to case. For this reason, it is impossible to provide universal plans.

This thoughtfully designed modern house plan offers a compact yet comfortable living solution for homeowners seeking simplicity, efficiency, and contemporary style. With 592 square feet of heated living space, this small home delivers everything needed for everyday living while maintaining a clean and functional layout.
Ideal for tiny home living, guest houses, rental properties, or accessory dwelling units (ADUs), the design makes smart use of space while incorporating practical features that enhance comfort and convenience.
The home features a single-level floor plan with all living areas conveniently located on the first floor. The 592-square-foot layout includes a cozy family room, kitchen, private bedroom, bathroom, and laundry space.
With overall dimensions of 16 feet wide and 37 feet deep, this modern home fits well on narrow lots, small properties, or backyard spaces where maximizing land use is important.
The structure sits on a slab foundation and is built with 2x4 wall framing, providing a cost-effective construction approach that still offers durability and reliability.
At the center of the home is an open floor plan that combines the kitchen and keeping or family room into a bright, connected living space. This layout helps the home feel larger than its actual size by removing unnecessary walls and improving natural flow throughout the interior.
The family room serves as a comfortable place to relax, watch television, or entertain guests. Because it connects directly to the kitchen, homeowners can cook and socialize at the same time, making the space perfect for modern lifestyles.
The open concept design also allows natural light to spread more evenly throughout the living area, enhancing the overall sense of openness.
The kitchen is designed to be efficient without sacrificing storage or functionality. A walk-in pantry provides dedicated space for groceries, cooking supplies, and small appliances, helping keep the kitchen organized and clutter-free.
This valuable storage feature is particularly important in smaller homes, where thoughtful organization can significantly improve everyday usability.
The layout also leaves enough room for essential appliances and food preparation, ensuring that the kitchen remains practical for daily cooking.
The home includes a first-floor master suite that offers privacy and comfort within the compact design. The bedroom features a spacious walk-in closet, providing ample storage for clothing and personal items.
Even in a small home, the inclusion of a walk-in closet helps maintain organization and allows residents to enjoy the same conveniences found in larger houses.
The nearby bathroom is easily accessible from both the bedroom and the living area, making it convenient for both residents and guests.
Another practical feature of this modern home is the first-floor laundry area. With laundry facilities located on the main level, homeowners can easily manage daily chores without needing additional floors or basement space.
This thoughtful design element enhances convenience and helps streamline everyday routines.
The home features a 4:12 roof pitch and a modest building height of 14 feet 3 inches, creating a clean, contemporary silhouette that fits well in modern neighborhoods, rural properties, or backyard ADU settings.
Its simple roofline and compact footprint help keep construction costs manageable while maintaining modern curb appeal.
This modern 1-bedroom house plan is an excellent solution for homeowners who want a smaller home without sacrificing essential features. Its efficient layout and practical storage options make it suitable for a variety of uses.
With its smart layout, modern design, and efficient use of space, this 592-square-foot modern house plan offers a comfortable and stylish approach to compact living.