J7558-E
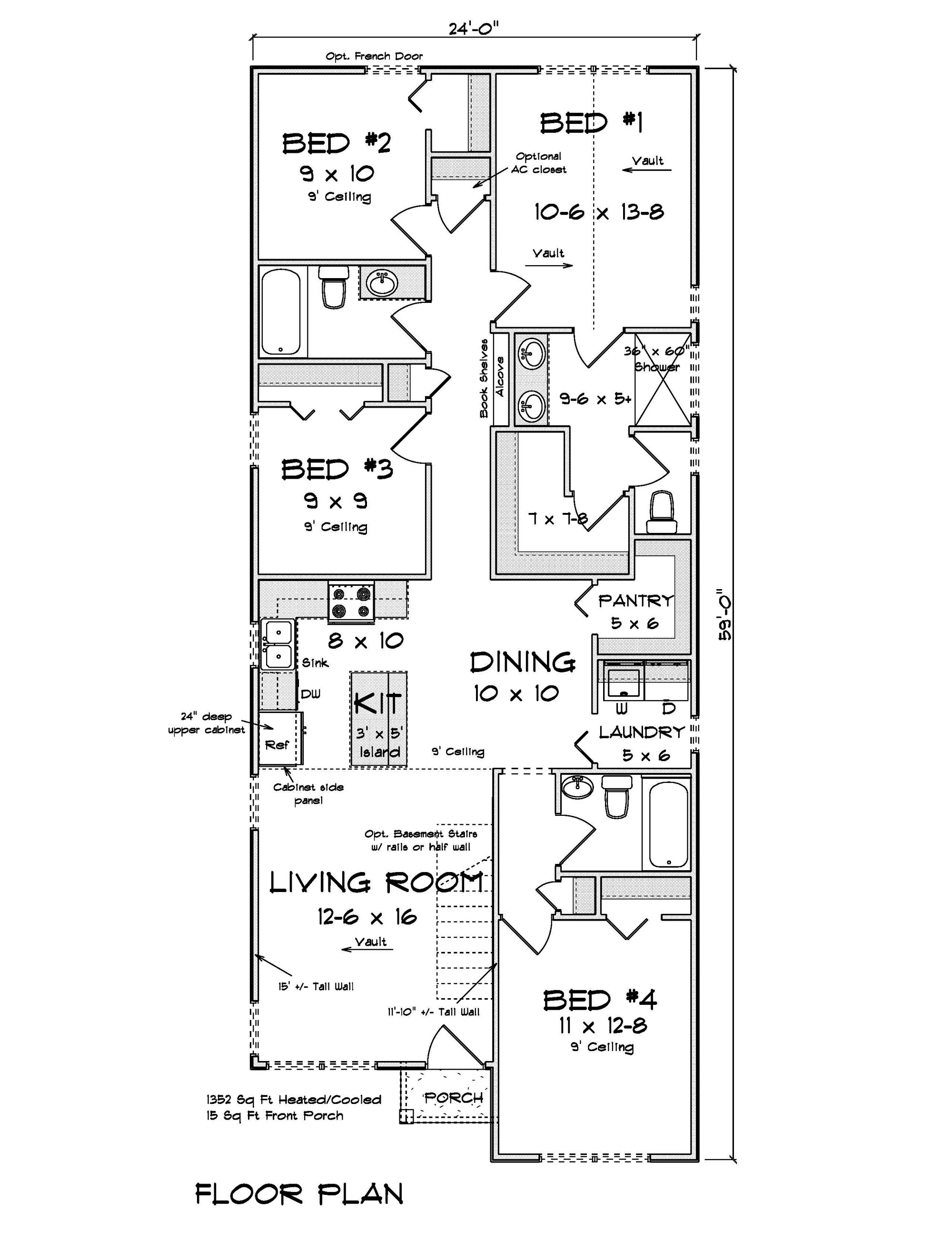
This thoughtfully designed modern house plan delivers exceptional functionality and flexibility within a compact footprint, making it an ideal solution for narrow lots, growing families, and homeowners who value efficient use of space without sacrificing comfort. With 1,352 square feet of heated living space, four bedrooms, and three full bathrooms, this plan offers an impressive bedroom-to-square-foot ratio rarely found in homes of this size.
The exterior features a clean, contemporary profile with simple lines and low-maintenance appeal. At just 24 feet wide, the home is perfectly suited for narrow lot construction, urban infill neighborhoods, and small parcels where wider homes are not feasible. A modest front porch creates a welcoming entry while maintaining a compact overall footprint. The slab foundation and 3:12 roof pitch contribute to straightforward, cost-conscious construction, making this plan an excellent option for budget-aware builders and homeowners alike.
Inside, the home opens into a bright and inviting open floor plan that maximizes every square foot. The keeping/family room anchors the living space and flows seamlessly into the kitchen and dining areas, creating a connected environment ideal for everyday living and casual entertaining. Natural sightlines allow the home to feel larger than its square footage suggests, while the layout encourages interaction and ease of movement.
The kitchen is designed to be both efficient and highly functional. A central kitchen island provides valuable prep space and informal seating, while the nearby eating bar supports quick meals, homework time, or casual conversations. A spacious walk-in pantry adds storage depth that is rarely seen in homes under 1,400 square feet, allowing you to keep the kitchen organized and clutter-free. The formal dining area, positioned conveniently near the kitchen, offers flexibility for family dinners, hosting guests, or even use as a multi-purpose space such as a homework or creative zone.
One of the standout features of this plan is the first-floor primary suite, thoughtfully designed for privacy and comfort. The bedroom includes a dedicated sitting area, creating a peaceful retreat where homeowners can unwind at the end of the day. The private master bath enhances everyday convenience, while the suite’s layout supports both relaxation and functionality. This private zone feels intentionally separated from the rest of the home, a valuable feature in a compact design.
Three additional bedrooms expand the home’s flexibility, making this plan suitable for families with children, multi-generational living, or homeowners who need dedicated space for guests, a home office, or hobbies. With four bedrooms total and three full bathrooms, this design supports real-life living with minimal compromise. The additional bathrooms help reduce morning congestion and enhance long-term livability, especially for larger households.
A dedicated first-floor laundry area further reinforces the home’s practical design. Conveniently located near the main living spaces, it eliminates unnecessary steps and supports smoother daily routines. Every square foot of this home has been carefully considered to deliver maximum usability and comfort.
With 9-foot ceiling heights, the interior feels open and breathable, contributing to a sense of spaciousness that elevates the overall experience. The home’s proportions—24 feet wide by 59 feet deep—allow it to fit gracefully on narrow lots while still delivering the features and comfort typically associated with larger homes.
This modern house plan is ideal for first-time buyers, small families, investors, or anyone seeking a stylish, efficient, and affordable home design. Whether built in a suburban neighborhood, urban infill setting, or compact development, it offers enduring value, smart planning, and modern livability in a beautifully efficient package.



PDF (Single Build)
A complete set of working drawings delivered in digital PDF format. This option comes with a license to build ONE home and includes a copyright release for printing unlimited sets of plans and making modifications.
CAD + PDF (Single Build)
A complete set of working drawings delivered in digital DWG and PDF formats. AutoCAD files are used by design professionals to make significant modifications or engineering calculations to the plan. This option comes with a license to build ONE home and includes a copyright release for printing unlimited sets of plans and making modifications.
5 or 8 Prints (Single Build)
Five or eight printed sets of working drawings shipped to you. This option comes with a license to build ONE home.
5 Prints + PDF (Single Build)
Five printed sets of working drawings shipped to you, plus a digital version in PDF format. This option comes with a license to build ONE home and includes a copyright release for printing unlimited sets of plans and making modifications.
PDF (Multi Build)
A complete set of working drawings delivered in digital PDF format. This option comes with a license to build an UNLIMITED number of homes and includes a copyright release for printing unlimited sets of plans and making modifications. This option may not be available for all house plans, or may require a specific format to be purchased. Please call 770-831-6363 for more information.
CAD + PDF (Multi Build)
A complete set of working drawings delivered in digital DWG and PDF formats. AutoCAD files are used by design professionals to make significant modifications or engineering calculations to the plan. This option comes with a license to build an UNLIMITED number of homes and includes a copyright release for printing unlimited sets of plans and making modifications. This option may not be available for all house plans, or may require a specific format to be purchased. Please call 770-831-6363 for more information.
Choose a building foundation for your home. The foundation provides stability to a home's structure from the ground up.
Slab - This concrete foundation is reinforced with steel rods and suitable for flat ground.
Crawl Space - This foundation is raised off the ground with low walls resting on footings, providing space for wiring, plumbing, and storage.
Basement - This foundation is entirely or partially below ground and offers storage or living areas.
Walkout Basement - This foundation is typically suited for rear-sloping lots and provides storage or living areas. Walkout basements have doors that provide access to the outside.




The construction drawings will include detailed, dimensioned floor plans, exterior elevations, roof plan, foundation plan, basic electrical layout, cross-section(s), foundation plan, and other general specifications. Some plans will include interior cabinet layouts.
View Sample Plan
Archival Designs brings you over 40 years of experience in the house plan design business. We offer the best value for your money by offering the highest quality home designs.
We offer a 10% military & first responder discount, as well as builder discounts for life! Archival Designs guarantees the lowest prices anywhere online. Learn more about our Best Price Guarantee.
All house plans sold by Archival Designs have been designed to comply with the International Residential Code (IRC) and to the local codes in the area where the designer resides or where the house was built.
All house plans are designed to meet or exceed the national building standards required by the International Residential Code (IRC). Due to differences in climate and geography throughout North America, every city, local municipality and county has unique building codes and regulations that must be followed to obtain a building permit. Prior to purchasing a set of house plans, we recommend that you meet with your local building officials in order to determine the building requirements for your area. It is the responsibility of the purchaser(s) and/or builder to ensure that the structure is constructed to meet the codes of their local area.
Important Note:
House plans do not come stamped or signed by an architect or engineer. Additionally, house plans typically will not include structural engineering notes/calculations. Please check with your local building officials to determine if a stamp is required. If required, the building department will only accept a stamp from a licensed professional in the state where the home will be built.
Depending on your city, county, and state building requirements, house plans may need to be reviewed by a local licensed architect or engineer for structural details and code standards before construction begins. This is particularly true in coastal areas and those facing seismic events, extreme winds, and heavy snow. If you are building in any of these areas, a licensed structural engineer will likely be needed to provide the necessary calculations and additional drawings. We authorize the use of our plans conditioned on your obligation and agreement to strictly comply with all local building codes, ordinances, regulations, and requirements, including permits and inspections at the time of and during construction. We recommend checking with your local building department for the most current requirements. The purchaser(s) and/or builder are responsible for additional expenses incurred through meeting municipality requirements or other requirements for construction.
Our foundation plans have been designed for universal conditions and may need to be adjusted to fit your specific site conditions. The foundation should be modified by a local structural engineer to comply with soil testing laboratory findings and local building requirements.
Our house plans will include schematic electrical drawings; however, circuiting or wire sizing will not be included. Your electrical subcontractor will typically provide these drawings.
HVAC and plumbing drawings are not included. Your mechanical and plumbing subcontractors will determine the best layout for your site. Local HVAC codes, climatic requirements and commonly used systems vary throughout the country. The direction of how water flow will enter the home vary from case to case. For this reason, it is impossible to provide universal plans.

This thoughtfully designed modern house plan delivers exceptional functionality and flexibility within a compact footprint, making it an ideal solution for narrow lots, growing families, and homeowners who value efficient use of space without sacrificing comfort. With 1,352 square feet of heated living space, four bedrooms, and three full bathrooms, this plan offers an impressive bedroom-to-square-foot ratio rarely found in homes of this size.
The exterior features a clean, contemporary profile with simple lines and low-maintenance appeal. At just 24 feet wide, the home is perfectly suited for narrow lot construction, urban infill neighborhoods, and small parcels where wider homes are not feasible. A modest front porch creates a welcoming entry while maintaining a compact overall footprint. The slab foundation and 3:12 roof pitch contribute to straightforward, cost-conscious construction, making this plan an excellent option for budget-aware builders and homeowners alike.
Inside, the home opens into a bright and inviting open floor plan that maximizes every square foot. The keeping/family room anchors the living space and flows seamlessly into the kitchen and dining areas, creating a connected environment ideal for everyday living and casual entertaining. Natural sightlines allow the home to feel larger than its square footage suggests, while the layout encourages interaction and ease of movement.
The kitchen is designed to be both efficient and highly functional. A central kitchen island provides valuable prep space and informal seating, while the nearby eating bar supports quick meals, homework time, or casual conversations. A spacious walk-in pantry adds storage depth that is rarely seen in homes under 1,400 square feet, allowing you to keep the kitchen organized and clutter-free. The formal dining area, positioned conveniently near the kitchen, offers flexibility for family dinners, hosting guests, or even use as a multi-purpose space such as a homework or creative zone.
One of the standout features of this plan is the first-floor primary suite, thoughtfully designed for privacy and comfort. The bedroom includes a dedicated sitting area, creating a peaceful retreat where homeowners can unwind at the end of the day. The private master bath enhances everyday convenience, while the suite’s layout supports both relaxation and functionality. This private zone feels intentionally separated from the rest of the home, a valuable feature in a compact design.
Three additional bedrooms expand the home’s flexibility, making this plan suitable for families with children, multi-generational living, or homeowners who need dedicated space for guests, a home office, or hobbies. With four bedrooms total and three full bathrooms, this design supports real-life living with minimal compromise. The additional bathrooms help reduce morning congestion and enhance long-term livability, especially for larger households.
A dedicated first-floor laundry area further reinforces the home’s practical design. Conveniently located near the main living spaces, it eliminates unnecessary steps and supports smoother daily routines. Every square foot of this home has been carefully considered to deliver maximum usability and comfort.
With 9-foot ceiling heights, the interior feels open and breathable, contributing to a sense of spaciousness that elevates the overall experience. The home’s proportions—24 feet wide by 59 feet deep—allow it to fit gracefully on narrow lots while still delivering the features and comfort typically associated with larger homes.
This modern house plan is ideal for first-time buyers, small families, investors, or anyone seeking a stylish, efficient, and affordable home design. Whether built in a suburban neighborhood, urban infill setting, or compact development, it offers enduring value, smart planning, and modern livability in a beautifully efficient package.