J7557-E
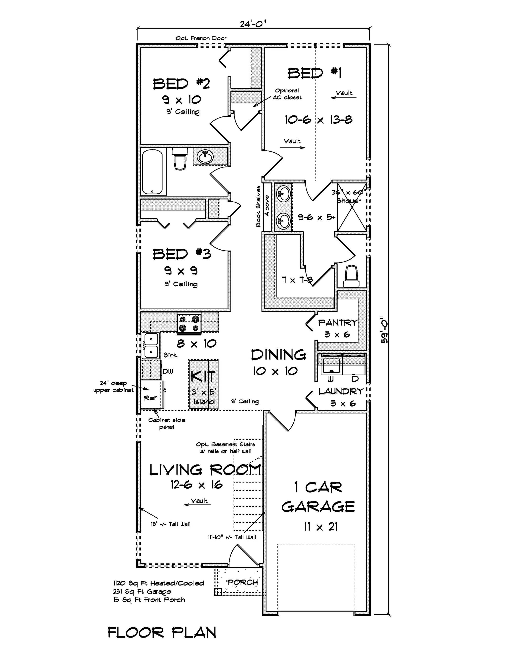
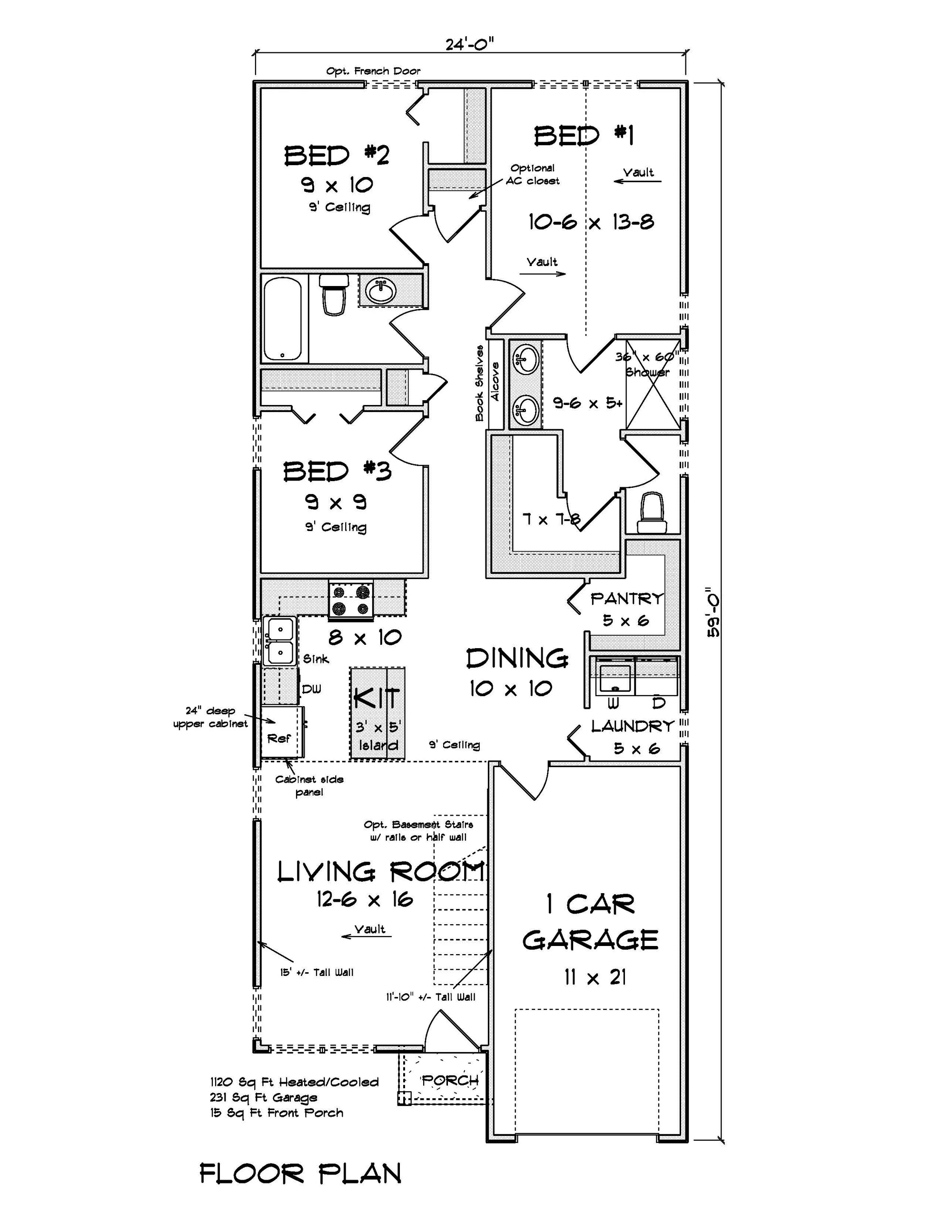
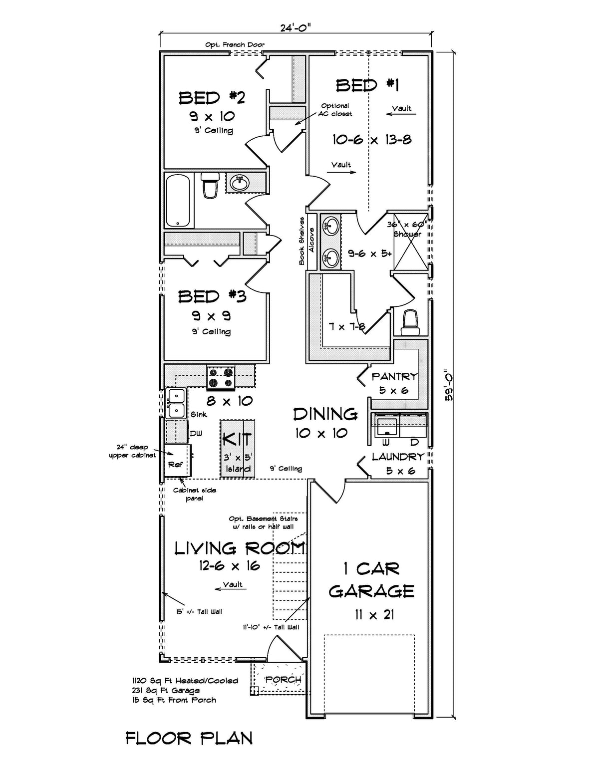
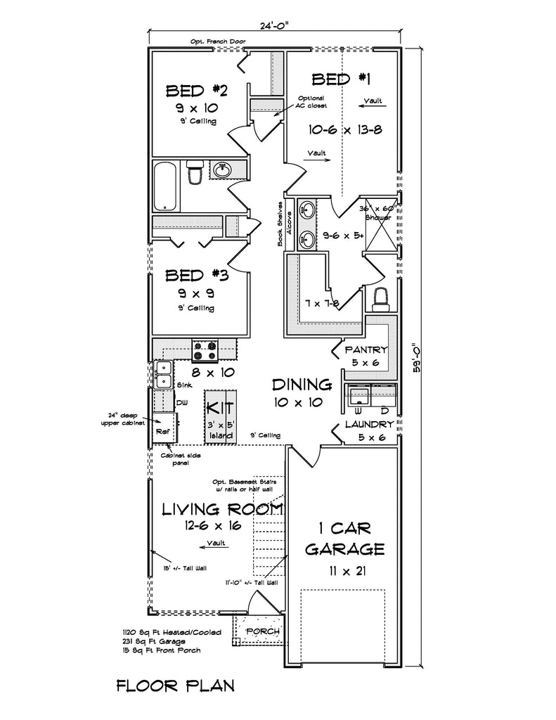
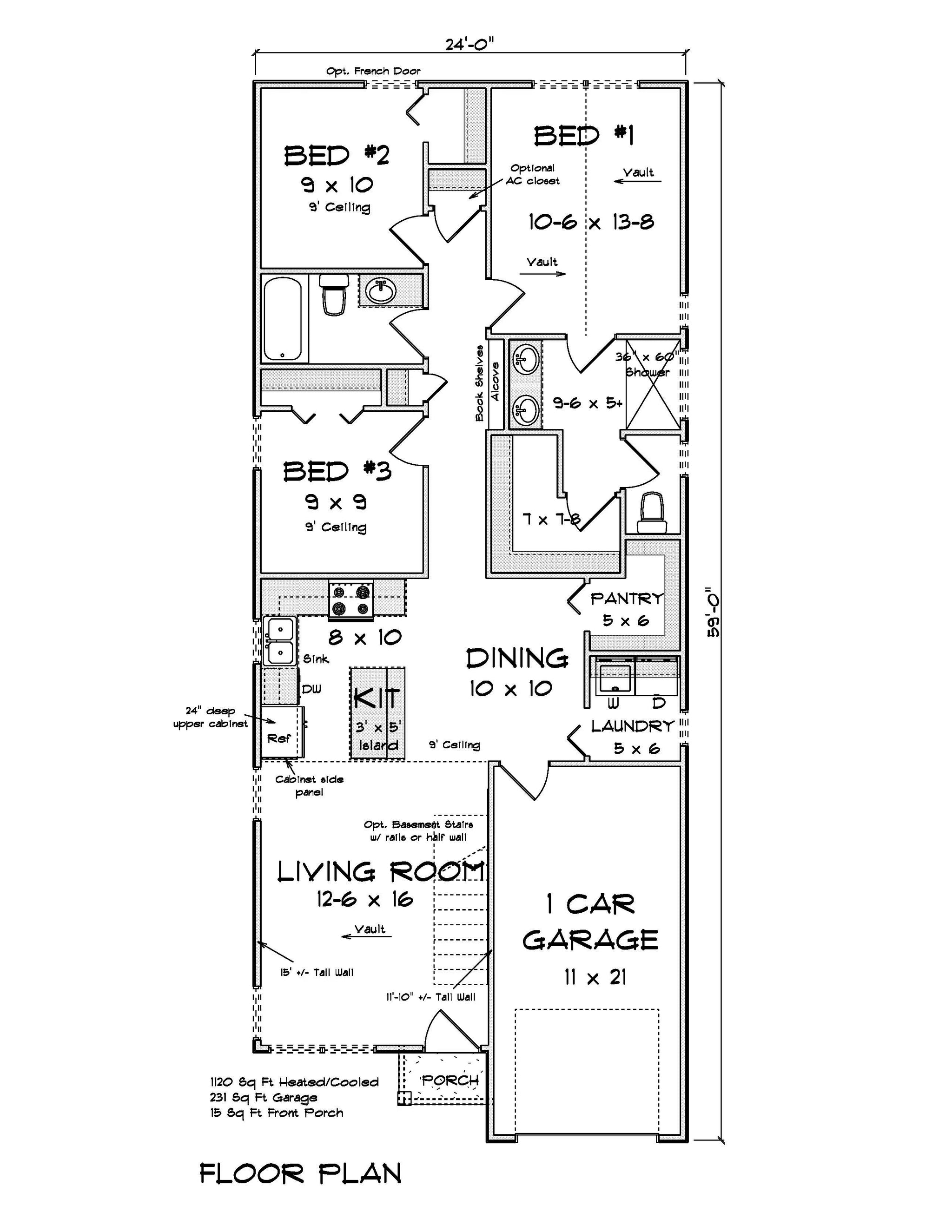
This efficient and thoughtfully designed modern house plan delivers exceptional livability within a compact footprint, making it ideal for first-time homeowners, downsizers, small families, or anyone seeking a stylish home that maximizes every square foot. With 1,120 square feet of heated living space, three bedrooms, and two full bathrooms, this plan balances affordability, comfort, and contemporary appeal.
The exterior presents a clean, modern profile with simple lines and a low-maintenance design. Its 24-foot width makes it particularly well-suited for narrow lots, urban infill sites, or smaller properties where space efficiency is essential. A modest front porch offers a welcoming entry, while the attached one-car front-load garage provides secure parking and additional storage without overwhelming the façade.
Inside, the home opens into a bright and inviting open floor plan that immediately feels larger than its square footage suggests. The keeping/family room serves as the heart of the home, offering a comfortable space for relaxing, entertaining, and everyday living. Its connection to the kitchen and dining areas encourages easy conversation and natural flow, making the layout perfect for both quiet evenings and social gatherings.
The kitchen is designed to deliver impressive functionality within a streamlined footprint. A central kitchen island anchors the space, offering valuable prep surface and casual seating. The adjacent eating bar creates a natural spot for quick breakfasts, homework time, or casual meals. A spacious walk-in pantry adds storage rarely found in homes of this size, allowing you to keep groceries and small appliances neatly organized. The nearby formal dining area provides flexibility for family meals or special occasions without requiring a separate, oversized room.
One of the standout features of this plan is its first-floor primary suite, thoughtfully positioned for privacy and convenience. The bedroom offers comfortable proportions, while the private master bath features a double vanity—a luxury feature that enhances everyday comfort. A generous walk-in closet completes the suite, providing ample storage for clothing and personal items.
Two additional bedrooms are located nearby, making this layout ideal for children, guests, or flexible-use spaces such as a home office or hobby room. A second full bathroom serves these bedrooms and the main living areas, offering both convenience and privacy.
Practical living is further supported by a dedicated first-floor laundry area, eliminating the need to carry laundry across the home. Every element of this plan is designed to support real-life routines, making daily living easier and more enjoyable.
Built on a slab foundation with 2x4 wall framing, this house plan is well-suited for cost-effective construction while maintaining durability. With a roof pitch of 3:12 and a building height under 16 feet, the design supports simpler construction and can be an excellent option for neighborhoods with height restrictions. The overall dimensions—24 feet wide by 59 feet deep—allow this home to fit comfortably on lots where many larger plans simply won’t work.
This modern house plan proves that great design doesn’t require excessive square footage. Instead, it delivers smart planning, stylish features, and practical comfort in a compact, efficient package. Whether you’re building your first home, downsizing to something more manageable, or investing in a rental-friendly property, this plan offers exceptional versatility and long-term value.



PDF (Single Build)
A complete set of working drawings delivered in digital PDF format. This option comes with a license to build ONE home and includes a copyright release for printing unlimited sets of plans and making modifications.
CAD + PDF (Single Build)
A complete set of working drawings delivered in digital DWG and PDF formats. AutoCAD files are used by design professionals to make significant modifications or engineering calculations to the plan. This option comes with a license to build ONE home and includes a copyright release for printing unlimited sets of plans and making modifications.
5 or 8 Prints (Single Build)
Five or eight printed sets of working drawings shipped to you. This option comes with a license to build ONE home.
5 Prints + PDF (Single Build)
Five printed sets of working drawings shipped to you, plus a digital version in PDF format. This option comes with a license to build ONE home and includes a copyright release for printing unlimited sets of plans and making modifications.
PDF (Multi Build)
A complete set of working drawings delivered in digital PDF format. This option comes with a license to build an UNLIMITED number of homes and includes a copyright release for printing unlimited sets of plans and making modifications. This option may not be available for all house plans, or may require a specific format to be purchased. Please call 770-831-6363 for more information.
CAD + PDF (Multi Build)
A complete set of working drawings delivered in digital DWG and PDF formats. AutoCAD files are used by design professionals to make significant modifications or engineering calculations to the plan. This option comes with a license to build an UNLIMITED number of homes and includes a copyright release for printing unlimited sets of plans and making modifications. This option may not be available for all house plans, or may require a specific format to be purchased. Please call 770-831-6363 for more information.
Choose a building foundation for your home. The foundation provides stability to a home's structure from the ground up.
Slab - This concrete foundation is reinforced with steel rods and suitable for flat ground.
Crawl Space - This foundation is raised off the ground with low walls resting on footings, providing space for wiring, plumbing, and storage.
Basement - This foundation is entirely or partially below ground and offers storage or living areas.
Walkout Basement - This foundation is typically suited for rear-sloping lots and provides storage or living areas. Walkout basements have doors that provide access to the outside.




The construction drawings will include detailed, dimensioned floor plans, exterior elevations, roof plan, foundation plan, basic electrical layout, cross-section(s), foundation plan, and other general specifications. Some plans will include interior cabinet layouts.
View Sample Plan
Archival Designs brings you over 40 years of experience in the house plan design business. We offer the best value for your money by offering the highest quality home designs.
We offer a 10% military & first responder discount, as well as builder discounts for life! Archival Designs guarantees the lowest prices anywhere online. Learn more about our Best Price Guarantee.
All house plans sold by Archival Designs have been designed to comply with the International Residential Code (IRC) and to the local codes in the area where the designer resides or where the house was built.
All house plans are designed to meet or exceed the national building standards required by the International Residential Code (IRC). Due to differences in climate and geography throughout North America, every city, local municipality and county has unique building codes and regulations that must be followed to obtain a building permit. Prior to purchasing a set of house plans, we recommend that you meet with your local building officials in order to determine the building requirements for your area. It is the responsibility of the purchaser(s) and/or builder to ensure that the structure is constructed to meet the codes of their local area.
Important Note:
House plans do not come stamped or signed by an architect or engineer. Additionally, house plans typically will not include structural engineering notes/calculations. Please check with your local building officials to determine if a stamp is required. If required, the building department will only accept a stamp from a licensed professional in the state where the home will be built.
Depending on your city, county, and state building requirements, house plans may need to be reviewed by a local licensed architect or engineer for structural details and code standards before construction begins. This is particularly true in coastal areas and those facing seismic events, extreme winds, and heavy snow. If you are building in any of these areas, a licensed structural engineer will likely be needed to provide the necessary calculations and additional drawings. We authorize the use of our plans conditioned on your obligation and agreement to strictly comply with all local building codes, ordinances, regulations, and requirements, including permits and inspections at the time of and during construction. We recommend checking with your local building department for the most current requirements. The purchaser(s) and/or builder are responsible for additional expenses incurred through meeting municipality requirements or other requirements for construction.
Our foundation plans have been designed for universal conditions and may need to be adjusted to fit your specific site conditions. The foundation should be modified by a local structural engineer to comply with soil testing laboratory findings and local building requirements.
Our house plans will include schematic electrical drawings; however, circuiting or wire sizing will not be included. Your electrical subcontractor will typically provide these drawings.
HVAC and plumbing drawings are not included. Your mechanical and plumbing subcontractors will determine the best layout for your site. Local HVAC codes, climatic requirements and commonly used systems vary throughout the country. The direction of how water flow will enter the home vary from case to case. For this reason, it is impossible to provide universal plans.

This efficient and thoughtfully designed modern house plan delivers exceptional livability within a compact footprint, making it ideal for first-time homeowners, downsizers, small families, or anyone seeking a stylish home that maximizes every square foot. With 1,120 square feet of heated living space, three bedrooms, and two full bathrooms, this plan balances affordability, comfort, and contemporary appeal.
The exterior presents a clean, modern profile with simple lines and a low-maintenance design. Its 24-foot width makes it particularly well-suited for narrow lots, urban infill sites, or smaller properties where space efficiency is essential. A modest front porch offers a welcoming entry, while the attached one-car front-load garage provides secure parking and additional storage without overwhelming the façade.
Inside, the home opens into a bright and inviting open floor plan that immediately feels larger than its square footage suggests. The keeping/family room serves as the heart of the home, offering a comfortable space for relaxing, entertaining, and everyday living. Its connection to the kitchen and dining areas encourages easy conversation and natural flow, making the layout perfect for both quiet evenings and social gatherings.
The kitchen is designed to deliver impressive functionality within a streamlined footprint. A central kitchen island anchors the space, offering valuable prep surface and casual seating. The adjacent eating bar creates a natural spot for quick breakfasts, homework time, or casual meals. A spacious walk-in pantry adds storage rarely found in homes of this size, allowing you to keep groceries and small appliances neatly organized. The nearby formal dining area provides flexibility for family meals or special occasions without requiring a separate, oversized room.
One of the standout features of this plan is its first-floor primary suite, thoughtfully positioned for privacy and convenience. The bedroom offers comfortable proportions, while the private master bath features a double vanity—a luxury feature that enhances everyday comfort. A generous walk-in closet completes the suite, providing ample storage for clothing and personal items.
Two additional bedrooms are located nearby, making this layout ideal for children, guests, or flexible-use spaces such as a home office or hobby room. A second full bathroom serves these bedrooms and the main living areas, offering both convenience and privacy.
Practical living is further supported by a dedicated first-floor laundry area, eliminating the need to carry laundry across the home. Every element of this plan is designed to support real-life routines, making daily living easier and more enjoyable.
Built on a slab foundation with 2x4 wall framing, this house plan is well-suited for cost-effective construction while maintaining durability. With a roof pitch of 3:12 and a building height under 16 feet, the design supports simpler construction and can be an excellent option for neighborhoods with height restrictions. The overall dimensions—24 feet wide by 59 feet deep—allow this home to fit comfortably on lots where many larger plans simply won’t work.
This modern house plan proves that great design doesn’t require excessive square footage. Instead, it delivers smart planning, stylish features, and practical comfort in a compact, efficient package. Whether you’re building your first home, downsizing to something more manageable, or investing in a rental-friendly property, this plan offers exceptional versatility and long-term value.