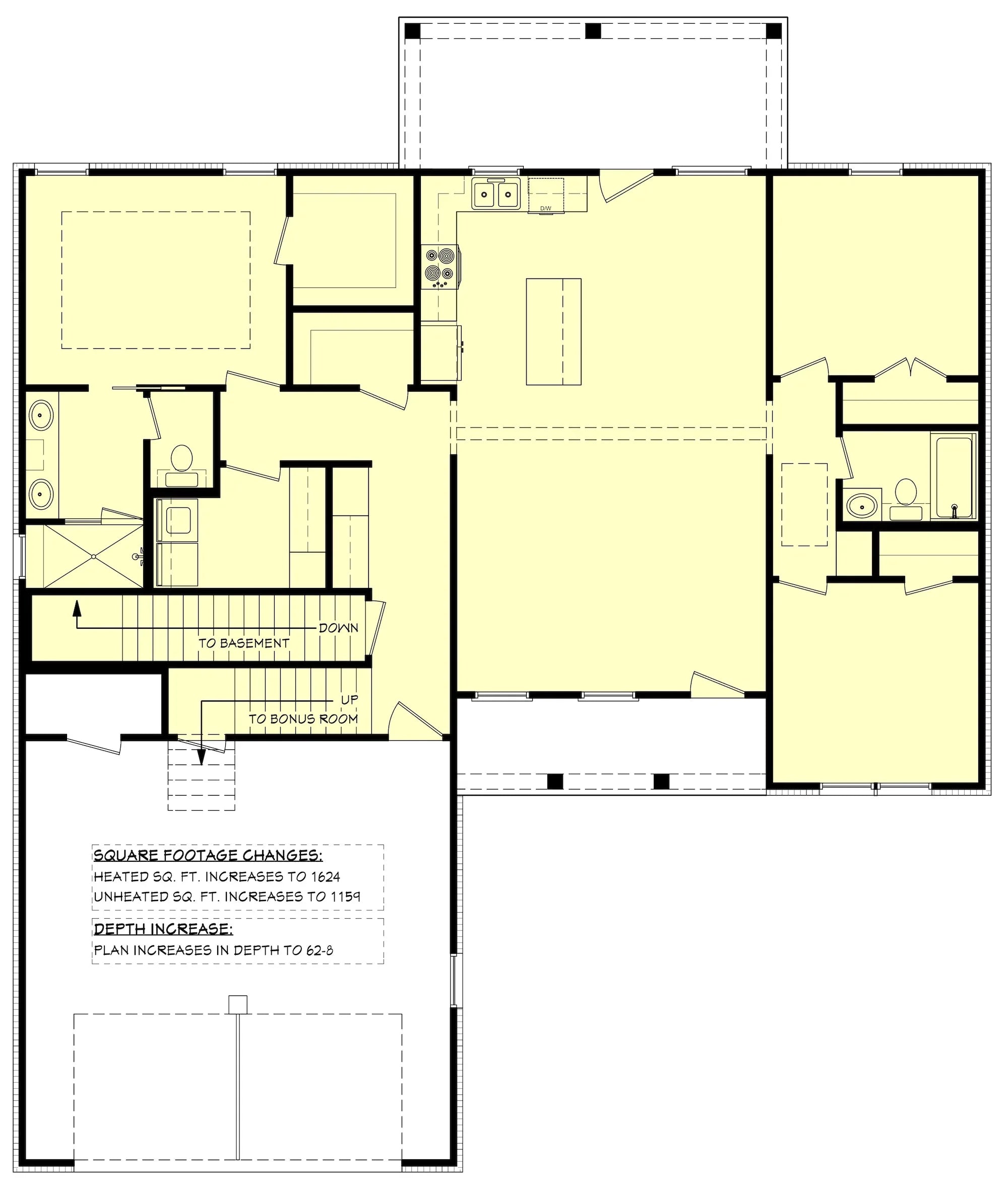
This country modern farmhouse plan blends rustic charm with fresh, modern design. With 1,526 sq. ft. of heated living space, this one-story home features an open floor plan that connects the great room, kitchen, and breakfast area—perfect for family gatherings and entertaining. The kitchen island, walk-in pantry, and vaulted ceilings enhance the sense of spaciousness and function.
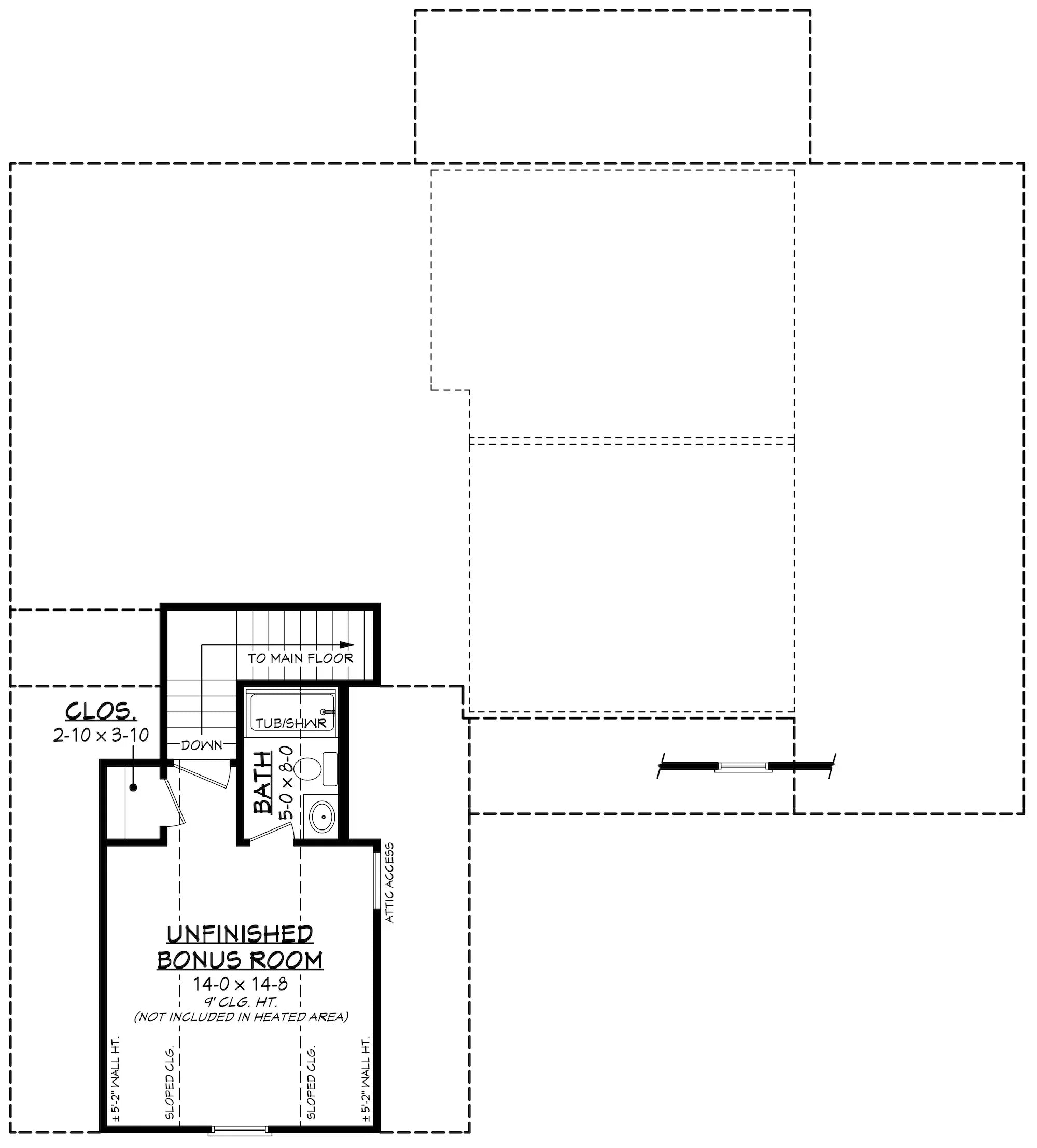
The master suite provides a serene retreat, complete with a double-vanity bath and walk-in closet. Two additional bedrooms are thoughtfully separated for privacy, while a bonus room above the garage offers flexible space for a home office, playroom, or guest suite. Outdoor living is equally inviting, with a covered front porch and rear porch ideal for relaxing or hosting barbecues. With its timeless country charm and modern conveniences, this farmhouse design delivers comfort, character, and style in every detail.









