Welcome back! We activated a special $50 coupon for you valid for 24 hours
Get
Hartwell House Plan
4.8
Plan Number:

A6811-A

Rated 4.8
Plan Number:

A6811-A

✔ Best Price Guarantee | ✔ Free Cost to Build Calculator
Or order by phone: (888) 890-2353
Safe and Secure
SafePay icons
LOW PRICE GUARANTEE
Free Cost to Build Calculator
Floor Plan
floor plan
floor plan

Hartwell House Plan

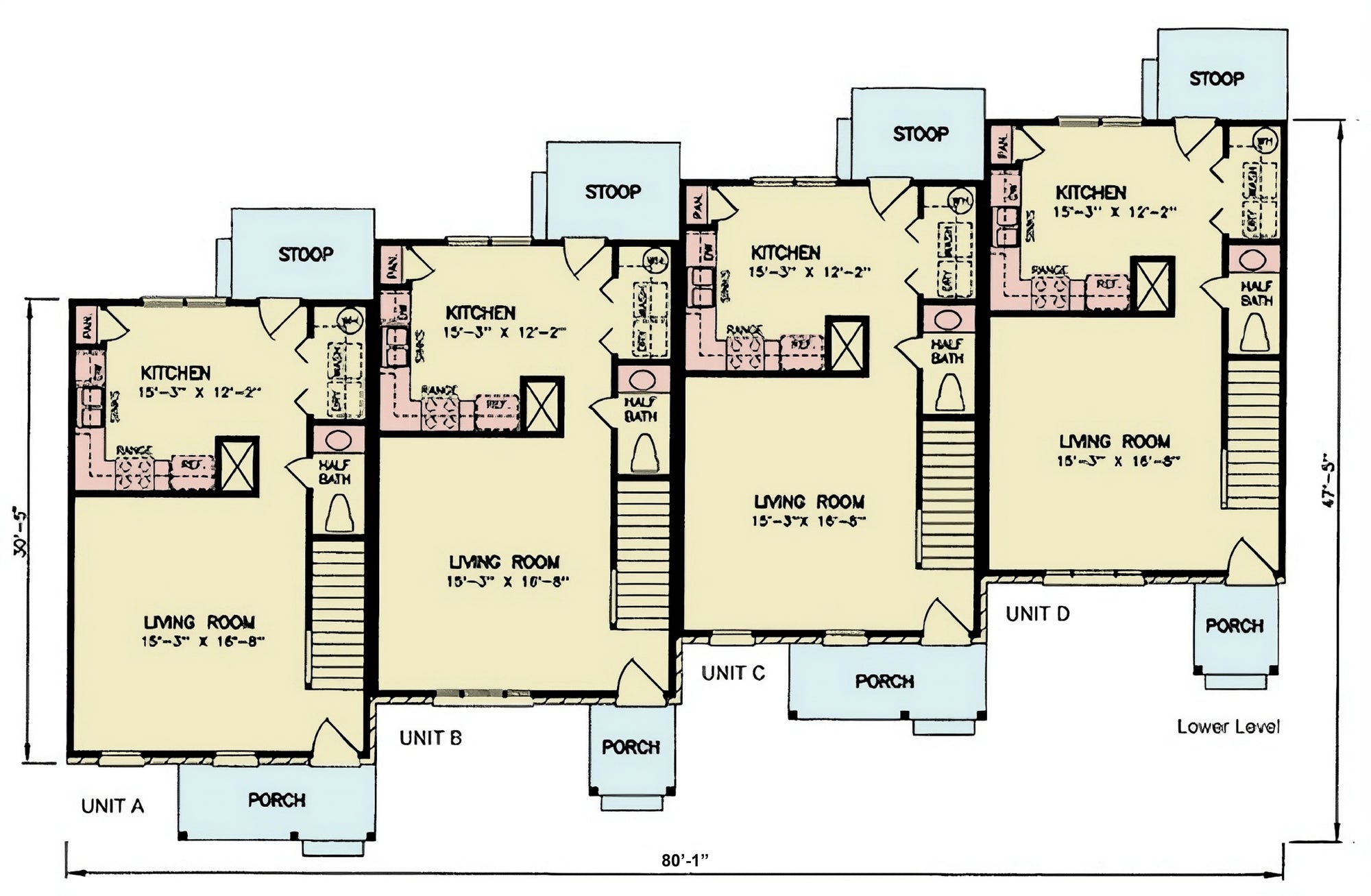
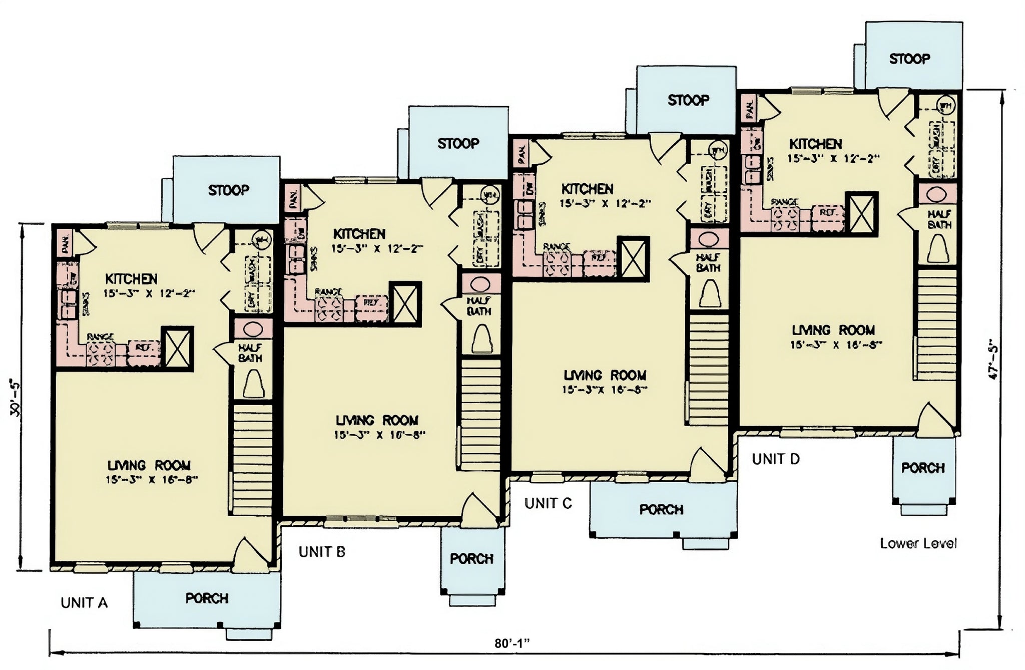
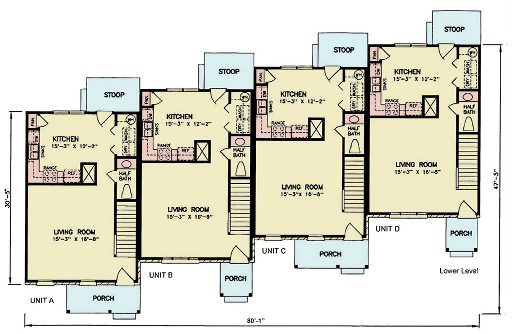
This efficient and stylish two-story quadplex offers a total of 4,764 sq ft of heated living space across four identical units, each thoughtfully designed for comfortable and modern living. Every unit features 2 bedrooms, 2 full bathrooms, and a convenient half bath, making this plan ideal for families, professionals, or investment rental properties. The open-concept layout includes a spacious family room, first-floor laundry, and a private master suite with a walk-in closet and full bath.

Each unit boasts 609 sq ft on the main floor and 582 sq ft upstairs, along with covered front porches and rear stoops that add curb appeal and outdoor living space. With 8' ceilings on both floors, brick veneer and siding exterior, and truss roof framing with an 8:12 pitch, this plan offers durability and classic charm. Whether you're building to rent or live in one unit while leasing the others, this multi-family design combines smart planning with timeless style.

View Sample Plan
What's Included in the House Plan:
  • Exterior Elevations – Front, rear, and side views of the home.
  • Foundation Plan - shows the layout, including excavated and unexcavated areas (if applicable). Each plan features one default foundation type — walkout basement, basement, crawlspace, or slab — based on availability and the option selected by the client. Other foundation types are available as upgrades. Please refer to the plan’s detail sheet for available foundation options. no structural engineering is included.
  • Detailed Floor Plans – Well-dimensioned plans showing the placement of walls, room dimensions, doors, windows, stairways, and other key features for each floor. These plans illustrate floor layouts, window/door sizes, and reference keys for cross-section details. Engineered floor joists and ceiling joists are not included in some plans. Local engineers or manufacturers can provide services for local geographic conditions. Important changes in floor, ceiling, and roof heights, or the relationship of one level to another, are clearly indicated.
  • Roof Plan – Overview of roof layout and slopes.
  • Schematic Electrical Plans – Schematic electrical plan sections specific to the design.
What's Not Included:
  • Architectural and Engineering Stamps
  • Site Plan
  • Structural or Framing Plans – All engineering requirements, including structural, truss, and framing specifications, must be provided by a local engineer or truss manufacturer to comply with local building codes.
  • Plumbing Layout – Only fixture locations are shown. Detailed plumbing layouts must be provided by licensed subcontractors.
  • Mechanical or HVAC Drawings – To be provided and installed by qualified subcontractors.
  • Grading Plan
  • Material List

House Plan Specifications

  • Total Living (heated area):  4764 sq ft
    All Unheated Under-Roof Areas  418 sq ft
    Total Structure  5182 sq ft
    1st Floor:  2436 sq ft
    2nd Floor:  2328 sq ft
    Front Porch:  202 sq ft
    Rear Porch:  216 sq ft
  • Bedrooms:   8
    Bathrooms:   8
    Half Bathrooms:   4
  • Foundation:   Crawl Space
    Wall Framing:   2x4
    Roof Framing:   Truss
    Roof Pitch:  8:12
    Exterior Siding:   Brick Veneer and Siding
  • Width of House:  80'1''
    Depth of House:  53'5''
    Building Height:  28'7''
  • First Floor Ceiling Height:  8'
    Second Floor Ceiling Height:  8'

Key Features

  • Cluster Bedroom
  • Covered Front Porch
  • First Floor Laundry
  • Keeping/Family Room
  • Private Master Bath
  • Second Floor Master Suite
  • Stoop
  • Walk In Closets
Modify this plan to make it perfect
Our hassle-free process makes it easy to modify your dream home. To receive an estimate please submit your request using the link below.
Submit a Modification Request
Cost to build estimate
$0.00
$40.00
100% discount for new customers this month!
Receive a personal estimate in two minutes instead of 2 days as many competitors offer. Just submit your request using the link below.
Get Your Estimate
Plan Number: A6811-A
Hartwell House Plan
8 Bedrooms
8 Full Baths
4 Half Baths
4764 SQ FT
2 Stories
Product print image
Main Level
floor plan
Second Floor
floor plan
House Plan Formats Explained

PDF (Single Build)

A complete set of working drawings delivered in digital PDF format. This option comes with a license to build ONE home and includes a copyright release for printing unlimited sets of plans and making modifications.

CAD + PDF (Single Build)

A complete set of working drawings delivered in digital DWG and PDF formats. AutoCAD files are used by design professionals to make significant modifications or engineering calculations to the plan. This option comes with a license to build ONE home and includes a copyright release for printing unlimited sets of plans and making modifications.

5 or 8 Prints (Single Build)

Five or eight printed sets of working drawings shipped to you. This option comes with a license to build ONE home.

5 Prints + PDF (Single Build)

Five printed sets of working drawings shipped to you, plus a digital version in PDF format. This option comes with a license to build ONE home and includes a copyright release for printing unlimited sets of plans and making modifications.

PDF (Multi Build)

A complete set of working drawings delivered in digital PDF format. This option comes with a license to build an UNLIMITED number of homes and includes a copyright release for printing unlimited sets of plans and making modifications. This option may not be available for all house plans, or may require a specific format to be purchased. Please call 770-831-6363 for more information.

CAD + PDF (Multi Build)

A complete set of working drawings delivered in digital DWG and PDF formats. AutoCAD files are used by design professionals to make significant modifications or engineering calculations to the plan. This option comes with a license to build an UNLIMITED number of homes and includes a copyright release for printing unlimited sets of plans and making modifications. This option may not be available for all house plans, or may require a specific format to be purchased. Please call 770-831-6363 for more information.

Choose a building foundation for your home. The foundation provides stability to a home's structure from the ground up.

Slab - This concrete foundation is reinforced with steel rods and suitable for flat ground.

Crawl Space - This foundation is raised off the ground with low walls resting on footings, providing space for wiring, plumbing, and storage.

Basement - This foundation is entirely or partially below ground and offers storage or living areas.

Walkout Basement - This foundation is typically suited for rear-sloping lots and provides storage or living areas. Walkout basements have doors that provide access to the outside.

Readable Reverse
An option to reverse the plan including texts and dimensions to make them readable.
2x4 or 2x6 Conversion
Convert the exterior framing other than the standard framing included in the plan.
Multi Build Licence (CAD required) Gives the buyer the legal right to build the house plan multiple times
What Makes Us Different
Them
Cost to Build
$30+
Shipping
Free
on physical blueprints
$20+
Price Guarantee
By 10%
beat competitor
Only Price Match
Purchase
Direct
from the Architect
Middleman

Recently Viewed Plans

Why Our Clients Trust Us

Our client image
Our client image
Our client image
Our client image
Our client image
Icon
0
+
Homes
Designed
Icon
0
Homes
Built
Icon
0
Years of
Experience

See What Our Happy Customers Are Saying

Review image
JoAnne and the entire staff was extremely helpful and patient with us while we decided between 2 homes. This home has outstanding curb appeal and a great layout perfect for us. I work from home so having the home office off the foyer is fantastic. I converted the wet bar into a storage closet for my office. We also extended the laundry room into the porch and created a multipurpose laundry/mud room. I would buy from archival designs again and again.
Rita Long
Milwaukee, WI
Review image
It took almost a year to pick a plan. Since my husband and I retired a few years ago we wanted this last house had to have everything we wanted and needed. The kitchen is my favorite part of the house. I can see what’s happening in my neighborhood through my kitchen window and watch my husband garden in the back yard. Our children think we made a smart decision when we picked this house for our senior years.
Elaine SmithsonPierre
South Dakotaomer
Review image
We’ve had an amazing experience with our new home and are excited to be moved in. The customer service we received during our modifications was exceptional. We are loving the open layout of the kitchen and family room. It feels spacious and I’m already planning on hosting holiday dinners at home. We recommend Archival Designs to anyone interested in building the home they’ve always wanted!
Sandra Hawkins
Montgomery, AL
Review image
We absolutely adore the Kildare Place house plan. Made some modifications to make this home ours! Our house is the talk of the neighborhood. We host big parties every holiday and still get compliments from our friends and family. We searched for months and looked through hundreds of floor plans and this one had almost everything we wanted, and with the help of the great staff at Archival Designs we got exactly what we wanted!
Nick Lazzari
Bakersfeild, CA
Cost TO Build Estimate
$0.00
$40.00
100% discount for new customers this month! Receive a personal estimate in two minutes instead of 2 days as many competitors offer. Just submit your request using the link below.
Give us zip/postal code INSTANT
Get a FREE Instant quote! ACCURATE
Sent to your email FREE
Request a Cost To Build
Cost to build your dream home
FAQ
What is included in the construction drawings?

The construction drawings will include detailed, dimensioned floor plans, exterior elevations, roof plan, foundation plan, basic electrical layout, cross-section(s), foundation plan, and other general specifications. Some plans will include interior cabinet layouts.

 

View Sample Plan
Why choose Archival Designs?

Archival Designs brings you over 40 years of experience in the house plan design business.  We offer the best value for your money by offering the highest quality home designs.

We offer a 10% military & first responder discount, as well as builder discounts for life!  Archival Designs guarantees the lowest prices anywhere online. Learn more about our Best Price Guarantee.

All house plans sold by Archival Designs have been designed to comply with the International Residential Code (IRC) and to the local codes in the area where the designer resides or where the house was built.

 

Do your plans meet building codes in my area?

All house plans are designed to meet or exceed the national building standards required by the International Residential Code (IRC). Due to differences in climate and geography throughout North America, every city, local municipality and county has unique building codes and regulations that must be followed to obtain a building permit. Prior to purchasing a set of house plans, we recommend that you meet with your local building officials in order to determine the building requirements for your area.  It is the responsibility of the purchaser(s) and/or builder to ensure that the structure is constructed to meet the codes of their local area.  

Important Note:

  • Customers building in CA, OR, SC, WA, and NV: Our house plans do not meet Earthquake Seismic/Wind code requirements.
  • Customers building in GA, SC, FL, and NC Coastal Areas: Plans may have to be engineered to meet local Hurricane/Wind codes.
  • Customers building in AL, AZ, CO, CT, DE, FL, ID, LA, KY, MD, MA, MN, MI, NV, NH, NJ, NY, OH, PA, UT, WY, and VA: Plans may have to be engineered by a local licensed professional to meet local building codes. Please call your local building department before placing order.
  • Customers building in NV: NV law permits an owner or builder to build a house from their own plans. Contact your local building department to verify if our stock house plans will be accepted before placing order. 

 

Will the plans be stamped or signed by an architect or engineer?

House plans do not come stamped or signed by an architect or engineer.  Additionally, house plans typically will not include structural engineering notes/calculations. Please check with your local building officials to determine if a stamp is required. If required, the building department will only accept a stamp from a licensed professional in the state where the home will be built.

Depending on your city, county, and state building requirements, house plans may need to be reviewed by a local licensed architect or engineer for structural details and code standards before construction begins. This is particularly true in coastal areas and those facing seismic events, extreme winds, and heavy snow. If you are building in any of these areas, a licensed structural engineer will likely be needed to provide the necessary calculations and additional drawings. We authorize the use of our plans conditioned on your obligation and agreement to strictly comply with all local building codes, ordinances, regulations, and requirements, including permits and inspections at the time of and during construction. We recommend checking with your local building department for the most current requirements.  The purchaser(s) and/or builder are responsible for additional expenses incurred through meeting municipality requirements or other requirements for construction.

 

Will the foundation included in the construction drawings work for my site?

Our foundation plans have been designed for universal conditions and may need to be adjusted to fit your specific site conditions. The foundation should be modified by a local structural engineer to comply with soil testing laboratory findings and local building requirements.

   

Do your plans include electrical, plumbing and mechanical drawings?

Our house plans will include schematic electrical drawings; however, circuiting or wire sizing will not be included.  Your electrical subcontractor will typically provide these drawings. 

HVAC and plumbing drawings are not included. Your mechanical and plumbing subcontractors will determine the best layout for your site.  Local HVAC codes, climatic requirements and commonly used systems vary throughout the country.  The direction of how water flow will enter the home vary from case to case. For this reason, it is impossible to provide universal plans. 

Do You Have Any Questions about the
Hartwell House Plan

Custom questions image

Let our friendly experts help you find the perfect plan! Contact us now for a free consultation.
To make a modification to this plan, please use our Modification Request Form.
Search by Plan Name