L7800-A
This thoughtfully designed contemporary house plan offers 2,112 square feet of heated living space, blending modern functionality with relaxed indoorāoutdoor living. With three bedrooms, two full bathrooms, and a powder room, this plan is ideal for families or homeowners who value open layouts, entertaining spaces, and architectural character.
The homeās clean contemporary exterior is enhanced by multiple covered and screened outdoor areas, creating a welcoming presence while extending usable living space. A combination of 3:12 and 12:12 roof pitches adds visual interest and complements the modern design.
The main level is designed for gathering and entertaining. A spacious recreation room with 10-foot ceilings anchors the floor, providing ample room for movie nights, games, or casual get-togethers. Adjacent to the rec room is a wet bar, perfect for hosting guests or creating a dedicated entertainment hub.
Two secondary bedrooms are located on this level, each with 10-foot ceilings and convenient closet access. A shared full bathroom is centrally positioned for ease of use, while a dedicated utility and laundry area adds everyday practicality.
Large doors open to an expansive 33ā x 10ā patio, seamlessly connecting the indoor living area to the outdoors. A screened porch and rear porch further enhance the homeās outdoor appeal, making this plan especially well-suited for warm climates or nature-focused living.
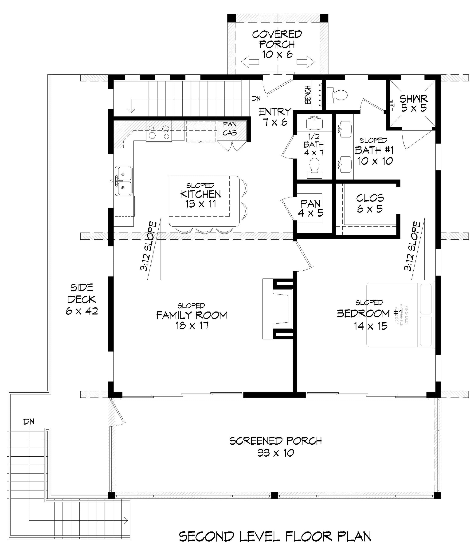
Upstairs, the home transitions into a bright and airy living environment. The open-concept family room and kitchen feature sloped ceilings that add volume and architectural drama. The kitchen includes a central island with eating bar, generous counter space, and a walk-in pantryāideal for both daily use and entertaining.
The second-floor master suite is thoughtfully separated from the other bedrooms for privacy. It features a spacious bedroom, a walk-in closet, and a private bath with a double vanity and shower. This elevated placement provides a quiet retreat while maintaining connection to the main living spaces.
A screened porch spanning the rear of the home offers an exceptional indoorāoutdoor experience, perfect for dining, relaxing, or enjoying scenic views year-round.
This contemporary house plan delivers comfort, flexibility, and standout outdoor livingāall within a compact, efficient footprint. Itās an excellent choice for homeowners seeking a modern design that balances entertaining, privacy, and everyday livability.




PDF (Single Build)
A complete set of working drawings delivered in digital PDF format. This option comes with a license to build ONE home and includes a copyright release for printing unlimited sets of plans and making modifications.
CAD + PDF (Single Build)
A complete set of working drawings delivered in digital DWG and PDF formats. AutoCAD files are used by design professionals to make significant modifications or engineering calculations to the plan. This option comes with a license to build ONE home and includes a copyright release for printing unlimited sets of plans and making modifications.
5 or 8 Prints (Single Build)
Five or eight printed sets of working drawings shipped to you. This option comes with a license to buildĀ ONEĀ home.
5Ā PrintsĀ + PDF (Single Build)
Five printed sets of working drawings shipped to you, plus a digital version in PDF format. This option comes with a license to build ONE home and includes a copyright release for printing unlimited sets of plans and making modifications.
PDF (Multi Build)
A complete set of working drawings delivered in digital PDF format. This option comes with a license to build an UNLIMITED number of homes and includes a copyright release for printing unlimited sets of plans and making modifications. This option may not be available for all house plans, or may require a specific format to be purchased. Please call 770-831-6363 for more information.
CAD + PDF (Multi Build)
A complete set of working drawings delivered in digital DWG and PDF formats. AutoCAD files are used by design professionals to make significant modifications or engineering calculations to the plan. This option comes with a license to build an UNLIMITED number ofĀ homes and includes a copyright release for printing unlimited sets of plans and making modifications.Ā This option may not be available for all house plans, or may require a specific format to be purchased. Please call 770-831-6363 for more information.
Choose a building foundation for your home. The foundation provides stability to a home's structure from the ground up.
Slab - This concrete foundation is reinforced with steel rods and suitable for flat ground.
Crawl Space - This foundation is raised off the ground with low walls resting on footings, providing space for wiring, plumbing, and storage.
Basement - This foundation is entirely or partially below ground and offers storage or living areas.
Walkout Basement - This foundation is typically suited for rear-sloping lots and provides storage or living areas. Walkout basements have doors that provide access to the outside.




The construction drawings will include detailed, dimensioned floor plans, exterior elevations, roof plan, foundation plan, basic electrical layout, cross-section(s), foundation plan, and other general specifications. Some plans will include interior cabinet layouts.
Ā
View Sample PlanArchival Designs brings you over 40 years of experience in the house plan design business.Ā We offer the best value for your money by offering the highest quality home designs.
We offer a 10% military & first responder discount, as well as builder discounts for life!Ā Archival Designs guarantees the lowest prices anywhere online.Ā Learn more about our Best Price Guarantee.
All house plans sold by Archival Designs have been designed to comply with the International Residential Code (IRC) and to the local codes in the area where the designer resides or where the house was built.
Ā
All house plans are designed to meet or exceed the national building standards required by the International Residential Code (IRC). Due to differences in climate and geography throughout North America, every city, local municipality and county has unique building codes and regulations that must be followed to obtain a building permit. Prior to purchasing a set of house plans, we recommend that you meet with your local building officials in order to determine the building requirements for your area.Ā It is the responsibility of the purchaser(s) and/or builder to ensure that the structure is constructed to meet the codes of their local area.Ā Ā
Important Note:
Ā
House plans do not come stamped or signed by an architect or engineer.Ā Additionally, house plans typically will not includeĀ structural engineering notes/calculations. Please check with your local building officials to determine if a stamp is required. If required, the building department will only accept a stamp from a licensed professional in the state where the home will be built.
Depending on your city, county, and state building requirements, house plans may need to be reviewed by a local licensed architect or engineer for structural details and code standards before construction begins. This is particularly true in coastal areas and those facing seismic events, extreme winds, and heavy snow. If you are building in any of these areas, a licensed structural engineer will likely be needed to provide the necessary calculations and additional drawings. We authorize the use of our plans conditioned on your obligation and agreement to strictly comply with all local building codes, ordinances, regulations, and requirements, including permits and inspections at the time of and during construction. We recommend checking with your local building department for the most current requirements.Ā The purchaser(s) and/or builder are responsible for additional expenses incurred through meeting municipality requirements or other requirements for construction.
Ā
Our foundation plans have been designed for universal conditions and may need to be adjusted to fit your specific site conditions. The foundation should be modified by a local structural engineer to comply with soil testing laboratory findings and local building requirements.
Ā Ā
Our house plans will include schematic electrical drawings; however, circuiting or wire sizing will not be included.Ā Your electrical subcontractor will typically provide these drawings.Ā
HVAC and plumbing drawings are not included. Your mechanical and plumbing subcontractors will determine the best layout for your site. Ā Local HVAC codes, climatic requirements and commonly used systems vary throughout the country.Ā The direction of how water flow will enter the home vary from case to case. For this reason, it is impossible to provide universal plans.Ā

This thoughtfully designed contemporary house plan offers 2,112 square feet of heated living space, blending modern functionality with relaxed indoorāoutdoor living. With three bedrooms, two full bathrooms, and a powder room, this plan is ideal for families or homeowners who value open layouts, entertaining spaces, and architectural character.
The homeās clean contemporary exterior is enhanced by multiple covered and screened outdoor areas, creating a welcoming presence while extending usable living space. A combination of 3:12 and 12:12 roof pitches adds visual interest and complements the modern design.
The main level is designed for gathering and entertaining. A spacious recreation room with 10-foot ceilings anchors the floor, providing ample room for movie nights, games, or casual get-togethers. Adjacent to the rec room is a wet bar, perfect for hosting guests or creating a dedicated entertainment hub.
Two secondary bedrooms are located on this level, each with 10-foot ceilings and convenient closet access. A shared full bathroom is centrally positioned for ease of use, while a dedicated utility and laundry area adds everyday practicality.
Large doors open to an expansive 33ā x 10ā patio, seamlessly connecting the indoor living area to the outdoors. A screened porch and rear porch further enhance the homeās outdoor appeal, making this plan especially well-suited for warm climates or nature-focused living.
Upstairs, the home transitions into a bright and airy living environment. The open-concept family room and kitchen feature sloped ceilings that add volume and architectural drama. The kitchen includes a central island with eating bar, generous counter space, and a walk-in pantryāideal for both daily use and entertaining.
The second-floor master suite is thoughtfully separated from the other bedrooms for privacy. It features a spacious bedroom, a walk-in closet, and a private bath with a double vanity and shower. This elevated placement provides a quiet retreat while maintaining connection to the main living spaces.
A screened porch spanning the rear of the home offers an exceptional indoorāoutdoor experience, perfect for dining, relaxing, or enjoying scenic views year-round.
This contemporary house plan delivers comfort, flexibility, and standout outdoor livingāall within a compact, efficient footprint. Itās an excellent choice for homeowners seeking a modern design that balances entertaining, privacy, and everyday livability.