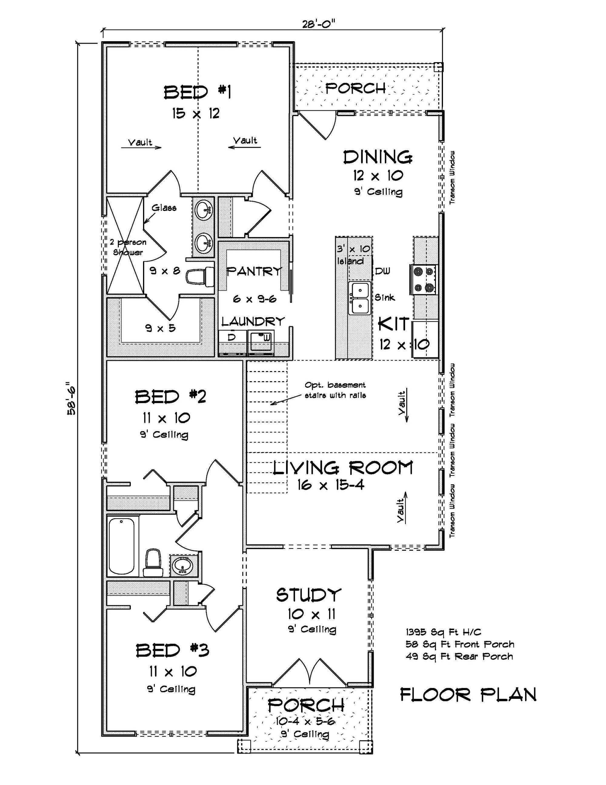
This 1395 sq ft single-story cottage-style home combines timeless charm with modern functionality, offering a well-balanced design perfect for families or downsizers. The open layout connects the family room, dining area, and kitchen, creating an airy, welcoming atmosphere highlighted by vaulted ceilings and abundant natural light. The kitchen features a spacious island, walk-in pantry, and easy access to both the covered front porch (58 sq ft) and rear porch (49 sq ft) — ideal for relaxing or entertaining.
The first-floor master suite provides a peaceful retreat with a private bath, double vanity sinks, and a roomy walk-in closet. Two additional bedrooms, a dedicated home office/study, and a utility/laundry room add everyday convenience. Built on a slab foundation with stick roof framing and a 6:12 roof pitch, this home offers durability and efficiency. With its 9-foot ceilings, open concept design, and inviting porches, this plan delivers comfort, practicality, and classic curb appeal in a compact footprint.







